Kontakt
Nr oferty: 44162/3877/ODS

NOWA CENA! Dom na Mazurach Sokoły Jeziorne

Sokoły Jeziorne zobacz na mapie

330 000 PLN

Szczegóły oferty

Cena:
330 000,00 zł
Powierzchnia:
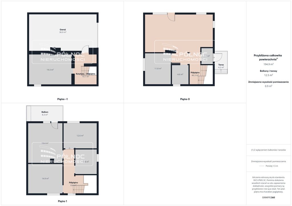
178,30 m2
Cena za m2:
1 850,81 zł
Powierzchnia użytkowa:
122,60 m2
Powierzchnia działki:
463,00 m2
Rok budowy:
2020
Liczba pięter:
1
Liczba pokoi:
5
Stan budynku:
Surowy zamknięty
Typ domu:
Wolnostojący
Id oferty:
44162/3877/ODS

Opis

NOWA CENA! 330.000,00 zł.

PÓŁNOC Nieruchomości Ełk prezentuje na sprzedaż dom jednorodzinny położony w miejscowości Sokoły Jeziorne około 30 km od Ełku/35 minut jazdy autem. 200 m od domu znajduje się ogólnodostępna plaża nad Jeziorem Borowym.

Zapraszam na wirtualny spacer po nieruchomości:
https://tour.giraffe360.com/b5d05300f1ba44c0b649db50b0af8697

DOM
Budynek wolnostojący posiadający rozległą powierzchnię wygodnie rozłożoną na trzech przestronnych kondygnacjach. Dom jest podpiwniczony, z garażem w bryle budynku. Wybudowany w 2020 r.

Powierzchnia całkowita budynku 178,30 m2
Powierzchnia użytkowa budynku 122,60 m2

Na PARTERZE domu znajduje się przestronny salon połączony z kuchnią – idealne miejsce na wspólne chwile w gronie rodziny. Tuż obok mieści się przytulna sypialnia oraz praktyczna łazienka z WC. Z salonu można wyjść bezpośrednio na taras, a wszystkie okna wyposażono w solidne rolety antywłamaniowe, które zapewniają komfort i bezpieczeństwo.

Na PIĘTRZE czekają trzy ustawne pokoje, w tym jeden z wyjściem na balkon – doskonały na sypialnię, pokój dziecięcy czy gabinet. Do dyspozycji mieszkańców jest również dodatkowa łazienka z WC.

Dom posiada również PIWNICĘ, w której zaplanowano garaż w bryle budynku oraz praktyczne pomieszczenie gospodarcze, idealne nie tylko na przechowywanie sprzętu czy narzędzi, ale również np. na prywatną siłownię.

MEDIA
Szambo na działce. Podłączone i działające. Prąd i woda gminna i doprowadzone do domu. Była wykonywana próba ciśnieniowa i wszystko działa prawidłowo.

DZIAŁKA
Nieruchomość o powierzchni 463 m2.

W OKOLICY
Dom położony jest w malowniczej i zarazem cichej okolicy. Doskonałe miejsce do zamieszkania dla rodzinny z dziećmi. Możliwość mieszkania całorocznego i letniskowego, jak również do wynajmu turystycznego.
Nieruchomość położona w okolicy Jeziora Borowego, które jest spokojne, idealne do wędkarstwa (występują wzdręgi, okonie, płocie, szczupaki), z czystą wodą i rozwijającą się agroturystyką. 

Dom dostępny od zaraz. 

Zainteresowała Cię ta oferta?
Zadzwoń i umów się na spotkanie!

Kupujesz na kredyt?
Sprawdzeni doradcy kredytowi, z którymi współpracujemy zupełnie za darmo przeprowadzą Cię przez cały proces kredytowy i pomogą w uzyskaniu finansowania.

A może zakup tego mieszkania wiążę się ze sprzedażą innej nieruchomości? Z ogromną przyjemnością przeprowadzę Cię przez ten proces.
Zadzwoń i porozmawiajmy :)

W sprawie dodatkowych informacji oraz danych proszę o kontakt z biurem sprzedaży:
Aneta Mulewska
PÓŁNOC Nieruchomości Ełk
+48 513 899 633 
amulewska@polnoc.pl 

Jesteśmy z Państwem na każdym etapie procesu zakupu nieruchomości począwszy od wyboru oferty i jej prezentacji po finalizację transakcji i przekazanie nieruchomości nowym właścicielom. 

Niniejsze ogłoszenie nie stanowi oferty w rozumieniu Kodeksu Cywilnego, lecz ma charakter informacyjny.

Przedstawione wizualizacje i grafiki mają charakter wyłącznie poglądowy i stanowią wyłącznie materiał pomocniczy, ułatwiający zorientowanie się w ogólnym wyglądzie oferowanej nieruchomości.

Niniejsze ogłoszenie wraz z jego elementami jest własnością Północ Nieruchomości Sp z o.o. lub podmiotu współpracującego. Wszelkie prawa zastrzeżone. Kopiowanie, rozpowszechnianie oraz korzystanie z niniejszych materiałów w jakikolwiek inny sposób wykraczający poza dozwolony użytek określony przepisami ustawy z 4 lutego 1994 r. o prawie autorskim i prawach pokrewnych (Dz. U. 1994, nr 24 poz. 83 z późn. zm.) bez pisemnej zgody Północ Nieruchomości Sp z o.o. lub podmiotów współpracujących jest zabronione i może stanowić podstawę odpowiedzialności cywilnej oraz karnej.

Niniejsze materiały stanowią tajemnicę przedsiębiorstwa PÓŁNOC NIERUCHOMOŚCI Sp. z o.o. w rozumieniu ustawy z dnia 16 kwietnia 1993 r. o zwalczaniu nieuczciwej konkurencji (Dz. U. z 2003 r., Nr 153, poz. 1503 z późn. zm.).

Mapa

Zapytaj o tę ofertę

Lub zadzwoń