Kontakt
Nr oferty: 44189/3877/ODS

Nowoczesny dom do wykończenia – Stare Kupiski

Stare Kupiski, Cicha zobacz na mapie

509 000 PLN

Szczegóły oferty

Cena:
509 000,00 zł
Powierzchnia:
114,61 m2
Cena za m2:
4 441,15 zł
Powierzchnia użytkowa:
114,61 m2
Powierzchnia działki:
545,00 m2
Rok budowy:
2025
Liczba pięter:
2
Liczba pokoi:
4
Stan budynku:
Surowy zamknięty
Typ domu:
Wolnostojący
Ciepła woda:
tak
Id oferty:
44189/3877/ODS

Opis

Szukasz domu, który możesz wykończyć dokładnie tak, jak chcesz, w miejscu łączącym spokój z wygodą codziennego życia? Ten dom w Starych Kupiskach przy ul. Cichej to idealna propozycja dla osób, które marzą o własnej przestrzeni blisko miasta.

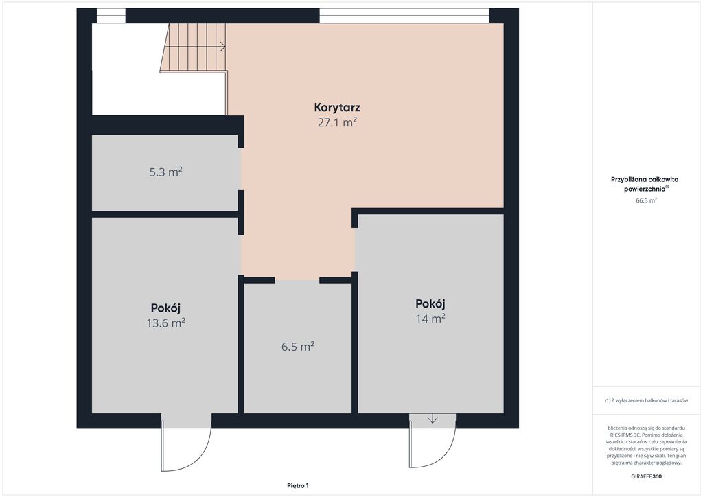
Na sprzedaż dom jednorodzinny w stanie surowym zamkniętym, o powierzchni użytkowej 114,61 m², położony na działce o powierzchni 545 m². Budynek ma przemyślany i funkcjonalny układ pomieszczeń, który umożliwia komfortowe życie całej rodzinie.

W bryle budynku znajduje się garaż jednostanowiskowy, a dodatkowo na działce wybudowano drugi, oddzielny garaż, który może służyć jako dodatkowe miejsce postojowe, warsztat lub przestrzeń gospodarcza.
Możliwość dokupienia działki sąsiedniej o pow. 532 m2 w cenie dodatkowej 80 000zł.

Dom jest w stanie surowym zamkniętym, co oznacza, że ma już okna, drzwi zewnętrzne i dach, dzięki czemu można bez przeszkód rozpocząć prace wykończeniowe wewnątrz według własnej wizji.

Lokalizacja:
Nieruchomość położona jest w cichej i spokojnej okolicy Starych Kupisk, w otoczeniu zabudowy jednorodzinnej. W miejscowości znajdują się sklepy spożywcze, a do Łomży dojedziesz w zaledwie kilka minut – tam znajdziesz pełną infrastrukturę miejską: szkoły, przedszkola, supermarkety, restauracje i punkty usługowe.

To doskonała propozycja dla osób, które chcą stworzyć swój wymarzony dom w miejscu, gdzie można odpocząć od zgiełku, zachowując bliskość miasta.

ANETA GĄSKA 
Północ Łomża
ul. Krótka 2
18-400 Łomża

Niniejsze ogłoszenie nie stanowi oferty w rozumieniu Kodeksu Cywilnego, lecz ma charakter informacyjny.

Przedstawione wizualizacje i grafiki mają charakter wyłącznie poglądowy i stanowią wyłącznie materiał pomocniczy, ułatwiający zorientowanie się w ogólnym wyglądzie oferowanej nieruchomości.

Niniejsze ogłoszenie wraz z jego elementami jest własnością Północ Nieruchomości Sp z o.o. lub podmiotu współpracującego. Wszelkie prawa zastrzeżone. Kopiowanie, rozpowszechnianie oraz korzystanie z niniejszych materiałów w jakikolwiek inny sposób wykraczający poza dozwolony użytek określony przepisami ustawy z 4 lutego 1994 r. o prawie autorskim i prawach pokrewnych (Dz. U. 1994, nr 24 poz. 83 z późn. zm.) bez pisemnej zgody Północ Nieruchomości Sp z o.o. lub podmiotów współpracujących jest zabronione i może stanowić podstawę odpowiedzialności cywilnej oraz karnej.

Niniejsze materiały stanowią tajemnicę przedsiębiorstwa PÓŁNOC NIERUCHOMOŚCI Sp. z o.o. w rozumieniu ustawy z dnia 16 kwietnia 1993 r. o zwalczaniu nieuczciwej konkurencji (Dz. U. z 2003 r., Nr 153, poz. 1503 z późn. zm.).

Mapa

Zapytaj o tę ofertę

Lub zadzwoń