Opis
Oferujemy państwu dom wolnostojący dwukondygnacyjny o powierzchni ok. 250 m2 w stanie surowym zamkniętym, usytuowany na działce o powierzchni 2120 m2 w Połomii, ul. Słoneczna.
Nieruchomość z ogromnym potencjałem.
CO SPRZEDAJEMY ?
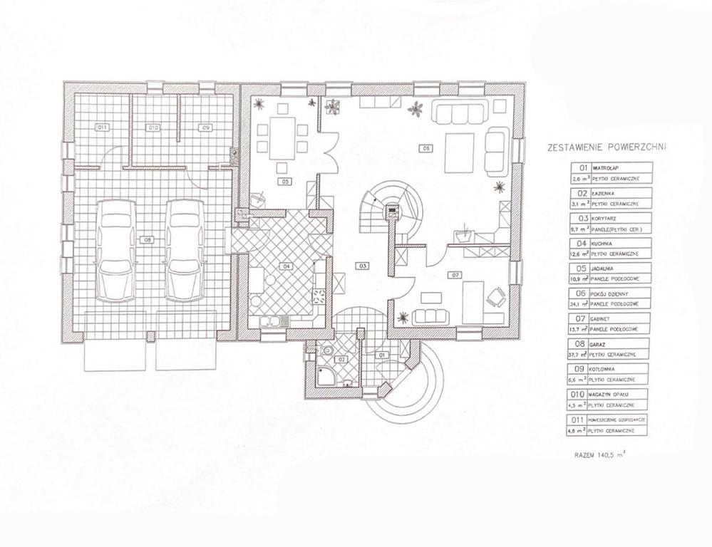
Dom wolnostojący dwukondygnacyjny o powierzchni użytkowej ok. 195 m2,
Dom posadowiony na działce o powierzchni ok. 2120 m2 i wymiarach ok. 38m x 56m.
Parter - 3 pomieszczenia, WC oraz przedpokój
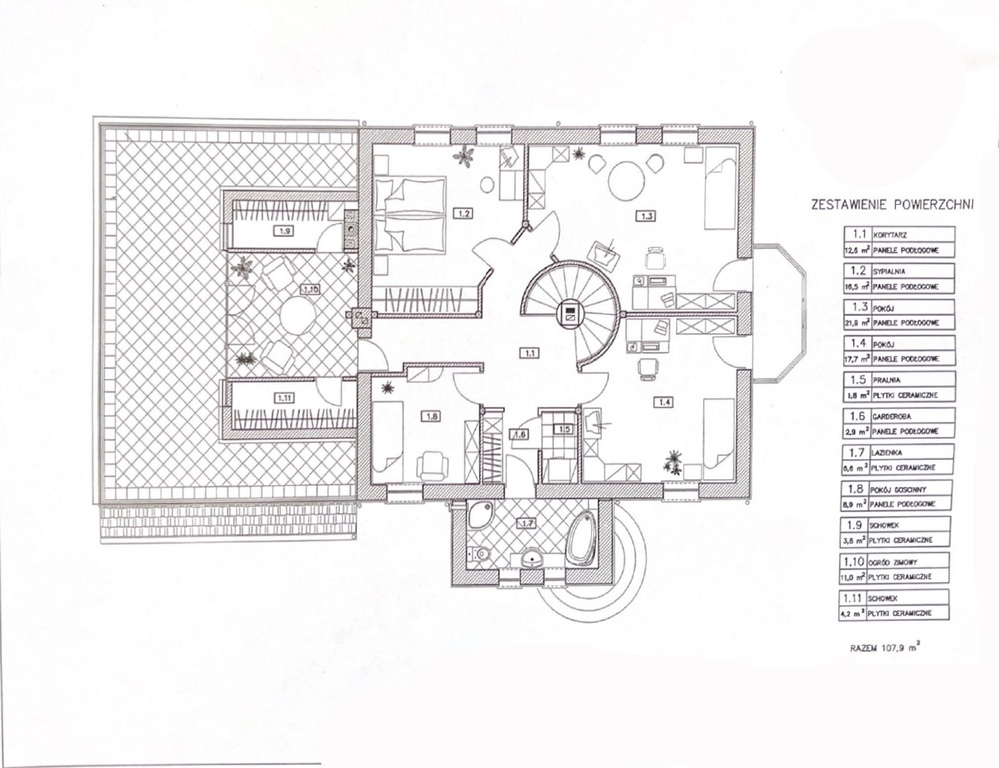
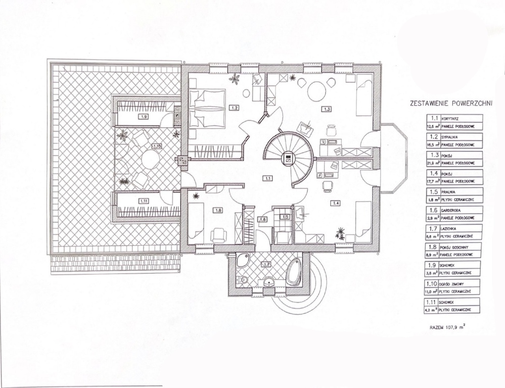
Piętro - do własnej aranżacji
JAKI JEST STANDARD ?
Dom w stanie surowym zamkniętym wybudowany z cegły oraz rozbudowany z pustaka ceramicznego.
Dach pokryty dachówką ceramiczną, ocieplenie styropianem o grubości 10 cm
Posesja całkowicie ogrodzona.
JAK WYGLĄDA KWESTIA MEDIÓW ?
- woda - miejska
- kanalizacja - szambo
- prąd - w domu
CO ZNAJDUJE SIĘ W NAJBLIŻSZYM OTOCZENIU ?
Najbliższe otoczenie to urokliwe pola i łąki, niezwykle zielona i spokojna okolica, w sąsiedztwie domy jednorodzinne. Dogodny dojazd do ościennych miast: 8 min do Tworogu, 25 min do Lublińca, 20 min do Tarnowskich Gór.
Oferta godna polecenia.
Zainteresowała Cię ta oferta? Zapraszamy na prezentację.
Czekam na Twój telefon 7 dni w tygodniu.
Jak nie odbiorę - na pewno oddzwonię.
Jako biuro jesteśmy z Tobą na każdym etapie procesu zakupu nieruchomości począwszy od wyboru oferty i jej prezentacji po finalizację transakcji i przekazanie nieruchomości nowym właścicielom. Pomagamy we wszelkich formalnościach związanych z uzyskaniem kredytu na zakup nieruchomości. Nasz doradca kredytowy bezpłatnie pomoże sprawdzić zdolność kredytową, przedstawi najkorzystniejszą propozycję spośród oferty banków i sprawnie przeprowadzi Państwa przez proces realizacji kredytu.
Sandra Biskupek
Doradca ds. nieruchomości
tel. 516 951 661
sbiskupek@polnoc.pl
PÓŁNOC Nieruchomości o. Radzionków
534 648 560
Męczenników Oświęcimia 34/1
41-922 Radzionków
Niniejsze ogłoszenie nie stanowi oferty w rozumieniu Kodeksu Cywilnego, lecz ma charakter informacyjny.
Przedstawione wizualizacje i grafiki mają charakter wyłącznie poglądowy i stanowią wyłącznie materiał pomocniczy, ułatwiający zorientowanie się w ogólnym wyglądzie oferowanej nieruchomości.
Niniejsze ogłoszenie wraz z jego elementami jest własnością Północ Nieruchomości Sp z o.o. lub podmiotu współpracującego. Wszelkie prawa zastrzeżone. Kopiowanie, rozpowszechnianie oraz korzystanie z niniejszych materiałów w jakikolwiek inny sposób wykraczający poza dozwolony użytek określony przepisami ustawy z 4 lutego 1994 r. o prawie autorskim i prawach pokrewnych (Dz. U. 1994, nr 24 poz. 83 z późn. zm.) bez pisemnej zgody Północ Nieruchomości Sp z o.o. lub podmiotów współpracujących jest zabronione i może stanowić podstawę odpowiedzialności cywilnej oraz karnej.
Niniejsze materiały stanowią tajemnicę przedsiębiorstwa PÓŁNOC NIERUCHOMOŚCI Sp. z o.o. w rozumieniu ustawy z dnia 16 kwietnia 1993 r. o zwalczaniu nieuczciwej konkurencji (Dz. U. z 2003 r., Nr 153, poz. 1503 z późn. zm.).