Kontakt
Nr oferty: 47230/3877/OGS

14 arowe działki budowlane Mokre. Obrzeża Zamościa

Mokre zobacz na mapie

290 000 PLN

Szczegóły oferty

Cena:
290 000,00 zł
Powierzchnia działki:
1 500,00 m2
Cena za m2:
193,33 zł
Szerokość działki (mb.):
35,00 m
Długość działki (mb.):
40,00 m
Ukształtowanie działki:
Płaska
Ogrodzenie:
Brak
Przeznaczenie działki:
Budowlana
Kształt działki:
Nieregularny
Plan miejscowy:
Plan zagospodarowania przestrzennego
Id oferty:
47230/3877/OGS

Opis

Na sprzedaż cztery sąsiadujące ze sobą działki położone w miejscowości Mokre, gm. Zamość, w bezpośrednim sąsiedztwie miasta Zamość. To propozycja dla osób, które chcą wybudować dom w spokojnej, podmiejskiej lokalizacji, ale z szybkim dojazdem do centrum.

Największy atut?
Możliwość zakupu kilku działek i stworzenia większej przestrzeni – pod komfortowy dom, rezydencję z ogrodem, a nawet inwestycję deweloperską w rozwijającej się strefie podmiejskiej.
W wariancie zakupu wszystkich działek jako jednego kompleksu – łącznie 0,57 ha (5700 m²) istnieje możliwość uzyskania atrakcyjnej ceny. 

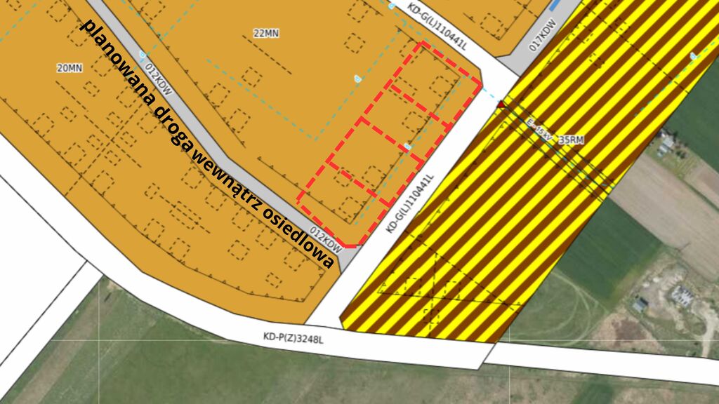
Działka nr 31/3 – narożna, z pełnym dostępem do mediów
Powierzchnia: 0,15 ha (1516 m²)
Przeznaczenie: zabudowa mieszkaniowa jednorodzinna (MPZP)
Dojazd: bezpośredni – z dwóch stron (droga gminna asfaltowa)
Dlaczego warto?
  • działka narożna – przylega do dwóch dróg (od północnego-wschodu i południowego-zachodu)
  • kształt: prostokąt ze ściętym rogiem
  • teren płaski, nieogrodzony
  • niskie natężenie ruchu – droga lokalna
  • przystanek autobusowy przy północnej granicy działki
Media w granicach działki:
  • gaz
  • światłowód
  • kanalizacja
  • linia energetyczna – po przeciwnej stronie ul. Myśliwskiej
  • wodociąg - sieć projektowana w granicach działki 
To bardzo dobra propozycja dla osób, które cenią wygodę podłączeń i elastyczność projektu domu (narożne położenie daje więcej możliwości aranżacyjnych).

Działka nr 31/4 – ustawna i dobrze skomunikowana
Powierzchnia: 0,14 ha (1462 m²)
Przeznaczenie w MPZP: zabudowa mieszkaniowa jednorodzinna (MPZP)
Dojazd: bezpośredni z przedłużenia ul. Myśliwskiej (droga gminna asfaltowa)
Charakterystyka:
  • kształt: prostokąt
  • teren płaski
  • spokojne sąsiedztwo zabudowy jednorodzinnej
Media:
  • światłowód i kanalizacja w granicy działki
  • gaz w drodze
  • linia energetyczna po drugiej stronie ulicy
  • wodociąg - sieć projektowana w granicach działki 
Działka o dobrej proporcji ceny do możliwości – idealna dla osób szukających wygodnego miejsca pod dom w spokojnej okolicy.

Działka nr 31/5 –  z dużym potencjałem aranżacyjnym
Powierzchnia: 0,14 ha (1459 m²)
Przeznaczenie: zabudowa mieszkaniowa jednorodzinna (MPZP)
Dojazd: bezpośredni – droga gminna asfaltowa
 Charakterystyka:
  • kształt: prostokąt
  • teren płaski
  • częściowo porośnięta roślinnością i pojedynczymi drzewami
  • spokojna, osiedlowa okolica
Media:
  • światłowód w pasie drogowym
  • kanalizacja, gaz i linia energetyczna – po przeciwnej stronie ulicy
  • wodociąg - sieć projektowana w granicach działki 
To dobra opcja dla osób, które chcą zaaranżować przestrzeń od podstaw i dopasować projekt do własnej wizji.

Działka nr 31/6 –  skrajna, niebawem jej południową granicę wyznaczy nowoprojektowana ulica osiedlowa.
Powierzchnia: 0,14 ha (1450 m²)
Przeznaczenie: zabudowa mieszkaniowa jednorodzinna (MPZP)
Dojazd: bezpośredni – droga gminna asfaltowa
Charakterystyka:
  • kształt: prostokąt ze ściętym rogiem
  • teren płaski
  • częściowo porośnięta roślinnością i pojedynczymi drzewami samosiejnymi
  • spokojna, osiedlowa okolica
Media:
  • światłowód w pasie drogowym
  • kanalizacja, gaz i linia energetyczna – po przeciwnej stronie ulicy
  • wodociąg - sieć projektowana w granicach działki 



Atuty lokalizacji – Mokre, gm. Zamość To osiedlowa część miejscowości Mokre – bliskie przedmieścia Zamościa. Sąsiedztwo stanowi niska zabudowa jednorodzinna.  Zaletą jest możliwość kilku wygodnych wariantów dojazdu do działek - od strony Płoskiego, Skokówki, Hubal.
Stąd, w kilka minut dojedziesz do centrum Zamościa, a jednocześnie zamieszkasz w spokojnym, zielonym otoczeniu.
W okolicy znajdują się:
  • sklepy
  • przychodnia zdrowia
  • lotnisko
  • pola uprawne, łąki i otwarta przestrzeń
To lokalizacja idealna dla rodzin, które chcą połączyć ciszę i bezpieczeństwo z wygodnym dostępem do infrastruktury miejskiej.

Przeznaczenie w MPZP:
Tereny zabudowy mieszkaniowej jednorodzinnej z dopuszczeniem działalności gospodarczej w zakresie nie oddziaływującym na środowisko i zdrowie ludzi
 Dopuszczalna zabudowa: budynki mieszkalne jednorodzinne (również zabudowa bliźniacza i szeregowa) budynki gospodarcze i garaże, usługi oraz obiekty małej architektury. 

Dodatkowy potencjał inwestycyjny
  • możliwość połączenia działek
  • rozwijająca się strefa podmiejska
  • atrakcyjna lokalizacja dla inwestorów
  • bardzo dobre skomunikowanie z miastem

Jeśli myślisz o budowie domu lub inwestycji – to może być Twój najlepszy wybór - w pakiecie dostaniesz ciszę, przestrzeń i kontakt z naturą, a jednocześnie pozostaniesz w zasięgu szybkiego dojazdu do miasta i pełnej infrastruktury.
Zakup wszystkich czterech działek to łącznie 0,57 ha – przestrzeń, która daje realne możliwości projektowe i inwestycyjne.

Nie czekaj – zadzwoń, umów się na prezentację.
Zapraszam! 

Bezpłatnie pomagamy w formalnościach związanych z uzyskaniem kredytu na zakup nieruchomości. Nasz doradca kredytowy bezpłatnie sprawdzi Twoją zdolność kredytową i przedstawi najlepsze oferty z ponad 10 banków.
Posiadasz podobną nieruchomość? Skorzystaj z bezpłatnej konsultacji – odpowiemy na pytania dotyczące ceny, procesu sprzedaży oraz możliwości poprawy atrakcyjności oferty.
 
Oferujemy również:
•⁠  ⁠Pośrednictwo w kupnie, sprzedaży oraz najmie nieruchomości.
•⁠  ⁠Pomoc w sprzedaży nieruchomości o skomplikowanej sytuacji prawnej.
•⁠  ⁠Rzetelne oceny wartości nieruchomości.
•⁠ Uzyskanie świadectwa energetycznego.
Nie zwlekaj, zadzwoń już teraz!

Justyna Łagoda 
Tel. 665 750 080


Północ nieruchomości Zamość
ul. Żeromskiego 3
22- 400 Zamość

Niniejsze ogłoszenie nie stanowi oferty w rozumieniu Kodeksu Cywilnego, lecz ma charakter informacyjny.

Przedstawione wizualizacje i grafiki mają charakter wyłącznie poglądowy i stanowią wyłącznie materiał pomocniczy, ułatwiający zorientowanie się w ogólnym wyglądzie oferowanej nieruchomości.

Niniejsze ogłoszenie wraz z jego elementami jest własnością Północ Nieruchomości Sp z o.o. lub podmiotu współpracującego. Wszelkie prawa zastrzeżone. Kopiowanie, rozpowszechnianie oraz korzystanie z niniejszych materiałów w jakikolwiek inny sposób wykraczający poza dozwolony użytek określony przepisami ustawy z 4 lutego 1994 r. o prawie autorskim i prawach pokrewnych (Dz. U. 1994, nr 24 poz. 83 z późn. zm.) bez pisemnej zgody Północ Nieruchomości Sp z o.o. lub podmiotów współpracujących jest zabronione i może stanowić podstawę odpowiedzialności cywilnej oraz karnej.

Niniejsze materiały stanowią tajemnicę przedsiębiorstwa PÓŁNOC NIERUCHOMOŚCI Sp. z o.o. w rozumieniu ustawy z dnia 16 kwietnia 1993 r. o zwalczaniu nieuczciwej konkurencji (Dz. U. z 2003 r., Nr 153, poz. 1503 z późn. zm.).

Mapa

Zapytaj o tę ofertę

Lub zadzwoń