Kontakt
Nr oferty: 1272/3877/OHS

Budynek podukcyjno - magazynowy z biurem

Dobków zobacz na mapie

1 720 000 PLN

Szczegóły oferty

Cena:
1 720 000,00 zł
Powierzchnia:
727,70 m2
Cena za m2:
2 363,61 zł
Rynek:
Wtórny
Rok budowy:
1995
Id oferty:
1272/3877/OHS

Opis

Oferujemy na sprzedaż, bardzo dobrze utrzymany budynek produkcyjno -magazynowy, zlokalizowany w cichej okolicy, w gminie Wodzierady, z dogodnym dojazdem do pobliskiej trasy S14. Cały budynek został wzniesiony w latach 90-tych, i był od początku zaprojektowany jako powierzchnia produkcyjna i magazynowa, z wydzielonymi biurami, dużym zapleczem socjalnym, własną kotłownią z ekonomicznym piecem na paliwo stałe i dodatkową instalacją odgromową. To może być idealne miejsce dla Twojej firmy!

Bydynek jest zadbany, ogrzewany i w bardzo dobrym stanie technicznym.  Wszystkie pomieszczenia są dobrze doświetlone i w stanie gotowym do wprowadzenia.
Szeroka brama wjazdowa zapewnia idealny dostęp do części roboczej hali. 

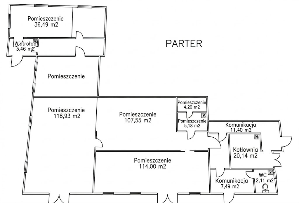
Na parterze znajduje się wykończona recepcja wraz z biurem, i dwie gotowe, główne hale produkcyjne z węzłem sanitarnym, dostepnę zarówno z biura jak i od zaplecza, a także wyposażone w wygodne bramy przemysłowe.  Wysokość hal to 3.1m

Biuro na parterze - 37m²

Hala 1  - 222m
² 

Hala 2 - 119m
²

Magazyn - 9.5m ²

Na pierrwszym pietrzę znajdziemy wykończone, obszerne pomieszczenia socjalne, łazienki i dodatkowe pomieszczenia do wykorzystania jako biura lub cześć produkcyjno - magazynową.

Pomieszczenia biurowo produkcyjne na piętrze  - 253m²

Dodatkowo do wykorzystania są równierz zabudowania magazynowe wolnostojące o powierzchni okolo 300m² , co daje duże możliwości składowania np materiałów lub gotowych wyrobów. 

Najważniejsze atuty budynku:

- Bardzo dobry stan techniczny
- Własny wjazd i obszerny parking
- Dogodny dojazd nową drogą
- Funkcjonalny układ pomieszczeń dający duże możliwości adaptacyjne
- Dodatkowe magazyny wolnostające o powierzchni 300m² wliczone w cenę
- Ogromny potencjał aranżacyjny 
- Swietna cena - tylko 2741 PLN / m² 

Zapraszamy do kontaktu w celu uzyskania szczegółow, umówienia prezentacji i poznania wszelkich aspektów nieruchomości.

Grzegorz Gronkowski
Mobilny doradca ds. nieruchomości – Województwo Łódzkie
PÓŁNOC Nieruchomości
+48 537 525 793
ggronkowski@polnoc.pl      www.polnoc.pl

Niniejsze ogłoszenie nie stanowi oferty w rozumieniu Kodeksu Cywilnego, lecz ma charakter informacyjny.

Przedstawione wizualizacje i grafiki mają charakter wyłącznie poglądowy i stanowią wyłącznie materiał pomocniczy, ułatwiający zorientowanie się w ogólnym wyglądzie oferowanej nieruchomości.

Niniejsze ogłoszenie wraz z jego elementami jest własnością Północ Nieruchomości Sp z o.o. lub podmiotu współpracującego. Wszelkie prawa zastrzeżone. Kopiowanie, rozpowszechnianie oraz korzystanie z niniejszych materiałów w jakikolwiek inny sposób wykraczający poza dozwolony użytek określony przepisami ustawy z 4 lutego 1994 r. o prawie autorskim i prawach pokrewnych (Dz. U. 1994, nr 24 poz. 83 z późn. zm.) bez pisemnej zgody Północ Nieruchomości Sp z o.o. lub podmiotów współpracujących jest zabronione i może stanowić podstawę odpowiedzialności cywilnej oraz karnej.

Niniejsze materiały stanowią tajemnicę przedsiębiorstwa PÓŁNOC NIERUCHOMOŚCI Sp. z o.o. w rozumieniu ustawy z dnia 16 kwietnia 1993 r. o zwalczaniu nieuczciwej konkurencji (Dz. U. z 2003 r., Nr 153, poz. 1503 z późn. zm.).

Mapa

Zapytaj o tę ofertę

Lub zadzwoń