Kontakt
Nr oferty: 122182/3877/OMS

M4 przy uczelni – 3 pokoje, 2. piętro, do remontu!

Biała Podlaska, Sidorska zobacz na mapie

330 000 PLN

Szczegóły oferty

Cena:
330 000,00 zł
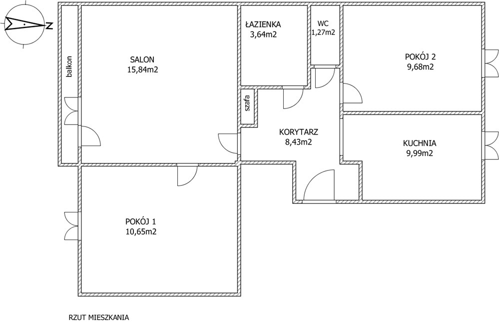
Powierzchnia:
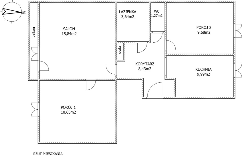
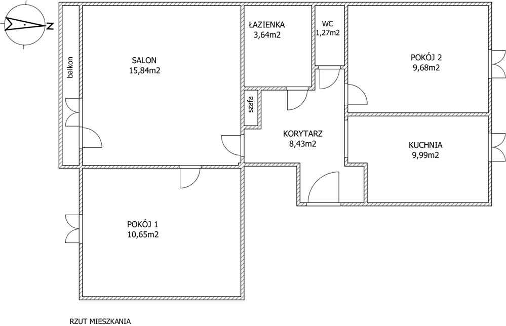
59,50 m2
Cena za m2:
5 546,22 zł
Rok budowy:
1992
Liczba pięter:
4
Piętro:
2
Garaż/Miejsca parkingowe:
tak
Rynek:
Wtórny
Rodzaj budynku:
Blok
Liczba pokoi:
3
Typ kuchni:
Oddzielna
Id oferty:
122182/3877/OMS

Opis

REZERWACJA!

Na sprzedaż mieszkanie o powierzchni 59,50m² na 2 piętrze, w Białej Podlaskiej, przy ul. Sidorskiej 103 na osiedlu BIAWENA!

W doskonałej lokalizacji – tuż obok uczelni!

Mieszkanie idealnie sprawdzi się jako inwestycja pod wynajem lub dla rodziny jako przestrzeń do własnej aranżacji.

Mieszkanie składa się:

* Salon z dużym balkonem (przechodni pokój)
* 2 pokoje
* oddzielna kuchnia
* oddzielna łazienka i WC
* korytarz

🔹 Najważniejsze atuty:

✅ 3 pokoje, w tym jeden przechodni
✅ 2. piętro
✅ Stan do remontu – pełna dowolność w aranżacji wnętrza wg nowoczesnych standardów
✅ Świetna lokalizacja – blisko uczelnia, sklepy, komunikacja miejska, basen,
✅ Dostępne piwnica/balkon/parking

Czynsz: 500/600zł + prąd (wg zużycia)


Idealna propozycja dla inwestora lub osób szukających nieruchomości do własnej aranżacji.

📞 Zadzwoń i umów się na prezentację!

Bezpłatnie pomagamy w formalnościach związanych z uzyskaniem kredytu na zakup nieruchomości. Nasz doradca kredytowy bezpłatnie sprawdzi Twoją zdolność kredytową i przedstawi najlepsze oferty z ponad 10 banków.
 
Posiadasz podobną nieruchomość? Skorzystaj z bezpłatnej konsultacji – odpowiemy na pytania dotyczące ceny, procesu sprzedaży oraz możliwości poprawy atrakcyjności oferty.
 
Oferujemy również:
•⁠  ⁠Pośrednictwo w kupnie, sprzedaży oraz najmie nieruchomości
•⁠  ⁠Pomoc w sprzedaży nieruchomości o skomplikowanej sytuacji prawnej
•⁠  ⁠Rzetelne oceny wartości nieruchomości
 -Uzyskanie świadectwa energetycznego


Nie zwlekaj, zadzwoń już teraz!

Edyta Bancerz
Doradca ds. nieruchomości
tel. 885 851 158
e-mail: ebancerz@polnoc.pl
Północ Nieruchomości oddział Biała Podlaska


Niniejsze ogłoszenie nie stanowi oferty w rozumieniu Kodeksu Cywilnego, lecz ma charakter informacyjny.

Przedstawione wizualizacje i grafiki mają charakter wyłącznie poglądowy i stanowią wyłącznie materiał pomocniczy, ułatwiający zorientowanie się w ogólnym wyglądzie oferowanej nieruchomości.

Niniejsze ogłoszenie wraz z jego elementami jest własnością Północ Nieruchomości Sp z o.o. lub podmiotu współpracującego. Wszelkie prawa zastrzeżone. Kopiowanie, rozpowszechnianie oraz korzystanie z niniejszych materiałów w jakikolwiek inny sposób wykraczający poza dozwolony użytek określony przepisami ustawy z 4 lutego 1994 r. o prawie autorskim i prawach pokrewnych (Dz. U. 1994, nr 24 poz. 83 z późn. zm.) bez pisemnej zgody Północ Nieruchomości Sp z o.o. lub podmiotów współpracujących jest zabronione i może stanowić podstawę odpowiedzialności cywilnej oraz karnej.

Niniejsze materiały stanowią tajemnicę przedsiębiorstwa PÓŁNOC NIERUCHOMOŚCI Sp. z o.o. w rozumieniu ustawy z dnia 16 kwietnia 1993 r. o zwalczaniu nieuczciwej konkurencji (Dz. U. z 2003 r., Nr 153, poz. 1503 z późn. zm.).

Mapa

Zapytaj o tę ofertę

Lub zadzwoń