Kontakt
Nr oferty: 14285/3877/OMW

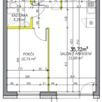
Nowe 2 pokoje 35,72 m² | 1 piętro | 2025

Biała Podlaska, ul. Witolda Pileckiego zobacz na mapie

1 600 PLN

Szczegóły oferty

Cena:
1 600,00 zł
Powierzchnia:
35,72 m2
Cena za m2:
47,59 zł
Rok budowy:
2025
Liczba pięter:
5
Piętro:
1
Garaż/Miejsca parkingowe:
tak
Rynek:
Wtórny
Rodzaj budynku:
Mieszkalno-biurowy
Liczba pokoi:
2
Typ kuchni:
Otwarta
Winda:
tak
Id oferty:
14285/3877/OMW

Opis

Do wynajęcia nowe, 2-pokojowe mieszkanie o powierzchni 35,72 m², położone na 1 piętrze w budynku z 2025 roku przy ul. Witolda Pileckiego 31A.

Mieszkanie dostępne od zaraz – pierwszy najem.
Układ pomieszczeń:
  • salon z aneksem kuchennym
  • oddzielna sypialnia
  • łazienka
  • balkon od strony południowej
Nowoczesne budownictwo zapewnia dobrą izolację, estetyczne części wspólne oraz komfort użytkowania. Balkon z ekspozycją południową sprawia, że mieszkanie jest jasne i dobrze doświetlone.
Koszty:
  • 1600 zł – czynsz najmu
  • ok. 400 zł – czynsz administracyjny
  • dodatkowo opłaty według zużycia (prąd, woda itp.)
  • kaucja - 1600 zł 
Wymagania:
  • osoby pracujące
  • umowa najmu na minimum 12 miesięcy

Mieszkanie idealne dla jednej osoby lub pary, która szuka nowego, zadbanego lokum w spokojnej części miasta. 

Dostępne od zaraz!
Nie czekaj – umów się na prezentację i poznaj to miejsce osobiście!


Bezpłatnie pomagamy w formalnościach związanych z uzyskaniem kredytu na zakup nieruchomości. Nasz doradca kredytowy bezpłatnie sprawdzi Twoją zdolność kredytową i przedstawi najlepsze oferty z ponad 10 banków.
 
Posiadasz podobną nieruchomość? Skorzystaj z bezpłatnej konsultacji – odpowiemy na pytania dotyczące ceny, procesu sprzedaży oraz możliwości poprawy atrakcyjności oferty.
 
Oferujemy również:
•⁠  ⁠Pośrednictwo w kupnie, sprzedaży oraz najmie nieruchomości
•⁠  ⁠Pomoc w sprzedaży nieruchomości o skomplikowanej sytuacji prawnej
•⁠  ⁠Rzetelne oceny wartości nieruchomości
•⁠  Uzyskanie świadectwa energetycznego

Nie zwlekaj, zadzwoń już teraz!

Mateusz Szymczuk
Doradca ds. nieruchomości
tel. 885 851 160
e-mail: mszymczuk@polnoc.pl
Północ Nieruchomości oddział Biała Podlaska


Niniejsze ogłoszenie nie stanowi oferty w rozumieniu Kodeksu Cywilnego, lecz ma charakter informacyjny.

Przedstawione wizualizacje i grafiki mają charakter wyłącznie poglądowy i stanowią wyłącznie materiał pomocniczy, ułatwiający zorientowanie się w ogólnym wyglądzie oferowanej nieruchomości.

Niniejsze ogłoszenie wraz z jego elementami jest własnością Północ Nieruchomości Sp z o.o. lub podmiotu współpracującego. Wszelkie prawa zastrzeżone. Kopiowanie, rozpowszechnianie oraz korzystanie z niniejszych materiałów w jakikolwiek inny sposób wykraczający poza dozwolony użytek określony przepisami ustawy z 4 lutego 1994 r. o prawie autorskim i prawach pokrewnych (Dz. U. 1994, nr 24 poz. 83 z późn. zm.) bez pisemnej zgody Północ Nieruchomości Sp z o.o. lub podmiotów współpracujących jest zabronione i może stanowić podstawę odpowiedzialności cywilnej oraz karnej.

Niniejsze materiały stanowią tajemnicę przedsiębiorstwa PÓŁNOC NIERUCHOMOŚCI Sp. z o.o. w rozumieniu ustawy z dnia 16 kwietnia 1993 r. o zwalczaniu nieuczciwej konkurencji (Dz. U. z 2003 r., Nr 153, poz. 1503 z późn. zm.).

Mapa

Zapytaj o tę ofertę

Lub zadzwoń