Kontakt
Nr oferty: 115151/3877/OMS

Nowa inwestycja - mieszkanie 3 pokojowe z balkonem

Bolesławiec, ul. Staroszkolna zobacz na mapie

536 352 PLN

Szczegóły oferty

Cena:
536 352,00 zł
Powierzchnia:
72,48 m2
Cena za m2:
7 400,00 zł
Rok budowy:
2024
Liczba pięter:
4
Piętro:
2
Garaż/Miejsca parkingowe:
tak
Rynek:
Pierwotny
Rodzaj budynku:
Niski blok
Liczba pokoi:
3
Typ kuchni:
Aneks
Winda:
tak
Id oferty:
115151/3877/OMS

Opis

Północ Nieruchomości oferuje do sprzedaży nowe mieszkania w stanie deweloperskim w Bolesławcu.
Mieszkania znajdują się na nowo powstającym osiedlu mieszkaniowym w Bolesławcu. Etap drugi - cztery budynki czteropiętrowe z windami i miejscami parkingowymi w garażu podziemnym.

SZCZEGÓŁY OFERTY:
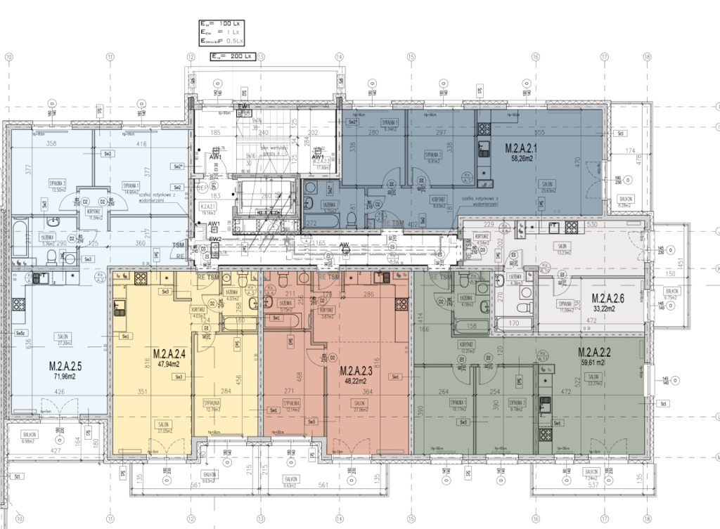
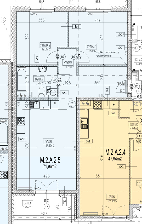
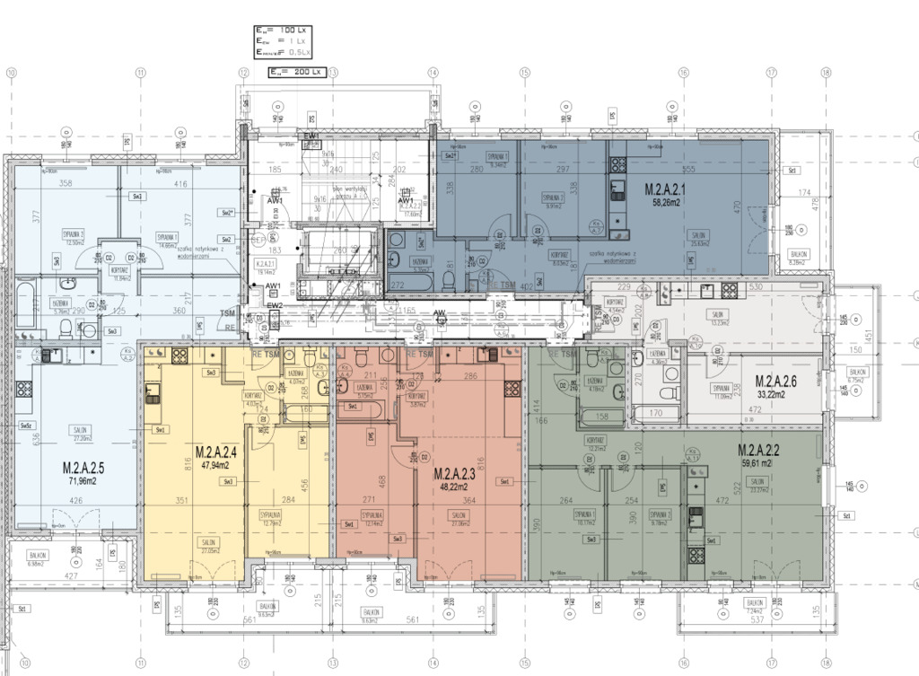
Prezentowana oferta dotyczy mieszkania trzypokojowego nr M2.A.2.5 o powierzchni 72,48 m2 położonego na drugim piętrze czteropiętrowego budynku.
Wymiary lokalu podane na załączonych rzutach są tylko orientacyjne. Rzeczywista powierzchnia mieszkania to 72,48 m2.
Lokal składa się z:
- przestronnego salonu z aneksem kuchennym i wyjściem na duży balkon od strony południowej,
- dwóch sypialni,
- łazienki,
- przedpokoju.
Ogrzewanie centralne i ciepła woda z kotłowni gazowej w budynku wspomaganej pompami ciepła i panelami fotowoltaicznymi zamontowanymi na dachu budynku..
Mieszkanie oferowane jest w stanie deweloperskim :
- okna trzy szybowe od wewnątrz białe, od zewnątrz w kolorze antracytowym (rolety zewnętrzne dodatkowo płatne 1600 zł od okna)
- parapety zewnętrzne metalowe i wewnętrzne z konglomeratu,
- tynki gipsowe,
- drzwi wejściowe,
- na posadzkach wylewka betonowa,
- grzejniki panelowe,
- sufity - filigran gładki.

WAŻNA INFORMACJA:
- Do mieszkania można dokupić miejsce parkingowe w garażu podziemnym za dodatkową opłatą (miejsce parkingowe z komórką lokatorską 45700 zł, bez komórki lokatorskiej 40600 zł).
- W ofercie posiadamy w tej lokalizacji również mieszkania dwu i trzypokojowe o różnych powierzchniach na wszystkich pięciu kondygnacjach od parteru do czwartego piętra.
Winda jest od miejsc parkingowych w garażu podziemnym do ostatniego czwartego piętra.
- Mieszkania posiadają indywidualne opomiarowanie C.O. oraz ciepłej i zimnej wody.
- Okolica bardzo spokojna. W sąsiedztwie ogrody działkowe i niska zabudowa wielorodzinna.
- Przed budynkami ogólnodostępne miejsca parkingowe bezpłatne.
- Bardzo dobry dojazd do centrum miasta ( nowa droga).
- BUDOWA ZAKOŃCZONA - MIESZKANIE GOTOWE DO ODDANIA!

-  Prowadzimy bezpłatne wstępne rezerwacje. Pierwsza transza dopiero przy umowie deweloperskiej notarialnej.

KUPUJĄCY NIE PŁACI PROWIZJI BIURA NIERUCHOMOŚCI I ZWOLNIONY JEST Z OPŁATY 2% PODATKU PCC.

Chcesz uzyskać więcej informacji o tej lub innych ofertach - dzwoń nr tel. 883 356 471 lub napisz na adres e-mail: pmularski@polnoc.pl

PÓŁNOC NIERUCHOMOŚCI O/BOLESŁAWIEC
Jesteśmy z Wami na każdym etapie procesu zakupu nieruchomości. Prezentujemy dostępne oferty, przygotowujemy niezbędne dokumenty do umowy przedwstępnej oraz umowy przeniesienia własności, a także uczestniczymy w przekazaniu nieruchomości nowym właścicielom.

Bezpłatnie pośredniczymy we wszelkich formalnościach związanych z uzyskaniem kredytu hipotecznego. Nasz doradca kredytowy sprawdza zdolność kredytową, przedstawia najkorzystniejszą propozycję spośród ofert banków i sprawnie przeprowadza Kupujących przez cały proces realizacji kredytu.

Zapraszamy do naszego biura:
ul. Zgorzelecka 12 w Bolesławcu, tel. 75 646 70 71, boleslawiec@polnoc.pl

Doradcy ds. kredytów hipotecznych:
Sylwia Szczepaniak, tel. 512 490 669
Erwina Król, tel. 882 010 787

Niniejsze ogłoszenie nie stanowi oferty w rozumieniu Kodeksu Cywilnego, lecz ma charakter informacyjny.

Przedstawione wizualizacje i grafiki mają charakter wyłącznie poglądowy i stanowią wyłącznie materiał pomocniczy, ułatwiający zorientowanie się w ogólnym wyglądzie oferowanej nieruchomości.

Niniejsze ogłoszenie wraz z jego elementami jest własnością Północ Nieruchomości Sp z o.o. lub podmiotu współpracującego. Wszelkie prawa zastrzeżone. Kopiowanie, rozpowszechnianie oraz korzystanie z niniejszych materiałów w jakikolwiek inny sposób wykraczający poza dozwolony użytek określony przepisami ustawy z 4 lutego 1994 r. o prawie autorskim i prawach pokrewnych (Dz. U. 1994, nr 24 poz. 83 z późn. zm.) bez pisemnej zgody Północ Nieruchomości Sp z o.o. lub podmiotów współpracujących jest zabronione i może stanowić podstawę odpowiedzialności cywilnej oraz karnej.

Niniejsze materiały stanowią tajemnicę przedsiębiorstwa PÓŁNOC NIERUCHOMOŚCI Sp. z o.o. w rozumieniu ustawy z dnia 16 kwietnia 1993 r. o zwalczaniu nieuczciwej konkurencji (Dz. U. z 2003 r., Nr 153, poz. 1503 z późn. zm.).

Mapa

Zapytaj o tę ofertę

Lub zadzwoń