Kontakt

Nowe Apartamenty przy Rynku w Bytomiu bez PCC!!!

Centrum, Karola Szymanowskiego zobacz na mapie

630 463 PLN

Cena:
630 462,68 zł
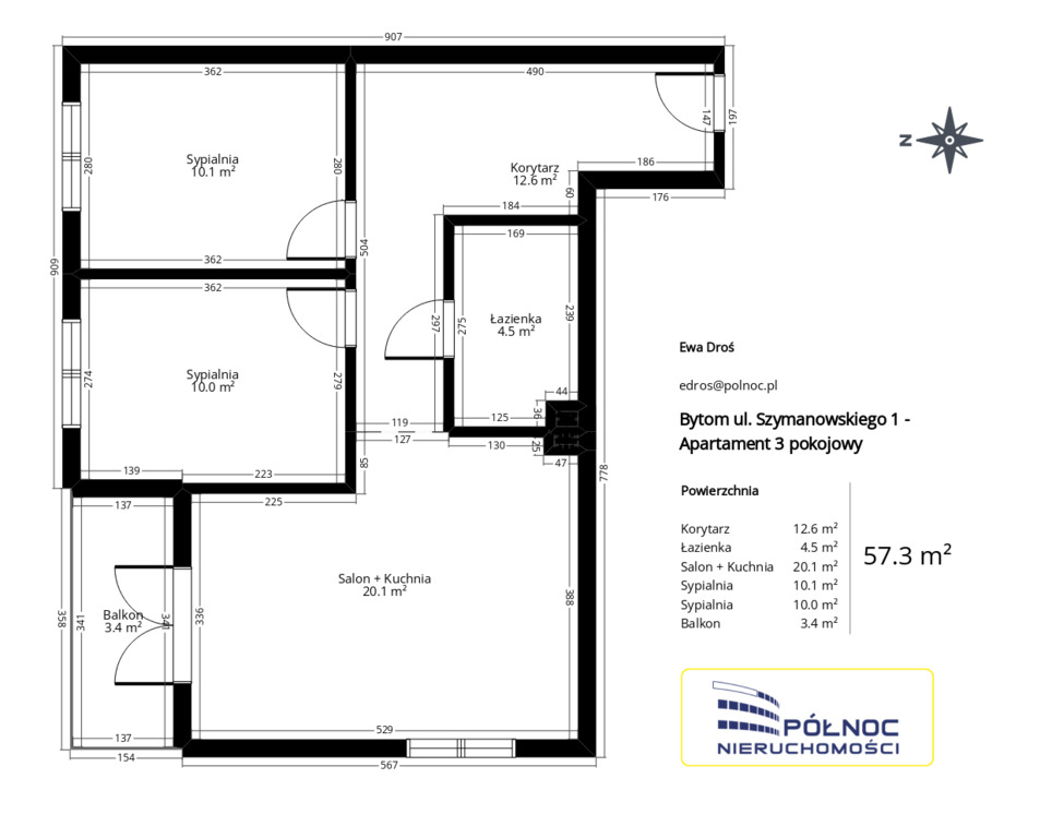
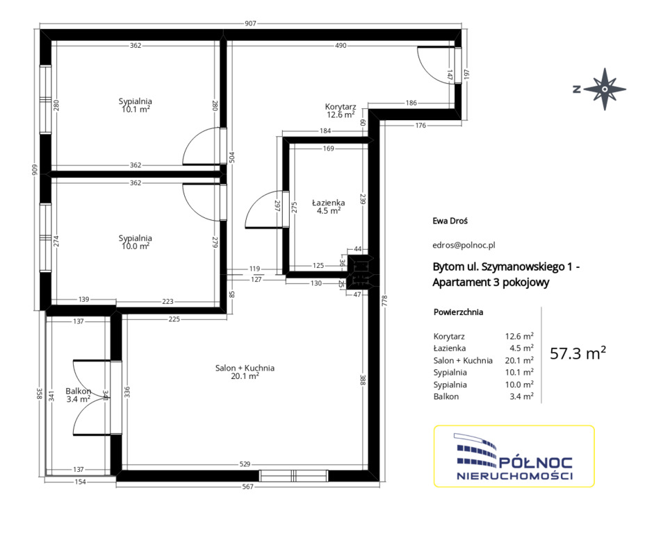
Powierzchnia:
57,32 m2
Cena za m2:
10 999,00 zł
Rok budowy:
2022
Liczba pięter:
4
Piętro:
1
Rynek:
Pierwotny
Rodzaj budynku:
Budynek apartamentowy
Liczba pokoi:
3
Typ kuchni:
Aneks
Winda:
tak
Id oferty:
120487/3877/OMS
Opis
Twoje wymarzone mieszkanie teraz w jeszcze lepszej cenie! Skorzystaj z obniżki i zamieszkaj już dziś!

Nowa Kamienica przy ul.Szymanowskiego 1 w Bytomiu – Apartamenty 1-, 2- i 3-Pokojowe z Windą!
Kupujący nie płaci 2% podatku PCC! 

Zapraszamy do zapoznania się z ofertą sprzedaży mieszkań w nowo wybudowanej kamienicy zlokalizowanej w samym sercu Bytomia, tuż przy rynku. Ta nowoczesna inwestycja stanowi wyjątkowe połączenie tradycyjnej estetyki i współczesnych rozwiązań architektonicznych, oferując mieszkańcom wysoki standard wykończenia oraz komfort życia w historycznym centrum miasta.

Kamienica obejmuje 24 nowoczesne apartamenty, w tym:
-kawalerki, idealne dla singli lub jako inwestycja na wynajem,
-mieszkania 2-pokojowe, doskonałe dla par lub małych rodzin,
-przestronne mieszkania 3-pokojowe, które spełnią oczekiwania osób poszukujących komfortu i większej przestrzeni.

Oferowany apartament 3 pokojowy o powierzchni 57,32m2 składa się z następujących stref:
- Salon z aneksem kuchennym-20.06m2
- Sypialnia-10.12m2
- Pokój-10.09m2
- Łazienka z wc-4.45m2
- Korytarz-12.60m2
Balkon-3.39m2

Udogodnienia i Standard Wykończenia:

Winda: Kamienica została wyposażona w windę, co stanowi rzadkość w tego typu budynkach. Dzięki temu dostęp do wszystkich kondygnacji jest wygodny i komfortowy dla mieszkańców w każdym wieku, w tym rodzin z dziećmi oraz osób z ograniczoną mobilnością
Ogrzewanie miejskie i ciepła woda z sieci: Mieszkania są podłączone do miejskiego systemu ogrzewania oraz sieci ciepłej wody, co zapewnia komfort cieplny przez cały rok oraz redukcję kosztów eksploatacji.
Nowoczesne materiały budowlane: Budynek wybudowano z użyciem wysokiej jakości materiałów, co gwarantuje nie tylko estetyczny wygląd, ale także trwałość na lata.Eleganckie części wspólne: Starannie wykończone korytarze i klatki schodowe tworzą spójny, stylowy charakter budynku.
Balkon: większość mieszkań posiada balkon lub loggię, z której można podziwiać widok na miasto.

Lokalizacja
Kamienica znajduje się przy ul. Szymanowskiego 1 , w samym sercu Bytomia, co gwarantuje bliskość wszystkich najważniejszych punktów miejskich. W bezpośrednim sąsiedztwie znajdują się liczne restauracje, kawiarnie, sklepy,szkoły a także instytucje kulturalne, co pozwala mieszkańcom czerpać pełnię z życia w centrum miasta. Doskonała komunikacja miejska (autobus, tramwaj ,kolej miejska)oraz łatwy dostęp do głównych arterii drogowych umożliwiają wygodne poruszanie się zarówno po Bytomiu, jak i do sąsiednich miejscowości.

Oferta godna polecenia !!!!
Zainteresowała Cię ta oferta
Zadzwoń i umów się na spotkanie :)
Czekam na Twój telefon 7 dni w tygodniu.
Jak nie odbiorę - na pewno oddzwonię.

Jako biuro jesteśmy z Tobą na każdym etapie procesu zakupu nieruchomości począwszy od wyboru oferty i jej prezentacji po finalizację transakcji i przekazanie nieruchomości nowym właścicielom. Pomagamy we wszelkich formalnościach związanych z uzyskaniem kredytu na zakup nieruchomości. Nasz doradca kredytowy bezpłatnie pomoże sprawdzić zdolność kredytową, przedstawi najkorzystniejszą propozycję spośród oferty banków i sprawnie przeprowadzi Państwa przez proces realizacji kredytu.

Ewa Droś
Dyrektor oddziału
797 252 624
edros@polnoc.pl
PÓŁNOC Nieruchomości o. Radzionków
534 648 560
Męczenników Oświęcimia 34/1
41-922 Radzionków



Niniejsze ogłoszenie nie stanowi oferty w rozumieniu Kodeksu Cywilnego, lecz ma charakter informacyjny.

Przedstawione wizualizacje i grafiki mają charakter wyłącznie poglądowy i stanowią wyłącznie materiał pomocniczy, ułatwiający zorientowanie się w ogólnym wyglądzie oferowanej nieruchomości.

Niniejsze ogłoszenie wraz z jego elementami jest własnością Północ Nieruchomości Sp z o.o. lub podmiotu współpracującego. Wszelkie prawa zastrzeżone. Kopiowanie, rozpowszechnianie oraz korzystanie z niniejszych materiałów w jakikolwiek inny sposób wykraczający poza dozwolony użytek określony przepisami ustawy z 4 lutego 1994 r. o prawie autorskim i prawach pokrewnych (Dz. U. 1994, nr 24 poz. 83 z późn. zm.) bez pisemnej zgody Północ Nieruchomości Sp z o.o. lub podmiotów współpracujących jest zabronione i może stanowić podstawę odpowiedzialności cywilnej oraz karnej.

Niniejsze materiały stanowią tajemnicę przedsiębiorstwa PÓŁNOC NIERUCHOMOŚCI Sp. z o.o. w rozumieniu ustawy z dnia 16 kwietnia 1993 r. o zwalczaniu nieuczciwej konkurencji (Dz. U. z 2003 r., Nr 153, poz. 1503 z późn. zm.).

Mapa

Zapytaj o tę ofertę

Lub zadzwoń