Kontakt
Nr oferty: 122940/3877/OMS

Inwestycyjna kawalerka - Centrum Piłsudskiego

Centrum, marsz. Józefa Piłsudskiego zobacz na mapie

129 777 PLN

Szczegóły oferty

Cena:
129 777,00 zł
Powierzchnia:
30,00 m2
Cena za m2:
4 325,90 zł
Liczba pięter:
3
Piętro:
3
Garaż/Miejsca parkingowe:
tak
Rynek:
Wtórny
Rodzaj budynku:
Kamienica
Liczba pokoi:
1
Typ kuchni:
Widna
Id oferty:
122940/3877/OMS

Opis

Kompaktowe M z duszą - idealne na start lub inwestycję!
Masz dość wynajmowania? A może szukasz bezpiecznej inwestycji, która zarabia od pierwszego dnia? Poznaj mieszkanie które łączy lokalizację, funkcjonalność i rozsądną cenę w jednym.

Posiadamy w tej kamienicy jeszcze inne lokale mieszkalne - możliwość zakupu w pakiecie
Jesteś zainteresowany - złóż ofertę!!!

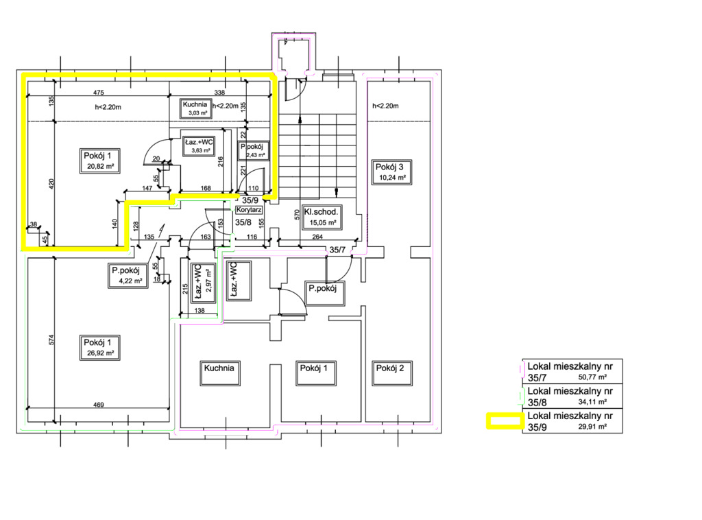
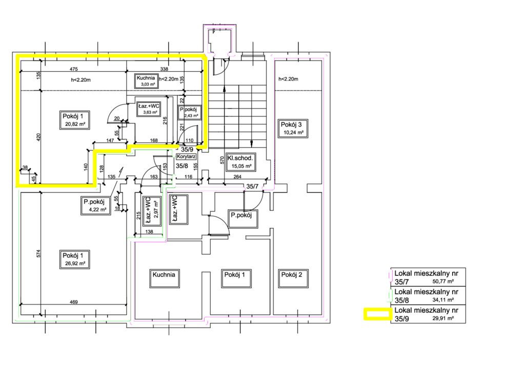
Na sprzedaż kawalerka o powierzchni 29,91 m2 usytuowane na trzecim pietrze w trzypiętrowej kamienicy. Mieszkanie składa się z sypialni, kuchni z jadalnią, łazienki z WC oraz przedpokoju.
Dodatkowo komórka lokatorska w cenie!!!

Dla kogo jest to mieszkanie?
- dla singla, który chce wyfrunąć z rodzinnego gniazda
- dla pary, która woli ratę kredytu, niż czynsz najmu
- dla inwestora - gotowiec pod wynajem

Lokalizacja - serce Bytomia, tutaj naprawdę masz wszystko pod ręką:
2 min. - Śląski Uniwersytet Medyczny
5 min. - Galeria Agora
Kawiarnie, restauracje, sklepy, apteki - na wyciągniecie ręki

Opłaty eksploatacyjne to ok. 280 zł, a w tym - czynsz, fundusz remontowy + media i ogrzewanie według zużycia.

Dedykowane miejsce postojowe w atrakcyjnej cenie.


Komunikacja - autobusy, tramwaje a nawet dworzec kolejowy - szybki dojazd do miast ościennych.

Media:
CO -  gazowe centralne z własnej kotłowni
Ciepła woda - gazowe centralne z własnej kotłowni

Kupujesz na kredyt?
Sprawdzeni doradcy kredytowi, z którymi współpracujemy zupełnie za darmo zbadają Twoją zdolność kredytową.
Przeprowadzą Cię przez cały proces kredytowy i pomogą w uzyskaniu finansowania.

Zainteresowała Cię ta oferta - Zadzwoń i umów się na spotkanie
Czekam na Twój telefon 7 dni w tygodniu.
Jak nie odbiorę - na pewno oddzwonię.

Robert Dejnek
Dyrektor oddziału
792 023 324
rdejnek@polnoc.pl
PÓŁNOC Nieruchomości o. Radzionków
534 648 560
Męczenników Oświęcimia 34/1
41-922 Radzionków

Niniejsze ogłoszenie nie stanowi oferty w rozumieniu Kodeksu Cywilnego, lecz ma charakter informacyjny.

Przedstawione wizualizacje i grafiki mają charakter wyłącznie poglądowy i stanowią wyłącznie materiał pomocniczy, ułatwiający zorientowanie się w ogólnym wyglądzie oferowanej nieruchomości.

Niniejsze ogłoszenie wraz z jego elementami jest własnością Północ Nieruchomości Sp z o.o. lub podmiotu współpracującego. Wszelkie prawa zastrzeżone. Kopiowanie, rozpowszechnianie oraz korzystanie z niniejszych materiałów w jakikolwiek inny sposób wykraczający poza dozwolony użytek określony przepisami ustawy z 4 lutego 1994 r. o prawie autorskim i prawach pokrewnych (Dz. U. 1994, nr 24 poz. 83 z późn. zm.) bez pisemnej zgody Północ Nieruchomości Sp z o.o. lub podmiotów współpracujących jest zabronione i może stanowić podstawę odpowiedzialności cywilnej oraz karnej.

Niniejsze materiały stanowią tajemnicę przedsiębiorstwa PÓŁNOC NIERUCHOMOŚCI Sp. z o.o. w rozumieniu ustawy z dnia 16 kwietnia 1993 r. o zwalczaniu nieuczciwej konkurencji (Dz. U. z 2003 r., Nr 153, poz. 1503 z późn. zm.).

Mapa

Zapytaj o tę ofertę

Lub zadzwoń