Kontakt
Nr oferty: 123370/3877/OMS

CENTRUM Ełku, Kościuszki 8, III piętro, 3 pokoje

Ełk, Kościuszki 8 zobacz na mapie

299 000 PLN

Szczegóły oferty

Cena:
299 000,00 zł
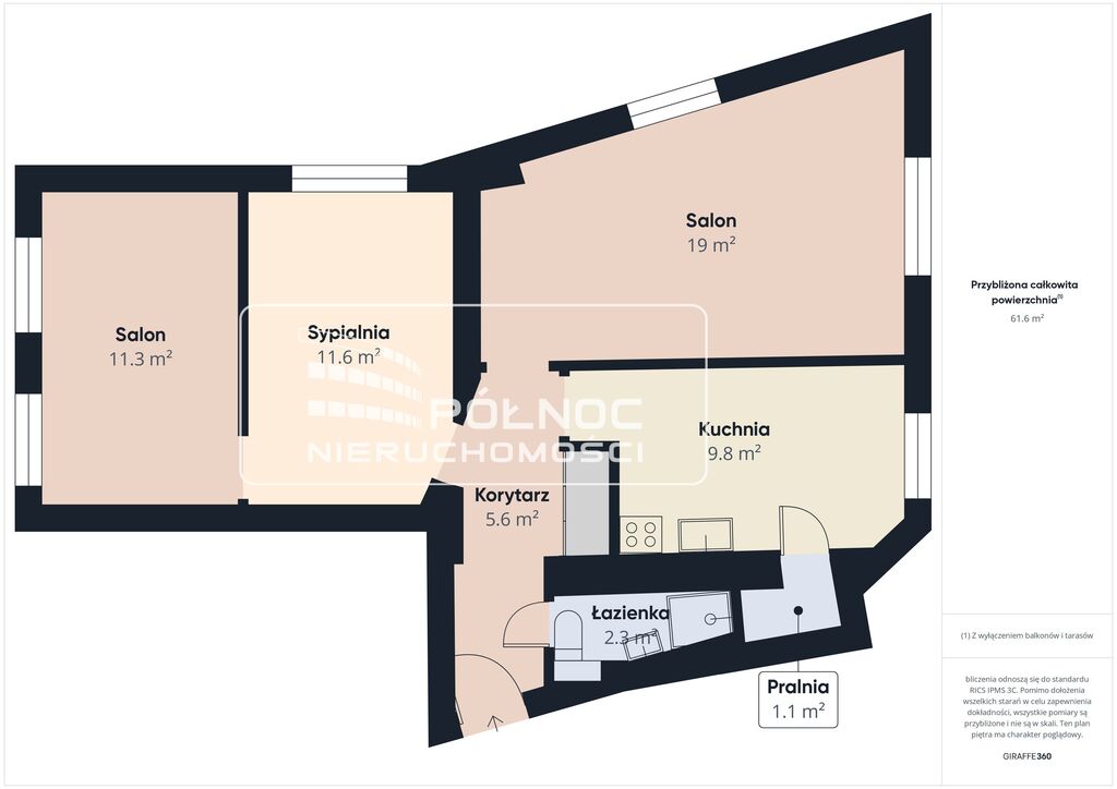
Powierzchnia:
61,95 m2
Cena za m2:
4 826,47 zł
Rok budowy:
1970
Liczba pięter:
3
Piętro:
3
Rynek:
Wtórny
Rodzaj budynku:
Niski blok
Liczba pokoi:
3
Typ kuchni:
Oddzielna
Id oferty:
123370/3877/OMS

Opis

PÓŁNOC Nieruchomości Ełk prezentuje na sprzedaż mieszkanie o powierzchni 61,95 m2, zlokalizowane na III piętrze przy ul. Kościuszki 8 w Ełku.

CENA lokalu mieszkalnego wynosi 299.000 zł.

zapraszam na wirtualny spacer:
https://tour.giraffe360.com/728b7646c851405e8199c5e86440e0c8/

MIESZKANIE składa się z:
- 3 pokoje;
- kuchnia;
- łazienka z WC;
- niewielka składówka;
- przedpokój.
Do mieszkania przynależy również PIWNICA.
Nad mieszkaniem jest jeszcze jedna kondygnacja, gdzie znajduje się ogólnodostępny strych.

STAN nieruchomości - do drobnego remontu.
W mieszkaniu wymieniona instalacja elektryczna w przedpokoju, łazience i doprowadzona do kuchenki w kuchni oraz do puszek w pokojach.
Budynek jest ocieplony i posiada nowy dach.

CZYNSZ administracyjny lokalu mieszkalnego Wspólnoty Mieszkaniowej wynosi około 750 zł.

Ogrzewanie mieszkania - miejskie,  podgrzanie wody - bojler elektryczny.

W OKOLICY znajdują się wszelkie udogodnienia infrastruktury miejskiej, liczne sklepy, urzędy, szkoły, przedszkola, apteki, przychodnia, place zabaw, tereny zielone itp. 
Lokalizacja budynku umożliwia załatwienie większości spraw bez konieczności przemieszczania się komunikacją miejską czy autem.

Mieszkanie dostępne od zaraz.

Przy zakupie nieruchomości należy uwzględnić koszty notarialne, podatek PCC oraz wynagrodzenie biura.

Zainteresowała Cię ta oferta?
Zadzwoń i umów się na spotkanie!

Kupujesz na kredyt?
Sprawdzeni doradcy kredytowi, z którymi współpracujemy zupełnie za darmo przeprowadzą Cię przez cały proces kredytowy i pomogą w uzyskaniu finansowania.

A może zakup tego mieszkania wiążę się ze sprzedażą innej nieruchomości? Z ogromną przyjemnością przeprowadzę Cię przez ten proces.
Zadzwoń i porozmawiajmy :)

Aneta Mulewska
PÓŁNOC Nieruchomości Ełk
+48 513 899 633 
amulewska@polnoc.pl 

Jesteśmy z Państwem na każdym etapie procesu zakupu nieruchomości począwszy od wyboru oferty i jej prezentacji po finalizację transakcji i przekazanie nieruchomości nowym właścicielom. Pomagamy we wszelkich formalnościach.

Niniejsze ogłoszenie nie stanowi oferty w rozumieniu Kodeksu Cywilnego, lecz ma charakter informacyjny.

Przedstawione wizualizacje i grafiki mają charakter wyłącznie poglądowy i stanowią wyłącznie materiał pomocniczy, ułatwiający zorientowanie się w ogólnym wyglądzie oferowanej nieruchomości.

Niniejsze ogłoszenie wraz z jego elementami jest własnością Północ Nieruchomości Sp z o.o. lub podmiotu współpracującego. Wszelkie prawa zastrzeżone. Kopiowanie, rozpowszechnianie oraz korzystanie z niniejszych materiałów w jakikolwiek inny sposób wykraczający poza dozwolony użytek określony przepisami ustawy z 4 lutego 1994 r. o prawie autorskim i prawach pokrewnych (Dz. U. 1994, nr 24 poz. 83 z późn. zm.) bez pisemnej zgody Północ Nieruchomości Sp z o.o. lub podmiotów współpracujących jest zabronione i może stanowić podstawę odpowiedzialności cywilnej oraz karnej.

Niniejsze materiały stanowią tajemnicę przedsiębiorstwa PÓŁNOC NIERUCHOMOŚCI Sp. z o.o. w rozumieniu ustawy z dnia 16 kwietnia 1993 r. o zwalczaniu nieuczciwej konkurencji (Dz. U. z 2003 r., Nr 153, poz. 1503 z późn. zm.).

Mapa

Zapytaj o tę ofertę

Lub zadzwoń