Kontakt
Nr oferty: 115601/3877/OMS

Do 31.12.2024 - 6900 m/kw, Mieszkania - Piastów

Głogów, Małgorzaty Cylejskiej zobacz na mapie

267 306 PLN

Szczegóły oferty

Cena:
267 306,00 zł
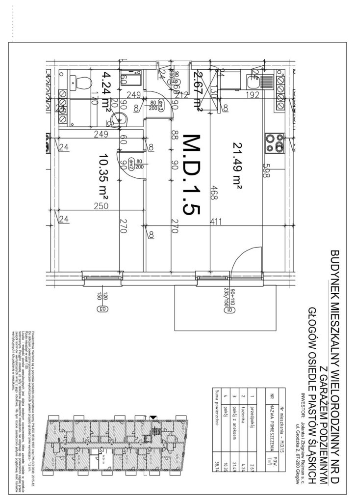
Powierzchnia:
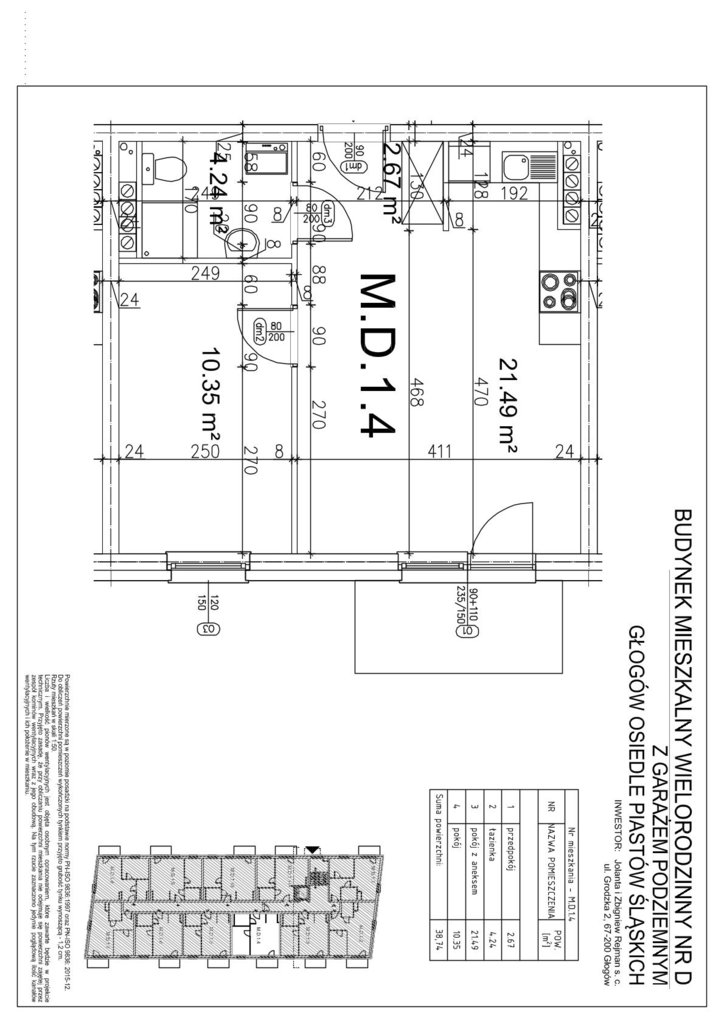
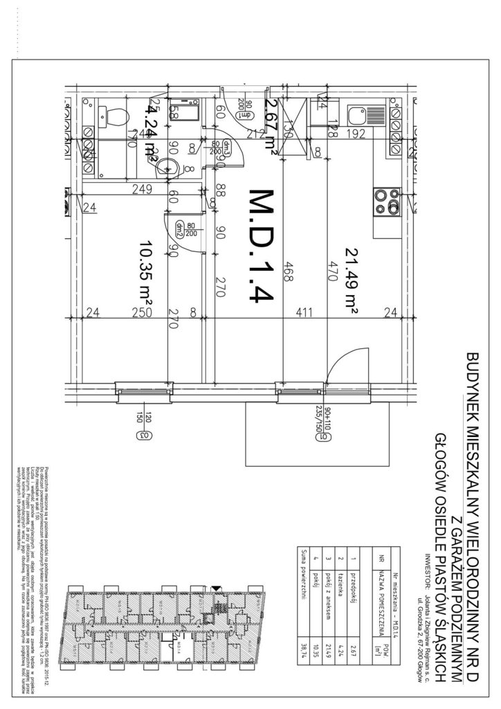
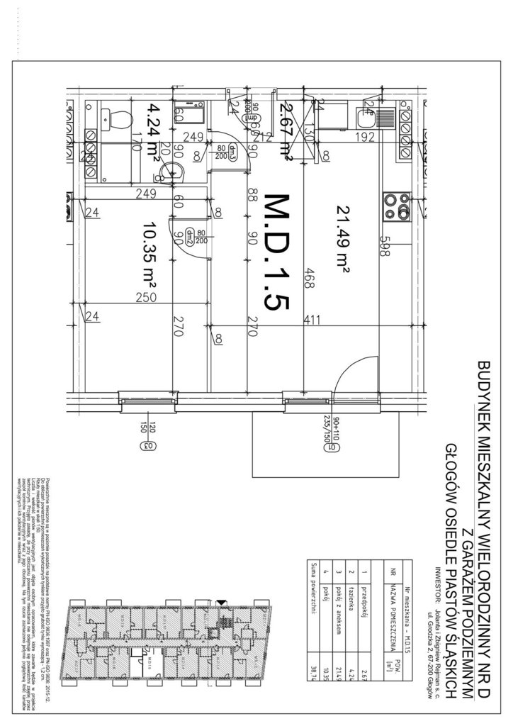
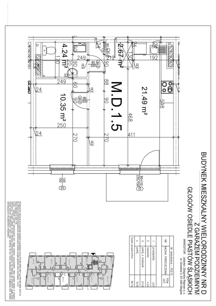
38,74 m2
Cena za m2:
6 900,00 zł
Rok budowy:
2023
Liczba pięter:
3
Piętro:
1
Garaż/Miejsca parkingowe:
tak
Rynek:
Pierwotny
Rodzaj budynku:
Niski blok
Liczba pokoi:
2
Typ kuchni:
Aneks
Winda:
tak
Id oferty:
115601/3877/OMS

Opis

Zapraszamy do zakupu mieszkań deweloperskich w inwestycji  na osiedlu Piastów:
 
Inwestycja składać się będzie docelowo z 4 budynków z 200 podziemnymi miejscami postojowymi.
 
Każde mieszkanie zostanie wyposażone w instalację fotowoltaiczną o mocy 1,5 kW. To oznacza, że każdy mieszkaniec będzie mógł korzystać z własnego, niezależnego źródła energii elektrycznej
 
Dodatkowo, część wspólna budynków zostanie zasilona instalacją o mocy 5 kW, co zapewni niezawodne zasilanie dla wszystkich mieszkańców. Dzięki temu, wspólna przestrzeń w budynkach, takie jak oświetlenie korytarzy czy windy, również będą zasilane z ekologicznego źródła.

Panele zostaną zamontowane na dachu oraz elewacji bocznej.

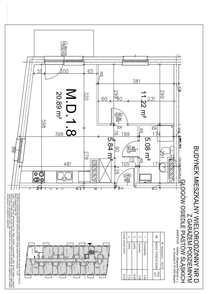
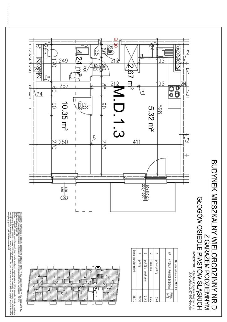
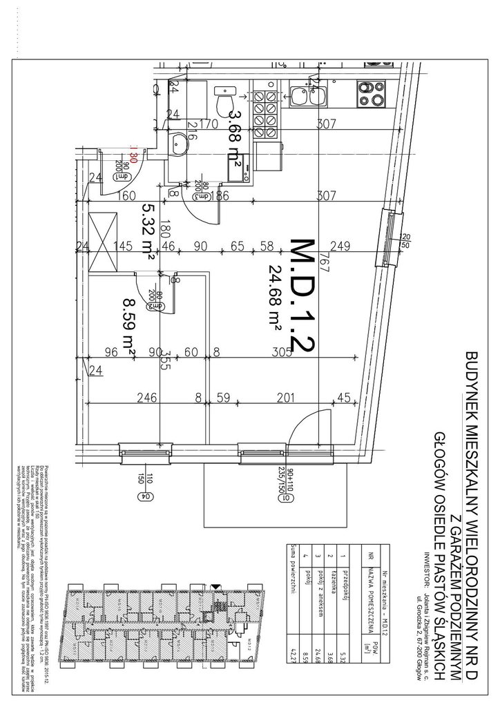
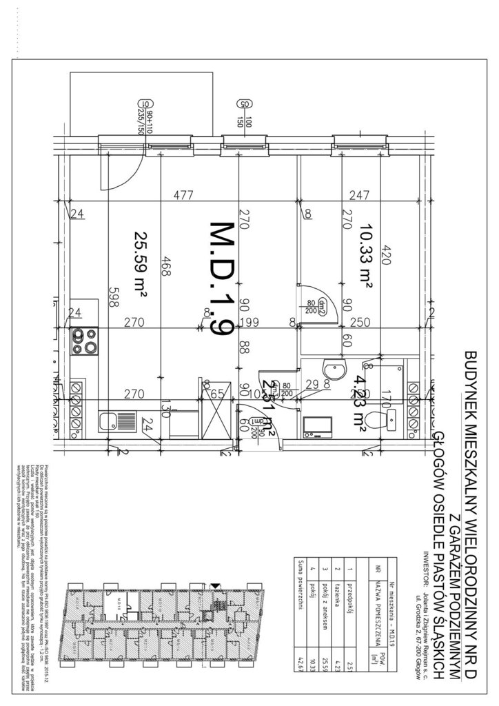
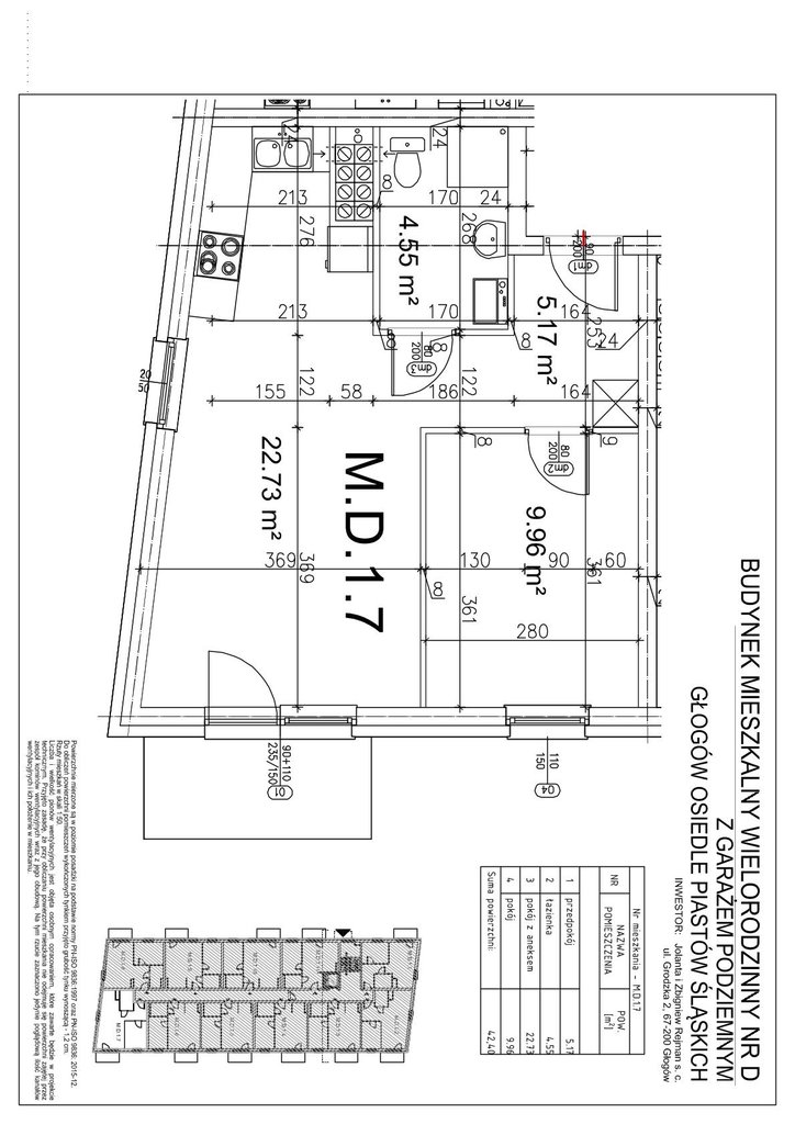
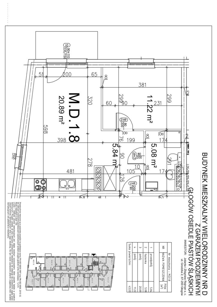
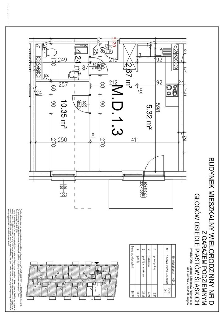
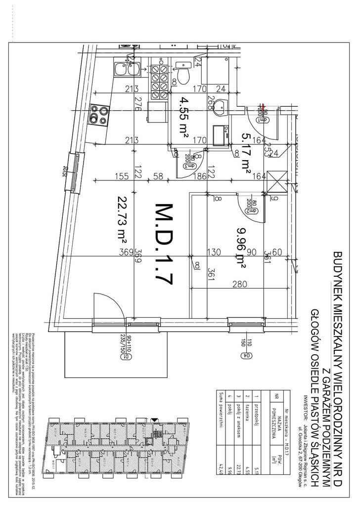
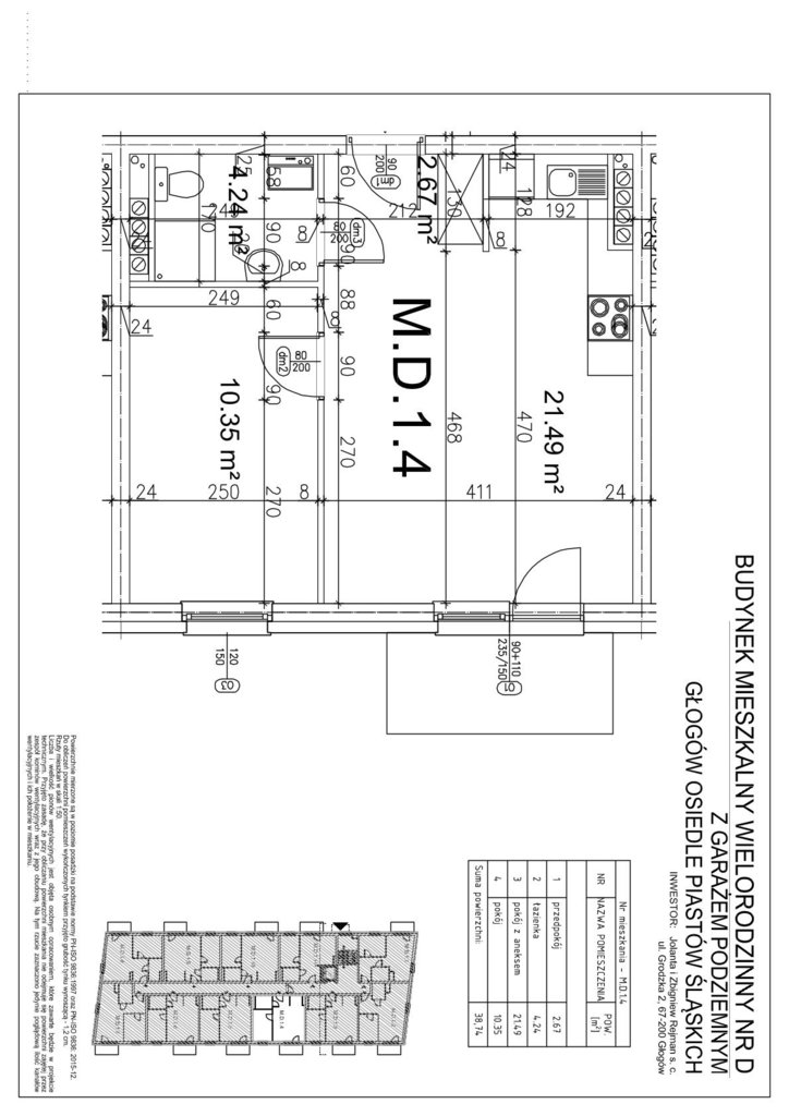
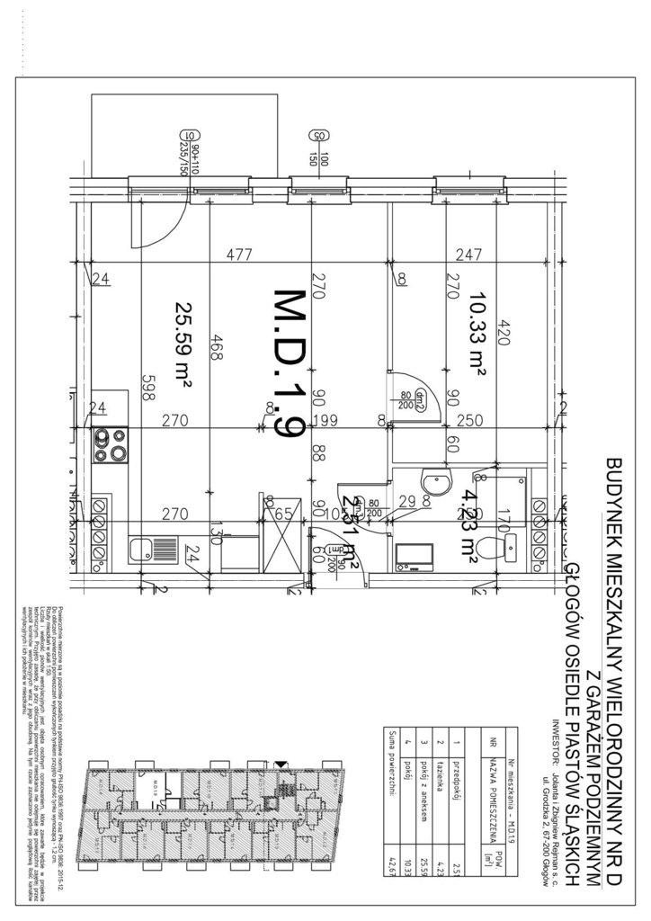
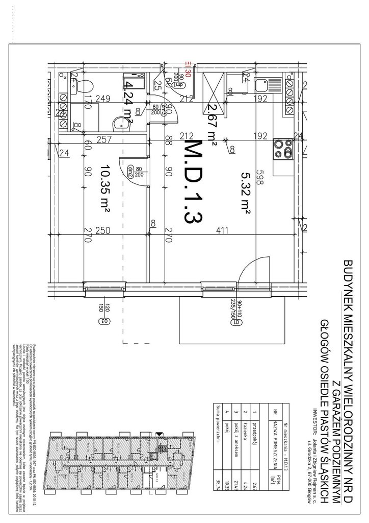
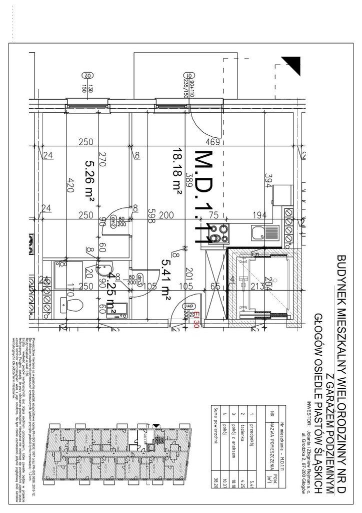
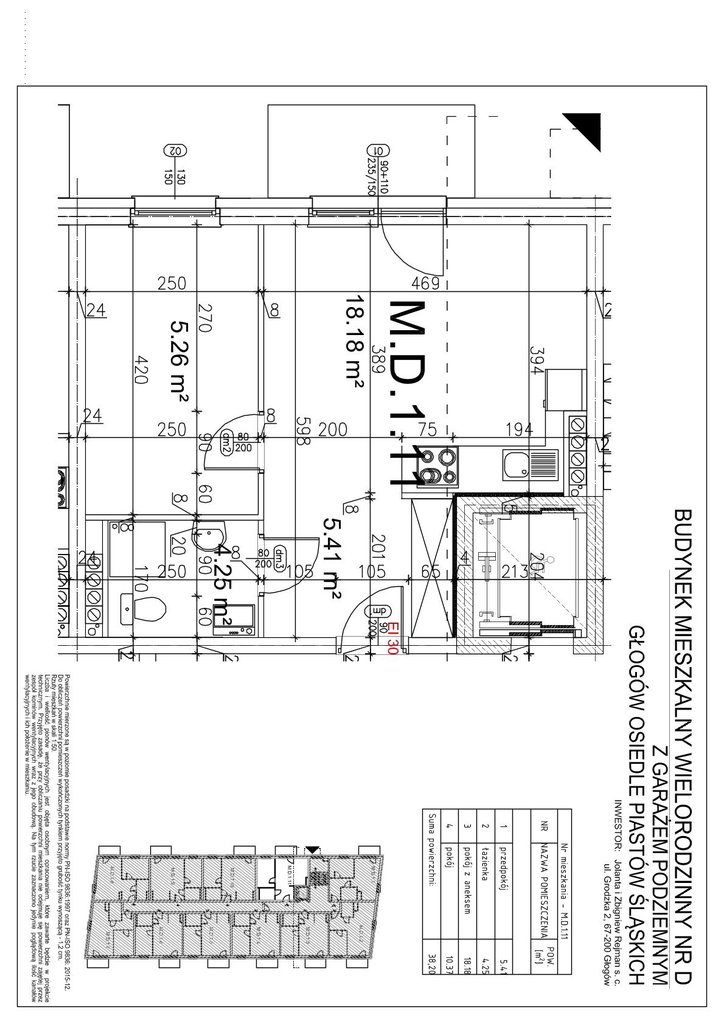
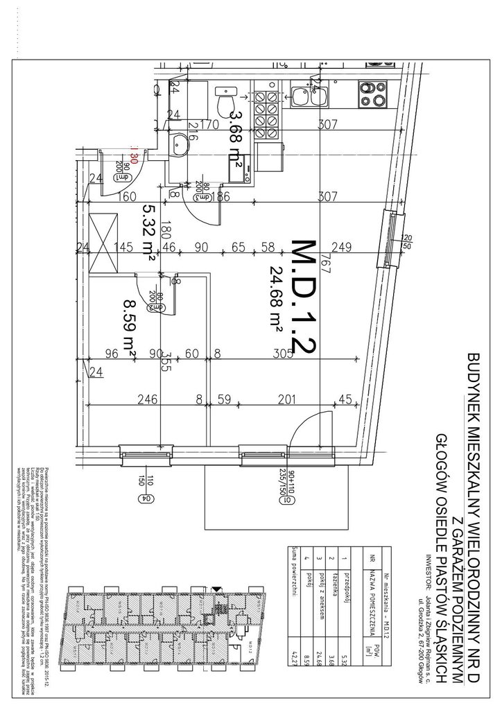
Mieszkania 2 pokojowe o powierzchni od: 38,20 m kw. do 43,03 m kw., taki metraż i układ mieszkań będzie na wszystkich 3 piętrach w budynku, który jest obecnie budowany. Na każdym piętrze 11 lokali
 
Rzuty mieszkań, ich powierzchnie zostały załączone na zdjęciach.
 
Informacje dotyczące zakupu:

- Zakończenie budowy pierwszego budynku – koniec 2024 r.
- Przewidywany początek przekazywania kluczy – 01.2025 r.
- Przeniesie własności aktem notarialnym – ok. 02.2025r.

Koszty:

Cena mieszkania - 6.900 / m2. - promocja do 31.12.2024
Miejsca postojowe – 35.000 za 1 MP
Komórki lokatorskie - 3.000 / m2

Kupujący nie płaci prowizji do biura oraz nie ponosi kosztów podatku PCC - 2%.

Oferujemy współpracę z ekspertem kredytowym oraz obsługę w zakresie doboru optymalnej oferty kredytowej.

Nie przegap tej okazji! Skontaktuj się z nami już dziś i spraw, aby jedno z mieszkań stało się Twoim wymarzonym miejscem.

Jeśli zainteresowała Państwa oferta zapraszam do kontaktu, udzielę wszystkich informacji.

Kontakt:
Rafał Horoszko
Dyrektor Oddziału PÓŁNOC Nieruchomości Głogów
ul. Grodzka 7
67-200 Głogów
tel komórkowy: 797 333 595
e-mail: rhoroszko@polnoc.pl
Więcej ofert na www.polnoc.pl

Niniejsze ogłoszenie wraz z jego elementami jest własnością Północ Nieruchomości Sp z o.o. lub podmiotu współpracującego. Wszelkie prawa zastrzeżone. Kopiowanie, rozpowszechnianie oraz korzystanie z niniejszych materiałów w jakikolwiek inny sposób wykraczający poza dozwolony użytek określony przepisami ustawy z 4 lutego 1994 r. o prawie autorskim i prawach pokrewnych (Dz. U. 1994, nr 24 poz. 83 z późn. zm.) bez pisemnej zgody Północ Nieruchomości Sp z o.o. lub podmiotów współpracujących jest zabronione i może stanowić podstawę odpowiedzialności cywilnej oraz karnej.

Niniejsze ogłoszenie nie stanowi oferty w rozumieniu Kodeksu Cywilnego, lecz ma charakter informacyjny.

Przedstawione wizualizacje i grafiki mają charakter wyłącznie poglądowy i stanowią wyłącznie materiał pomocniczy, ułatwiający zorientowanie się w ogólnym wyglądzie oferowanej nieruchomości.

Niniejsze ogłoszenie wraz z jego elementami jest własnością Północ Nieruchomości Sp z o.o. lub podmiotu współpracującego. Wszelkie prawa zastrzeżone. Kopiowanie, rozpowszechnianie oraz korzystanie z niniejszych materiałów w jakikolwiek inny sposób wykraczający poza dozwolony użytek określony przepisami ustawy z 4 lutego 1994 r. o prawie autorskim i prawach pokrewnych (Dz. U. 1994, nr 24 poz. 83 z późn. zm.) bez pisemnej zgody Północ Nieruchomości Sp z o.o. lub podmiotów współpracujących jest zabronione i może stanowić podstawę odpowiedzialności cywilnej oraz karnej.

Niniejsze materiały stanowią tajemnicę przedsiębiorstwa PÓŁNOC NIERUCHOMOŚCI Sp. z o.o. w rozumieniu ustawy z dnia 16 kwietnia 1993 r. o zwalczaniu nieuczciwej konkurencji (Dz. U. z 2003 r., Nr 153, poz. 1503 z późn. zm.).

Mapa

Zapytaj o tę ofertę

Lub zadzwoń