Kontakt
Nr oferty: 125156/3877/OMS

Mieszkanie z antresolą i tarasem Łabiszyn

Łabiszyn, ul. Lawendowa zobacz na mapie

650 000 PLN

Szczegóły oferty

Cena:
650 000,00 zł
Powierzchnia:
92,00 m2
Rok budowy:
2023
Garaż/Miejsca parkingowe:
tak
Rynek:
Pierwotny
Rodzaj budynku:
Dom wielolokalowy
Liczba pokoi:
4
Id oferty:
125156/3877/OMS

Opis

Dwupoziomowe mieszkanie 92 m² z antresolą i dużym tarasem – Łabiszyn

Na sprzedaż wyjątkowe, dwupoziomowe mieszkanie o powierzchni 92 m², z przestronną antresolą (22 m² powierzchni użytkowej / aż 39 m² po podłodze), położone w kameralnym budynku czterolokalowym w Łabiszynie.

To idealna propozycja dla osób, które szukają przestrzeni, funkcjonalności i prywatności – w spokojnej lokalizacji, a jednocześnie z wygodnym dostępem do infrastruktury.
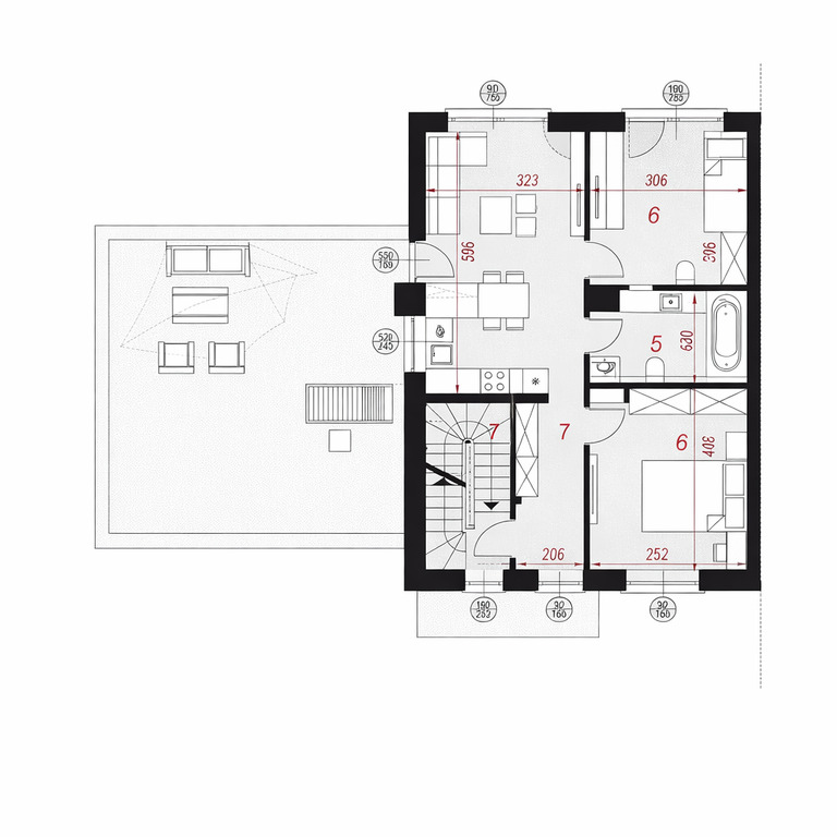
Układ mieszkania:
- przestronny salon z aneksem kuchennym – jasna, otwarta strefa dzienna z dużym potencjałem aranżacyjnym o pow. 24,87 m2
- dwie ustawne sypialnie o pow. 12,87 m2 i 7,93 m2
- łazienka o pow. 4,46 m2
- funkcjonalna komunikacja o pow. 9,29 m2
- antresola o powierzchni 22 m² (39 m² po podłodze) – idealna na sypialnię master, gabinet, strefę relaksu lub pokój hobby

Dodatkowym atutem nieruchomości jest:
- duży taras usytuowany na dachu garażu – doskonałe miejsce do wypoczynku, grillowania czy stworzenia prywatnej strefy zieleni
- kameralny budynek – tylko 4 lokale
- dwupoziomowy układ zapewniający komfort i wyraźny podział na strefę dzienną i prywatną
- jednostanowiskowy garaż w cenie mieszkania

Mieszkanie daje duże możliwości aranżacyjne – zarówno dla rodziny, jak i dla osób pracujących zdalnie, które potrzebują dodatkowej przestrzeni.
Spokojna lokalizacja w Łabiszynie zapewnia komfort życia z dala od miejskiego zgiełku, przy jednoczesnym dostępie do najważniejszych punktów usługowych i komunikacyjnych.

Zachęcam do obejrzenia
Anna Kosobudzka I 780 600 611
Północ Bydgoszcz

Niniejsze ogłoszenie nie stanowi oferty w rozumieniu Kodeksu Cywilnego, lecz ma charakter informacyjny.

Przedstawione wizualizacje i grafiki mają charakter wyłącznie poglądowy i stanowią wyłącznie materiał pomocniczy, ułatwiający zorientowanie się w ogólnym wyglądzie oferowanej nieruchomości.

Niniejsze ogłoszenie wraz z jego elementami jest własnością Północ Nieruchomości Sp z o.o. lub podmiotu współpracującego. Wszelkie prawa zastrzeżone. Kopiowanie, rozpowszechnianie oraz korzystanie z niniejszych materiałów w jakikolwiek inny sposób wykraczający poza dozwolony użytek określony przepisami ustawy z 4 lutego 1994 r. o prawie autorskim i prawach pokrewnych (Dz. U. 1994, nr 24 poz. 83 z późn. zm.) bez pisemnej zgody Północ Nieruchomości Sp z o.o. lub podmiotów współpracujących jest zabronione i może stanowić podstawę odpowiedzialności cywilnej oraz karnej.

Niniejsze materiały stanowią tajemnicę przedsiębiorstwa PÓŁNOC NIERUCHOMOŚCI Sp. z o.o. w rozumieniu ustawy z dnia 16 kwietnia 1993 r. o zwalczaniu nieuczciwej konkurencji (Dz. U. z 2003 r., Nr 153, poz. 1503 z późn. zm.).

Mapa

Zapytaj o tę ofertę

Lub zadzwoń