Kontakt

Nowoczesne mieszkanie przy ul. Krętej w Lublinie

580 000 PLN

Cena:
580 000,00 zł
Powierzchnia:
64,55 m2
Cena za m2:
8 985,28 zł
Rok budowy:
2019
Liczba pięter:
3
Piętro:
1
Garaż/Miejsca parkingowe:
tak
Rynek:
Wtórny
Rodzaj budynku:
Budynek apartamentowy
Liczba pokoi:
3
Typ kuchni:
Widna
Winda:
tak
Id oferty:
122069/3877/OMS
Opis
Na sprzedaż piękny, nowoczesny apartament o powierzchni łącznej 64,55 m2 przy
 ul. Krętej w Lublinie.


Apartament zlokalizowany jest na 1 piętrze w bloku z windą.


Mieszkanie gotowe do wprowadzenia! 

Nowe osiedle - dużo udogodnień - plac zabaw, rowerownia, okamerowanie , miejsce parkingowe w garażu podziemnym - co zapewnia wygodę i bezpieczeństwo na co dzień.

Mieszkanie składa się z:
- aneksu kuchennego z jadalnią i salonem
- 2 sypialni 
- przedpokoju z pojemną szafą
- garderoby
- 2 komfortowych łazienek z pryszniem
- dużego balkonu,
- komórki lokatorskiej ( o pow. 2,42 m2)

Cena obejmuje:
- mieszkanie
- komórkę lokatorska 
- wyposażenie obecne w mieszkaniu.

Miejsce w garażu podziemnym dodatkowo płatne (30.000 zł). 

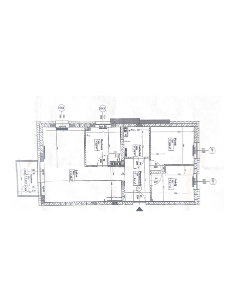
Mieszkanie może być zaadaptowane na dowolny układ np. 2 pokoje, salon, oddzielna kuchnia (patrz zdjęcie z rzutem mieszkania) lub np. 3 pokoje i salon z aneksem kuchennym.

To doskonały pomysł także pod wynajem!

To kameralne miejsce doskonałe dla wszystkich, którzy chcą zamieszkać blisko centrum oraz doskonale połączenia komunikacyjne z każdą częścią miasta.

Mieszkanie zlokalizowane jest w sąsiedztwie sklepów takich jak KAUFLAND i BIEDRONKA oraz centrów handlowych GALA, OBI, MAKRO.

W pobliżu znajdują się również np. aqua park, targ spożywczy, gabinety medyczne oraz wiele innych sklepów i usług niezbędnych do codziennego funkcjonowania.

 Osoby, które szukają sposobu na aktywny wypoczynek mogą korzystać ze ścieżki rowerowej biegnącej wzdłuż rzeki Bystrzyca!

Mieszkanie idealne dla pary jak i dla rodziny, wykonane z wysokiej jakości materiałów!




Bezpłatnie pomagamy w formalnościach związanych z uzyskaniem kredytu na zakup nieruchomości. Nasz doradca kredytowy bezpłatnie sprawdzi Twoją zdolność kredytową i przedstawi najlepsze oferty z ponad 10 banków.


Posiadasz podobną nieruchomość? Skorzystaj z bezpłatnej konsultacji – odpowiemy na pytania dotyczące ceny, procesu sprzedaży oraz możliwości poprawy atrakcyjności oferty.


Oferujemy również:
•⁠  ⁠Pośrednictwo w kupnie, sprzedaży oraz najmie nieruchomości. 
•⁠  ⁠Pomoc w sprzedaży nieruchomości o skomplikowanej sytuacji prawnej.
•⁠  ⁠Rzetelne oceny wartości nieruchomości.
 -Uzyskanie świadectwa energetycznego.
Nie zwlekaj, zadzwoń już teraz!



Nie zwlekaj, zadzwoń już teraz!

Patrycja Szmagalska
pszmagalska@polnoc.pl
518 524 828

Niniejsze ogłoszenie nie stanowi oferty w rozumieniu Kodeksu Cywilnego, lecz ma charakter informacyjny.

Przedstawione wizualizacje i grafiki mają charakter wyłącznie poglądowy i stanowią wyłącznie materiał pomocniczy, ułatwiający zorientowanie się w ogólnym wyglądzie oferowanej nieruchomości.

Niniejsze ogłoszenie wraz z jego elementami jest własnością Północ Nieruchomości Sp z o.o. lub podmiotu współpracującego. Wszelkie prawa zastrzeżone. Kopiowanie, rozpowszechnianie oraz korzystanie z niniejszych materiałów w jakikolwiek inny sposób wykraczający poza dozwolony użytek określony przepisami ustawy z 4 lutego 1994 r. o prawie autorskim i prawach pokrewnych (Dz. U. 1994, nr 24 poz. 83 z późn. zm.) bez pisemnej zgody Północ Nieruchomości Sp z o.o. lub podmiotów współpracujących jest zabronione i może stanowić podstawę odpowiedzialności cywilnej oraz karnej.

Niniejsze materiały stanowią tajemnicę przedsiębiorstwa PÓŁNOC NIERUCHOMOŚCI Sp. z o.o. w rozumieniu ustawy z dnia 16 kwietnia 1993 r. o zwalczaniu nieuczciwej konkurencji (Dz. U. z 2003 r., Nr 153, poz. 1503 z późn. zm.).

Zapytaj o tę ofertę