Kontakt

57,88m2, 3 pokoje, ogródek, bez prowizji, bez PCC!

Struga zobacz na mapie

700 000 PLN

Cena:
700 000,00 zł
Powierzchnia:
57,88 m2
Cena za m2:
12 093,99 zł
Rok budowy:
2025
Liczba pięter:
2
Piętro:
1
Garaż/Miejsca parkingowe:
tak
Rynek:
Pierwotny
Rodzaj budynku:
Dom wielolokalowy
Liczba pokoi:
3
Typ kuchni:
Otwarta
Id oferty:
124040/3877/OMS
Opis
BEZ PROWIZJI, BEZ PCC !!!

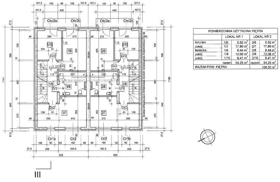
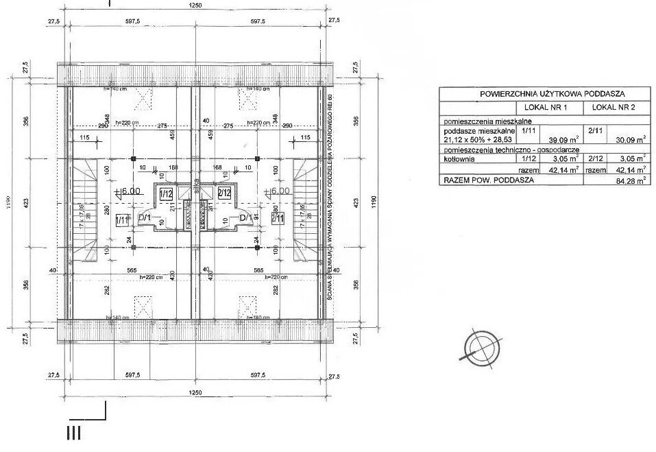
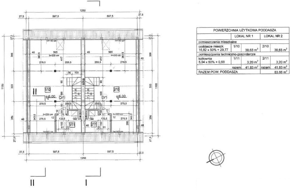
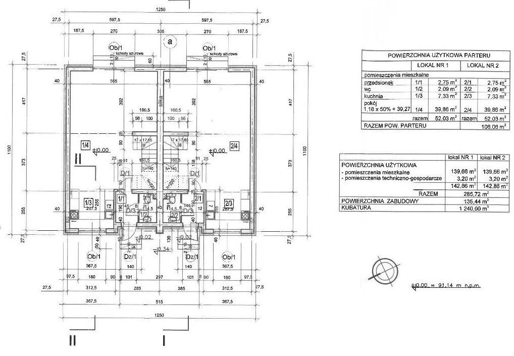
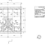
Na sprzedaż  bezczynszowe , narożne mieszkanie w Markach na Strudze, parter 57,88 m2, z ogródkiem ok 100m2 i dwoma miejscami postojowymi.  Odgrodzony od pozostałej części budynku teren do wyłącznego korzystania dla właścicieli dolnego i górnego mieszkania. Oddzielna brama wjazdowa i furtka. Teren ogrodzony z odrębnym wjazdem zaznaczony jest na planie zagospodarowania kolorem różowym.

Oddane do użytkowania.


- zabudowa szeregowa 
- mieszkanie na parterze
- 3 pokoje
- ogródek około 100m2
- ogrzewanie podłogowe w całym mieszkaniu
- 2 miejsca postojowe (w cenie mieszkania)
- zamknięte osiedle 
- światłowód 
- rozprowadzona instalacja alarmowa
- rozprowadzona instalacja do monitoringu
- mieszkanie przygotowane do montażu klimatyzacji

METRAŻ:

*Salon z aneksem– 24,57 m2
*Pokój -11,40 m2
*Pokój - 11,37 m2
*Łazienka – 5,27 m2
*Komunikacja – 5,27 m2


*spokojna okolica
*do przystanku autobusowego ok. 300m, stamtąd ok 25 minut do metra na Trockiej
*blisko las
*doskonały dostęp do trasy S8

*Dostępne jest w tej inwestycji  jedno mieszkanie dwupoziomowe, 6 pokojowe o powierzchni 118,59 m2 z dwoma miejscami postojowymi oraz ogródkiem w cenie 850 000zł.


* Oferuję również kompleksową i profesjonalną pomoc w pozyskaniu kredytu hipotecznego na zakup
* Rozmawiam po rosyjsku i po angielsku

Niniejsze ogłoszenie nie stanowi oferty w rozumieniu Kodeksu Cywilnego, lecz ma charakter informacyjny.

Przedstawione wizualizacje i grafiki mają charakter wyłącznie poglądowy i stanowią wyłącznie materiał pomocniczy, ułatwiający zorientowanie się w ogólnym wyglądzie oferowanej nieruchomości.

Niniejsze ogłoszenie wraz z jego elementami jest własnością Północ Nieruchomości Sp z o.o. lub podmiotu współpracującego. Wszelkie prawa zastrzeżone. Kopiowanie, rozpowszechnianie oraz korzystanie z niniejszych materiałów w jakikolwiek inny sposób wykraczający poza dozwolony użytek określony przepisami ustawy z 4 lutego 1994 r. o prawie autorskim i prawach pokrewnych (Dz. U. 1994, nr 24 poz. 83 z późn. zm.) bez pisemnej zgody Północ Nieruchomości Sp z o.o. lub podmiotów współpracujących jest zabronione i może stanowić podstawę odpowiedzialności cywilnej oraz karnej.

Niniejsze materiały stanowią tajemnicę przedsiębiorstwa PÓŁNOC NIERUCHOMOŚCI Sp. z o.o. w rozumieniu ustawy z dnia 16 kwietnia 1993 r. o zwalczaniu nieuczciwej konkurencji (Dz. U. z 2003 r., Nr 153, poz. 1503 z późn. zm.).

Mapa

Zapytaj o tę ofertę

Lub zadzwoń