Kontakt

Tylko u Nas - Przestronne mieszkanie trzypokojowe

Nowy Dwór Gdański, Plac Wolności zobacz na mapie

299 000 PLN

Cena:
299 000,00 zł
Powierzchnia:
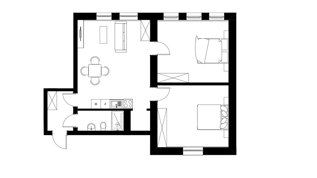
70,30 m2
Cena za m2:
4 253,20 zł
Rok budowy:
1970
Liczba pięter:
1
Piętro:
1
Garaż/Miejsca parkingowe:
tak
Rynek:
Wtórny
Rodzaj budynku:
Kamienica
Liczba pokoi:
3
Typ kuchni:
Aneks
Id oferty:
117239/3877/OMS
Opis
Oferta dostępna wyłącznie u nas w formule 0%- kupujący nie płaci prowizji.

 LOKALIZACJA

Lokal mieszkalny położony w centrum Nowego Dworu Gdańskiego. W bezpośrednim sąsiedztwie znajdują się: szkoły, przedszkola, sklepy, restauracje, kościół, apteka, bank, park, lokale gastronomiczne, punkty handlowo- usługowe, dyskonty, etc.
Atutem położenia nieruchomości jest łatwy i szybki dostęp do drogi ekspresowej S7 w kierunku Gdańska (ok. 40 km)jak i Elbląga (ok. 20 km).
Okolica spokojna i bezpieczna.

BUDYNEK

Przedmiotowy lokal znajduje się na pierwszym piętrze jednopiętrowej kamienicy z 1970 r., która została odnowiona i ocieplona. Przed budynkiem zlokalizowany jest parking z bramą przesuwną przeznaczony wyłącznie dla mieszkańców. W klatce znajdują się wyłącznie trzy lokale co zapewnia ciszę i spokój. Wejście do budynku zabezpieczone domofonem. Przed budynkiem zlokalizowany jest parking z bramą przesuwną przeznaczony wyłącznie dla mieszkańców. Dodatkowo przed budynkiem znajdują się ogólnodostępne miejsca parkingowe.

MIESZKANIE
9
Lokal mieszkalny o pow. 70,30 m2, położony przy Placu Wolności w Nowym Dworze Gdańskim. Mieszkanie składa się z pokoju dziennego z aneksem (pow. 27,00 m2), pokoju (pow. 17,38 m2), pokoju (pow. 18,23 m2) przedpokoju (pow. 3,83 m2) oraz łazienki (3,86 m2). Mieszkanie przeznaczone do gruntownego remontu oraz własnej aranżacji. Do mieszkania podciągnięta instalacja gazowa. W miejscu przewidzianym na aneks kuchenny zostały wyciągnięte złącza wodno- kanalizacyjne.  W pokojach na podłodze zostały położone deski drewniane (zachowane w dobrym stanie- wymagające jedynie wycyklinowania). Mieszkanie dwustronne, ekspozycja okien wschód- zachód.  Okna plastikowe. Niezaprzeczalną zaletą tego lokalu są niskie koszty utrzymania, tj. czynsz do wspólnoty wynoszący ok. 300 zł miesięcznie (wraz z funduszem remontowym). Wysokość pomieszczeń: 2,80 m, zaś w najwyższym punkcie ok. 3 m.

Forma własności: lokal stanowiący odrębną nieruchomość (księga wieczysta bez obciążeń).
Mieszkanie gotowe do natychmiastowego wydania.

Serdecznie polecam oraz zapraszam na prezentację.


Niniejsze ogłoszenie nie stanowi oferty w rozumieniu Kodeksu Cywilnego, lecz ma charakter informacyjny.

Przedstawione wizualizacje i grafiki mają charakter wyłącznie poglądowy i stanowią wyłącznie materiał pomocniczy, ułatwiający zorientowanie się w ogólnym wyglądzie oferowanej nieruchomości.

Niniejsze ogłoszenie wraz z jego elementami jest własnością Północ Nieruchomości Sp z o.o. lub podmiotu współpracującego. Wszelkie prawa zastrzeżone. Kopiowanie, rozpowszechnianie oraz korzystanie z niniejszych materiałów w jakikolwiek inny sposób wykraczający poza dozwolony użytek określony przepisami ustawy z 4 lutego 1994 r. o prawie autorskim i prawach pokrewnych (Dz. U. 1994, nr 24 poz. 83 z późn. zm.) bez pisemnej zgody Północ Nieruchomości Sp z o.o. lub podmiotów współpracujących jest zabronione i może stanowić podstawę odpowiedzialności cywilnej oraz karnej.

Niniejsze materiały stanowią tajemnicę przedsiębiorstwa PÓŁNOC NIERUCHOMOŚCI Sp. z o.o. w rozumieniu ustawy z dnia 16 kwietnia 1993 r. o zwalczaniu nieuczciwej konkurencji (Dz. U. z 2003 r., Nr 153, poz. 1503 z późn. zm.).

Mapa

Zapytaj o tę ofertę

Lub zadzwoń