Kontakt
Nr oferty: 12665/3877/OMW

3 pokojowe mieszkanie, Dworcowa

Olsztyn, Dworcowa zobacz na mapie

2 000 PLN

Szczegóły oferty

Cena:
2 000,00 zł
Powierzchnia:
48,20 m2
Cena za m2:
41,49 zł
Rok budowy:
1976
Liczba pięter:
11
Piętro:
2
Rynek:
Wtórny
Rodzaj budynku:
Wysoki blok
Liczba pokoi:
3
Typ kuchni:
Oddzielna
Winda:
tak
Id oferty:
12665/3877/OMW

Opis

3 pokojowe mieszkanie na wynajem na Osiedlu Kormoran. 

Zwierzęta akceptowane!

Znajduje się w budynku, przy ul. Dworcowej w centrum Olsztyna.
Idealne dla ceniących sobie wygodę. W każde miejsce miasta można stąd dojechać zarówno autobusem jak i własnym samochodem.
Bezpośrednio przy budynku znajduje się parking.
Osiedle otoczone jest zielenią, drzewami i krzewami, co sprzyja odpoczynkowi i spacerom.
W najbliższym sąsiedztwie mieści się pełna infrastruktura, m.in przedszkole, szpital, przychodnia, banki, basen, sklepy, czy szkoła.
Dotrzeć do nich można spacerem w ciągu ok. 5 min.

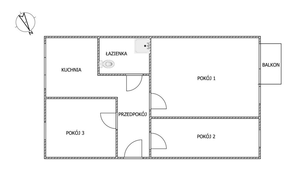
Mieszkanie położone jest na II p. w bloku z windą.
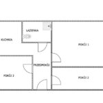
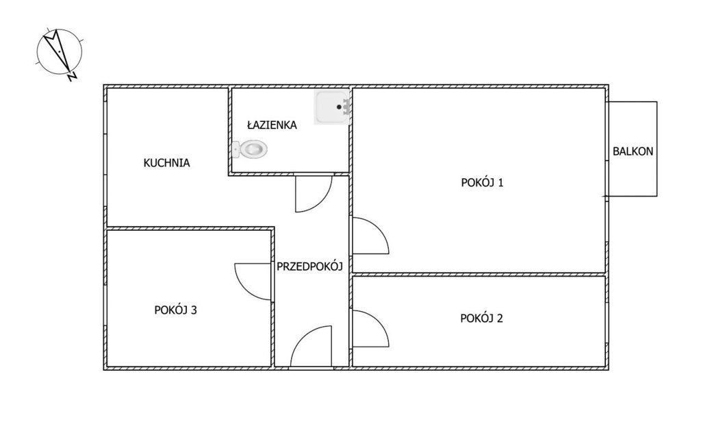
Na powierzchnię użytkową 48,2 m2, składają się :
- pokój z balkonem
- pokój 2
- pokój 3
- oddzielna kuchnia z dużym oknem
- łazienka z WC oraz kabiną prysznicową
- p.pokój
Do mieszkania przynależy piwnica.

Okna PCV z wystawą na północny wschód i południowy zachód, dzięki czemu mieszkanie jest jasne i słoneczne.
w pokojach na podłogach panele, w pozostałych pomieszczeniach terakota.

Mieszkanie jest umeblowane, w łazience pralka, w kuchni lodówka i kuchenka gazowa.
Ogrzewanie miejskie.
Opłaty administracyjne - ok. 760 zł. ( w tym media 1 osoba).
Do opłat należy doliczyć rachunki za prąd oraz internet i TV.
Kaucja: 2 700 zł. 

Możliwość wynajęcia studentom.
Uwaga! Tylko umowa najmu okazjonalnego.

Zainteresowanych zapraszamy do kontaktu, pokażemy mieszkanie, opowiemy o nim więcej.

Niniejsze ogłoszenie nie stanowi oferty w rozumieniu Kodeksu Cywilnego, lecz ma charakter informacyjny.

Przedstawione wizualizacje i grafiki mają charakter wyłącznie poglądowy i stanowią wyłącznie materiał pomocniczy, ułatwiający zorientowanie się w ogólnym wyglądzie oferowanej nieruchomości.

Niniejsze ogłoszenie wraz z jego elementami jest własnością Północ Nieruchomości Sp z o.o. lub podmiotu współpracującego. Wszelkie prawa zastrzeżone. Kopiowanie, rozpowszechnianie oraz korzystanie z niniejszych materiałów w jakikolwiek inny sposób wykraczający poza dozwolony użytek określony przepisami ustawy z 4 lutego 1994 r. o prawie autorskim i prawach pokrewnych (Dz. U. 1994, nr 24 poz. 83 z późn. zm.) bez pisemnej zgody Północ Nieruchomości Sp z o.o. lub podmiotów współpracujących jest zabronione i może stanowić podstawę odpowiedzialności cywilnej oraz karnej.

Niniejsze materiały stanowią tajemnicę przedsiębiorstwa PÓŁNOC NIERUCHOMOŚCI Sp. z o.o. w rozumieniu ustawy z dnia 16 kwietnia 1993 r. o zwalczaniu nieuczciwej konkurencji (Dz. U. z 2003 r., Nr 153, poz. 1503 z późn. zm.).

Mapa

Zapytaj o tę ofertę

Lub zadzwoń