Kontakt

Mieszk. 2 pok. Radzionków ul. Śródmiejska

Radzionków, Śródmiejska zobacz na mapie

220 000 PLN

Cena:
220 000,00 zł
Powierzchnia:
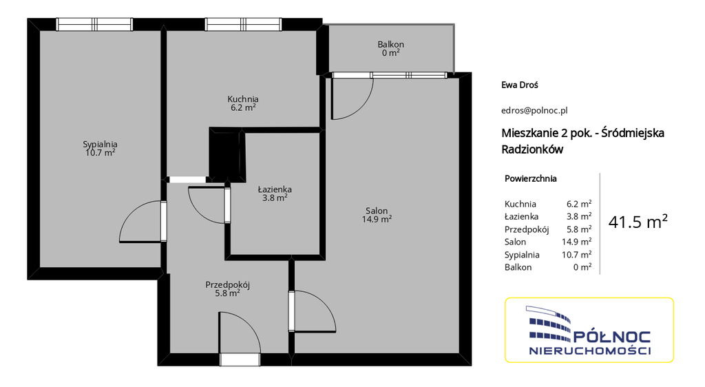
41,50 m2
Cena za m2:
5 301,20 zł
Rok budowy:
1974
Liczba pięter:
4
Piętro:
3
Rynek:
Wtórny
Rodzaj budynku:
Niski blok
Liczba pokoi:
2
Typ kuchni:
Oddzielna
Id oferty:
117972/3877/OMS
Opis
Posiadamy w ofercie na sprzedaż mieszkanie 2 pokojowe z balkonem o powierzchni 41,50m2. usytuowane na 3 piętrze w niskim bloku przy ul. Śródmiejskiej w  samym centrum Radzionkowa.

Nieruchomość składa się z :

- z dwóch  pokoi
- oddzielnej kuchni
- przestronnej łazienki z wc
- przedpokoju 
- balkonu
Do mieszkania przynależy piwnica o powierzchni 3,30m2.


JAKI JEST STANDARD ?
Mieszkanie nadaje się do odświeżenia bądź własnej aranżacji.
Okna plastikowe.
Podłogi panele, płytki.
Budynek po termomodernizacji, zadbana klatka zabezpieczona domofonem.
Przed budynkiem ogólnodostępne miejsca parkingowe.

ILE WYNOSI CZYNSZ?
Czynsz administracyjny wynosi 530zł a w nim eksploatacja wraz z funduszem remontowym oraz zaliczką na ogrzewanie.
Dodatkowo płatne media według zużycia oraz wywóz śmieci.

JAK WYGLĄDA KWESTIA MEDIÓW?
- ciepła woda - piec gazowy
- ogrzewanie - CO miejskie

CO ZNAJDUJE SIĘ W NAJBLIŻSZYM OTOCZENIU?
Atrakcyjna lokalizacja gwarantuje pełną infrastrukturę sklepy, targ, apteka, kościół, szkoła i przedszkole, przystanek autobusowy, basen.
 Na długie weekendowe spacery oraz rowerowe wycieczki idealnie sprawdzi się park Księża Góra usytuowany w niewielkiej odległości.

Oferta godna polecenia !!!!
Zainteresowała Cię ta oferta
Zadzwoń i umów się na spotkanie :)
Czekam na Twój telefon 7 dni w tygodniu.

Jak nie odbiorę - na pewno oddzwonię.

Jako biuro jesteśmy z Tobą na każdym etapie procesu zakupu nieruchomości począwszy od wyboru oferty i jej prezentacji po finalizację transakcji i przekazanie nieruchomości nowym właścicielom. Pomagamy we wszelkich formalnościach związanych z uzyskaniem kredytu na zakup nieruchomości. Nasz doradca kredytowy bezpłatnie pomoże sprawdzić zdolność kredytową, przedstawi najkorzystniejszą propozycję spośród oferty banków i sprawnie przeprowadzi Państwa przez proces realizacji kredytu.

Ewa Droś
Dyrektor oddziału
797 252 624
edros@polnoc.pl
PÓŁNOC Nieruchomości o. Radzionków
534 648 560
Męczenników Oświęcimia 34/1
41-922 Radzionków

Niniejsze ogłoszenie nie stanowi oferty w rozumieniu Kodeksu Cywilnego, lecz ma charakter informacyjny.

Przedstawione wizualizacje i grafiki mają charakter wyłącznie poglądowy i stanowią wyłącznie materiał pomocniczy, ułatwiający zorientowanie się w ogólnym wyglądzie oferowanej nieruchomości.

Niniejsze ogłoszenie wraz z jego elementami jest własnością Północ Nieruchomości Sp z o.o. lub podmiotu współpracującego. Wszelkie prawa zastrzeżone. Kopiowanie, rozpowszechnianie oraz korzystanie z niniejszych materiałów w jakikolwiek inny sposób wykraczający poza dozwolony użytek określony przepisami ustawy z 4 lutego 1994 r. o prawie autorskim i prawach pokrewnych (Dz. U. 1994, nr 24 poz. 83 z późn. zm.) bez pisemnej zgody Północ Nieruchomości Sp z o.o. lub podmiotów współpracujących jest zabronione i może stanowić podstawę odpowiedzialności cywilnej oraz karnej.

Niniejsze materiały stanowią tajemnicę przedsiębiorstwa PÓŁNOC NIERUCHOMOŚCI Sp. z o.o. w rozumieniu ustawy z dnia 16 kwietnia 1993 r. o zwalczaniu nieuczciwej konkurencji (Dz. U. z 2003 r., Nr 153, poz. 1503 z późn. zm.).

Mapa

Zapytaj o tę ofertę

Lub zadzwoń