Kontakt

Nowoczesne mieszkanie w Tomaszowie Lubelskim

Tomaszów Lubelski, ul. Kopernika zobacz na mapie

247 260 PLN

Cena:
247 260,00 zł
Powierzchnia:
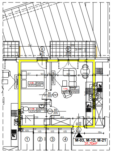
31,70 m2
Cena za m2:
7 800,00 zł
Rok budowy:
2026
Liczba pięter:
3
Rynek:
Pierwotny
Rodzaj budynku:
Niski blok
Liczba pokoi:
2
Typ kuchni:
Otwarta
Winda:
tak
Id oferty:
124380/3877/OMS
Opis
Nowy Wymiar Życia w Tomaszowie Lubelskim - Nowoczesne Mieszkania na ul. Kopernika!
Rynek Pierwotny, nowoczesny standard, idealna lokalizacja!
Masz wyjątkową okazję, aby zamieszkać lub zainwestować w prestiżowej, nowej inwestycji w samym centrum Tomaszowa Lubelskiego, przy ul. Kopernika!

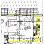
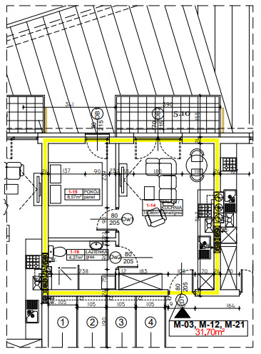
Kompaktowe Mieszkanie z Pełnym Komfortem
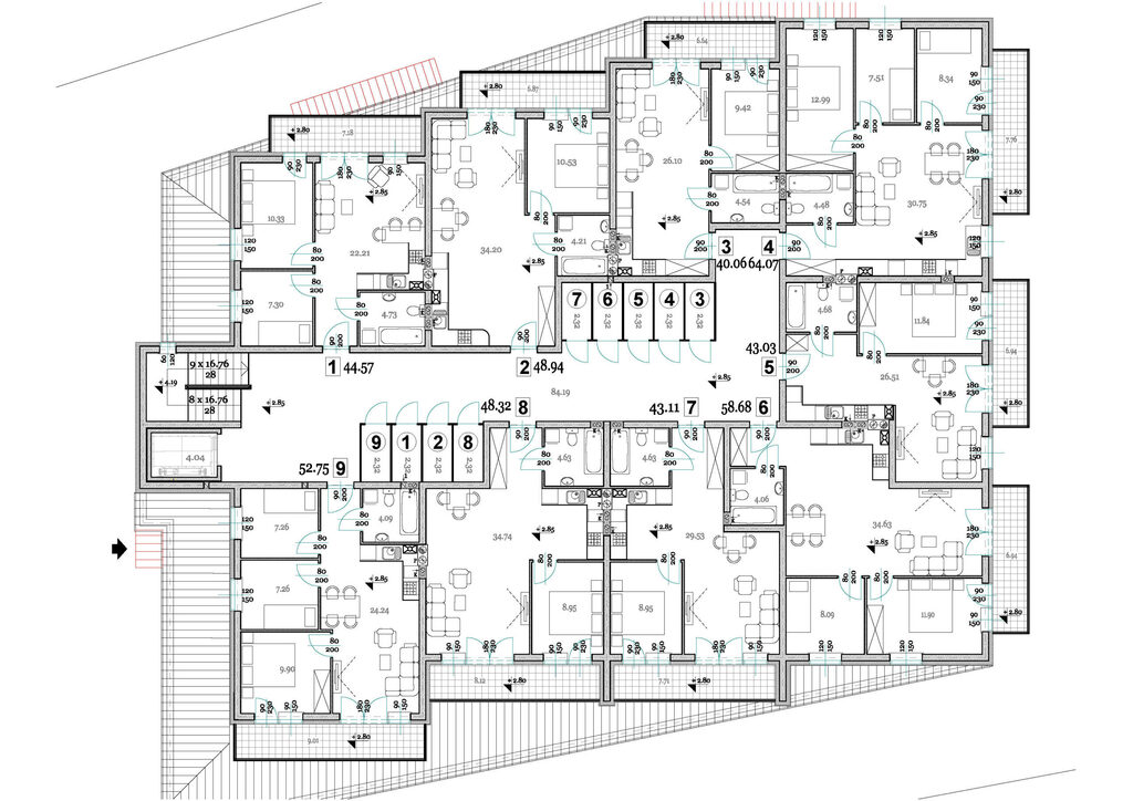
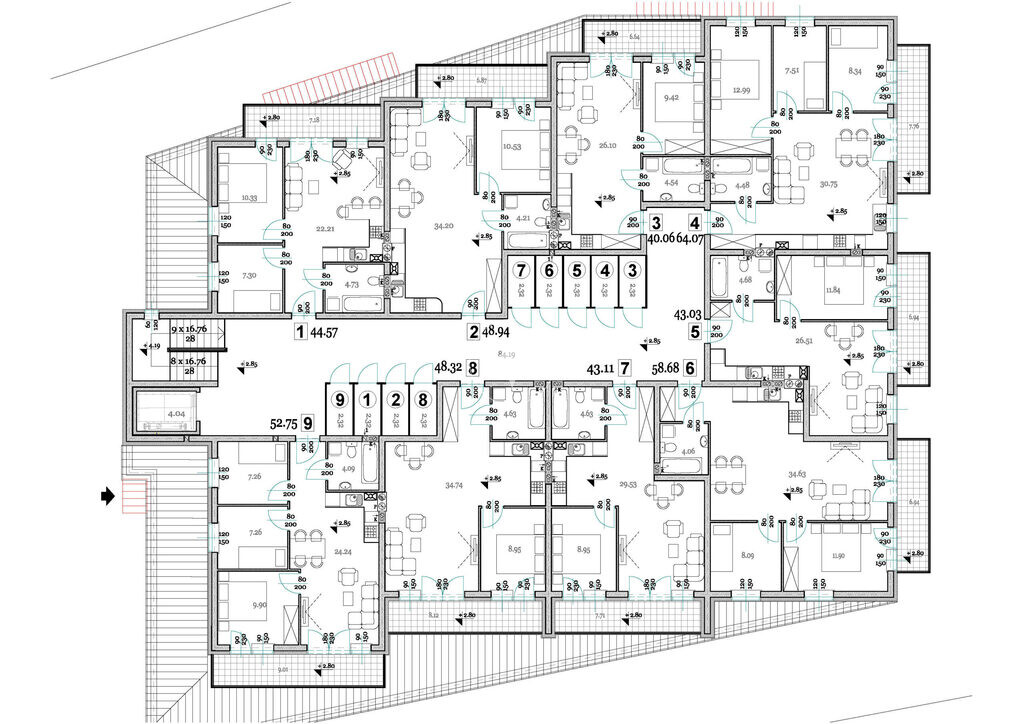
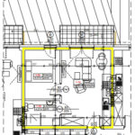
Prezentujemy funkcjonalne 2-pokojowe mieszkanie o powierzchni 31,70 m², idealne dla singla, pary lub jako pewna lokata kapitału pod wynajem.

Układ:
  • Jasny salon z aneksem kuchennym – idealna przestrzeń do gotowania i relaksu.
  • Ustawna sypialnia.
  • Przestronna łazienka.
  • Prywatny balkon – Twoje miejsce na poranną kawę.

Standard i Ogrzewanie:
  • Cały blok jest wykończony w nowoczesnym i wysokim standardzie, gwarantującym komfort i estetykę na lata.
  • W każdym mieszkaniu znajduje się indywidualny kocioł gazowy, zapewniający komfortowe i niezależne ogrzewanie.

Nowoczesny Budynek i Infrastruktura
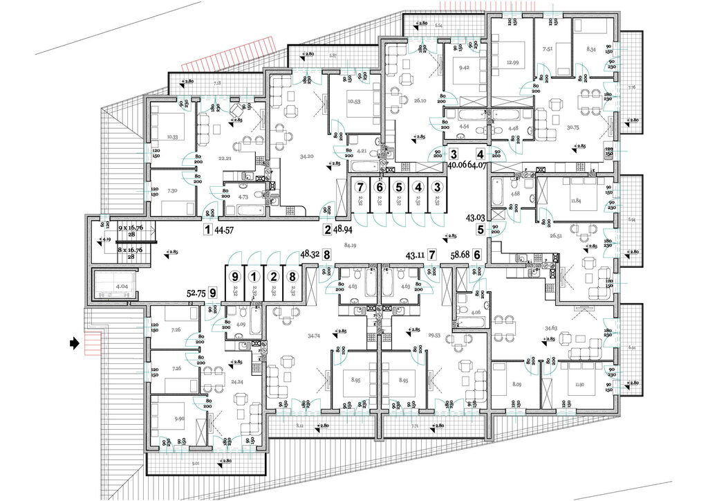
Kameralny budynek będzie składał się z zaledwie 27 mieszkań oraz funkcjonalnego garażu na poziomie 0.
  • Budynek wyposażony będzie również w windę.
  • Inwestycja została zaprojektowana z myślą o wygodzie i bezpieczeństwie mieszkańców.
  • Dostępne będą nieodpłatne miejsca postojowe na zewnątrz blisko bloku.

Opcje Dodatkowe – Dopasuj Przestrzeń do Siebie:
Możesz zwiększyć swój komfort, dokupując dodatkowe udogodnienia:
  • Miejsce postojowe w garażu naziemnym: 40 000 PLN
  • Miejsce postojowe + duża komórka lokatorska (ok. 5-6 m²): 55 000 PLN
  • Pomieszczenie techniczne (na klatce schodowej, na każdym piętrze): 10 000 PLN

Lokalizacja, Która Zmienia Życie
Blok położony jest w samym sercu miasta. Wszystko, czego potrzebujesz do wygodnego życia, znajduje się na wyciągnięcie ręki:
  • Handel: Otoczenie sklepów i punktów usługowych.
  • Urzędy: Bliskość kluczowych instytucji.
  • Edukacja: W pobliżu szkoły.
Nie szukaj dalej!
Oferujemy również inne mieszkania w tej inwestycji, o zróżnicowanych metrażach: od 30 m² do 60 m². Zadzwoń i zapytaj o dostępność!
Nie przegap tej szansy! Skontaktuj się z nami już dziś, aby poznać szczegóły i zarezerwować swoje nowe mieszkanie w centrum Tomaszowa Lubelskiego!

Bezpłatnie pomagamy w formalnościach związanych z uzyskaniem kredytu na zakup nieruchomości. Nasz doradca kredytowy bezpłatnie sprawdzi Twoją zdolność kredytową i przedstawi najlepsze oferty z ponad 10 banków.
Posiadasz podobną nieruchomość? Skorzystaj z bezpłatnej konsultacji – odpowiemy na pytania dotyczące ceny, procesu sprzedaży oraz możliwości poprawy atrakcyjności oferty.

Oferujemy również:
•⁠ ⁠Pośrednictwo w kupnie, sprzedaży oraz najmie nieruchomości.
•⁠ ⁠Pomoc w sprzedaży nieruchomości o skomplikowanej sytuacji prawnej.
•⁠ ⁠Rzetelne oceny wartości nieruchomości.
•⁠ ⁠Uzyskanie świadectwa energetycznego.


Nie zwlekaj, zadzwoń już teraz!

PAULINA KUSIAK
723-332-469
pkusiak@polnoc.pl
Północ Biuro Nieruchomości
ul. Żeromskiego 3, 22-400 Zamość


Niniejsze ogłoszenie nie stanowi oferty w rozumieniu Kodeksu Cywilnego, lecz ma charakter informacyjny.
Przedstawione wizualizacje i grafiki mają charakter wyłącznie poglądowy i stanowią wyłącznie materiał pomocniczy, ułatwiający zorientowanie się w ogólnym wyglądzie oferowanej nieruchomości.
Niniejsze ogłoszenie wraz z jego elementami jest własnością Północ Nieruchomości Sp z o.o. lub podmiotu współpracującego. Wszelkie prawa zastrzeżone. Kopiowanie, rozpowszechnianie oraz korzystanie z niniejszych materiałów w jakikolwiek inny sposób wykraczający poza dozwolony użytek określony przepisami ustawy z 4 lutego 1994 r. o prawie autorskim i prawach pokrewnych (Dz. U. 1994, nr 24 poz. 83 z późn. zm.) bez pisemnej zgody Północ Nieruchomości Sp z o.o. lub podmiotów współpracujących jest zabronione i może stanowić podstawę odpowiedzialności cywilnej oraz karnej.
Niniejsze materiały stanowią tajemnicę przedsiębiorstwa PÓŁNOC NIERUCHOMOŚCI Sp. z o.o. w rozumieniu ustawy z dnia 16 kwietnia 1993 r. o zwalczaniu nieuczciwej konkurencji (Dz. U. z 2003 r., Nr 153, poz. 1503 z późn. zm.).


Niniejsze ogłoszenie nie stanowi oferty w rozumieniu Kodeksu Cywilnego, lecz ma charakter informacyjny.
Przedstawione wizualizacje i grafiki mają charakter wyłącznie poglądowy i stanowią wyłącznie materiał pomocniczy, ułatwiający zorientowanie się w ogólnym wyglądzie oferowanej nieruchomości.
Niniejsze ogłoszenie wraz z jego elementami jest własnością Północ Nieruchomości Sp z o.o. lub podmiotu współpracującego. Wszelkie prawa zastrzeżone. Kopiowanie, rozpowszechnianie oraz korzystanie z niniejszych materiałów w jakikolwiek inny sposób wykraczający poza dozwolony użytek określony przepisami ustawy z 4 lutego 1994 r. o prawie autorskim i prawach pokrewnych (Dz. U. 1994, nr 24 poz. 83 z późn. zm.) bez pisemnej zgody Północ Nieruchomości Sp z o.o. lub podmiotów współpracujących jest zabronione i może stanowić podstawę odpowiedzialności cywilnej oraz karnej.
Niniejsze materiały stanowią tajemnicę przedsiębiorstwa PÓŁNOC NIERUCHOMOŚCI Sp. z o.o. w rozumieniu ustawy z dnia 16 kwietnia 1993 r. o zwalczaniu nieuczciwej konkurencji (Dz. U. z 2003 r., Nr 153, poz. 1503 z późn. zm.).

Niniejsze ogłoszenie nie stanowi oferty w rozumieniu Kodeksu Cywilnego, lecz ma charakter informacyjny.

Przedstawione wizualizacje i grafiki mają charakter wyłącznie poglądowy i stanowią wyłącznie materiał pomocniczy, ułatwiający zorientowanie się w ogólnym wyglądzie oferowanej nieruchomości.

Niniejsze ogłoszenie wraz z jego elementami jest własnością Północ Nieruchomości Sp z o.o. lub podmiotu współpracującego. Wszelkie prawa zastrzeżone. Kopiowanie, rozpowszechnianie oraz korzystanie z niniejszych materiałów w jakikolwiek inny sposób wykraczający poza dozwolony użytek określony przepisami ustawy z 4 lutego 1994 r. o prawie autorskim i prawach pokrewnych (Dz. U. 1994, nr 24 poz. 83 z późn. zm.) bez pisemnej zgody Północ Nieruchomości Sp z o.o. lub podmiotów współpracujących jest zabronione i może stanowić podstawę odpowiedzialności cywilnej oraz karnej.

Niniejsze materiały stanowią tajemnicę przedsiębiorstwa PÓŁNOC NIERUCHOMOŚCI Sp. z o.o. w rozumieniu ustawy z dnia 16 kwietnia 1993 r. o zwalczaniu nieuczciwej konkurencji (Dz. U. z 2003 r., Nr 153, poz. 1503 z późn. zm.).

Mapa

Zapytaj o tę ofertę

Lub zadzwoń