Kontakt
Nr oferty: 120903/3877/OMS

4 pokoje z ogródkiem przy metrze. 3 kw. 2026

Bemowo, ul. Szeligowska zobacz na mapie

1 659 000 PLN

Szczegóły oferty

Cena:
1 659 000,00 zł
Powierzchnia:
99,09 m2
Cena za m2:
16 742,36 zł
Rok budowy:
2026
Liczba pięter:
6
Garaż/Miejsca parkingowe:
tak
Rynek:
Pierwotny
Rodzaj budynku:
Budynek apartamentowy
Liczba pokoi:
4
Typ kuchni:
Aneks
Winda:
tak
Id oferty:
120903/3877/OMS

Opis

Umów się na spotkanie i sprawdź nasze promocje!!

Na sprzedaż 4 pokojowy apartament z tarasem i ogródkiem  przy nowopowstającej linii metra na Bemowie. 
Oddanie w 3 kwartale 2026 roku

Zakup bezpośrednio od dewelopera. 
Bez prowizji i bez podatku PCC
W mojej ofercie posiadam wszystkie dostępne mieszkania w tej inwestycji. 

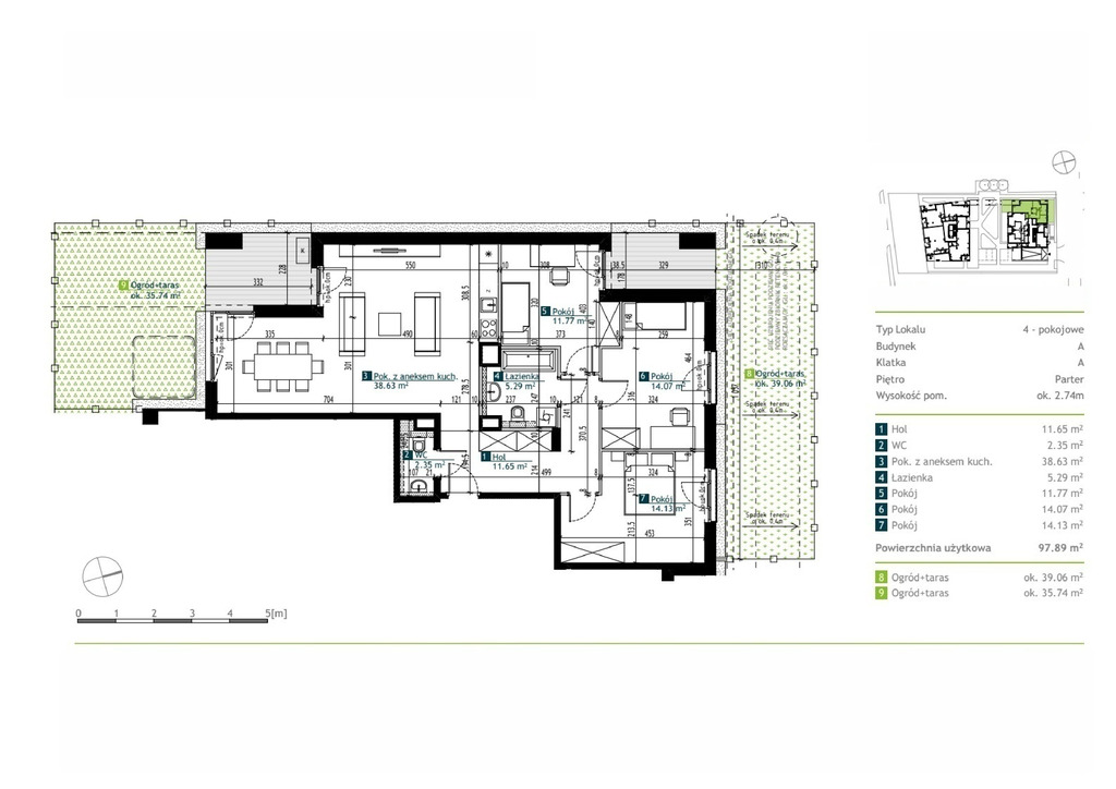
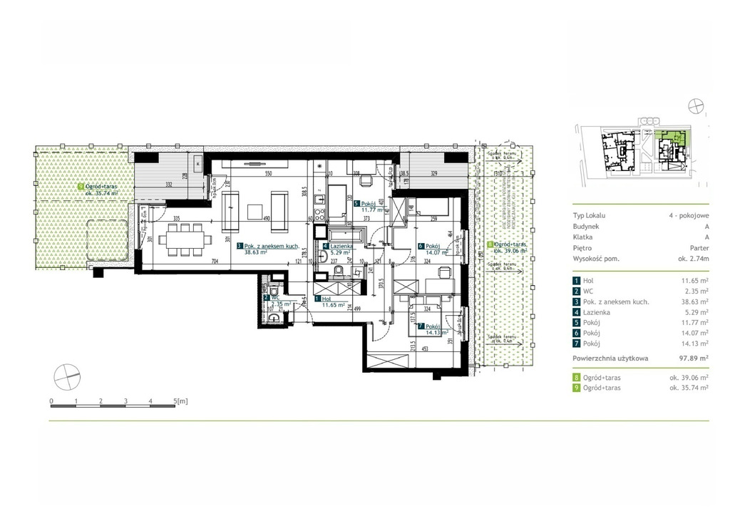
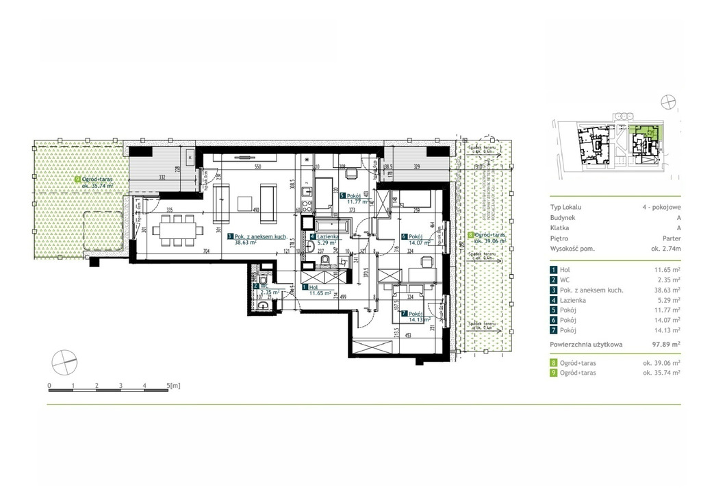
W skład mieszkania wchodzi:
- Hol 11,65 m2
-  Salon z aneksem kuchennym 38,63 m2
-  Łazienka 5,29 m2
-  Pokój 11,77 m2
-  Pokój 14,07 m2
-  Pokój 15,33 m2
- WC 2,35 m2
- Ogródek + taras   ok. 39,06 m2
- Ogródek + taras   ok. 35,74m2

Miejsce w garażu podziemnym dodatkowo płatne . Nie obowiązkowe.

Inwestycja to kameralny budynek zlokalizowany na warszawskim Chrzanowie, który jest dynamicznie rozwijającą się częścią miasta. Nowa inwestycja znajduje się zaledwie 450 metrów od powstającej stacji metra Chrzanów, co pozwoli przyszłym mieszkańcom na wygodny dojazd do centrum Warszawy. Dodatkowo, szybki dostęp do trasy S8 umożliwia wyjazd z miasta w mniej niż 5 minut. W pobliżu, po drugiej stronie ulicy Szeligowskiej, planowane jest otwarcie dużego zespołu szkolno-przedszkolnego, który pomieści ponad tysiąc dzieci.

W budynku zaplanowano 49 mieszkań wyposażonych w ogródki, balkony oraz przestronne tarasy. Na Osiedlu  dostępne będą lokale o powierzchni od 28 do 142 m², z układami od jednego do pięciu pokoi. Warto zwrócić uwagę na tarasy, które będą przynależeć do mieszkań położonych na najwyższych piętrach.
Budynek zaprojektowano w eleganckim i nowoczesnym stylu, z przewagą jasnych kolorów. Elewacja zostanie wzbogacona o płyty cementowe marki Equitone oraz elementy przypominające drewno, co podkreśli jego nowoczesny charakter.

Mieszkańcy będą mogli korzystać z systemu automatyki mieszkaniowej Appartme, który pozwala na zdalne sterowanie temperaturą, automatyczne odcięcie dopływu wody podczas nieobecności oraz natychmiastowe odłączenie prądu w przypadku zagrożenia. System umożliwia także wyłączenie oświetlenia, gdy nikt nie przebywa w mieszkaniu, co zwiększa wygodę i bezpieczeństwo.

Potrzebujesz pomocy przy wyborze kredytu hipotecznego? Nasi wykwalifikowani doradcy finansowi z ponad 15 letnim doświadczeniem bezpłatnie pomogą w przejściu przez cały proces kredytowy i w wyborze najlepszej oferty.
Współpracujemy również z firmami zajmującymi się kompleksowym wykończeniem wnętrz.

Zapraszam do kontaktu!

Niniejsze ogłoszenie nie stanowi oferty w rozumieniu Kodeksu Cywilnego, lecz ma charakter informacyjny.

Przedstawione wizualizacje i grafiki mają charakter wyłącznie poglądowy i stanowią wyłącznie materiał pomocniczy, ułatwiający zorientowanie się w ogólnym wyglądzie oferowanej nieruchomości.

Niniejsze ogłoszenie wraz z jego elementami jest własnością Północ Nieruchomości Sp z o.o. lub podmiotu współpracującego. Wszelkie prawa zastrzeżone. Kopiowanie, rozpowszechnianie oraz korzystanie z niniejszych materiałów w jakikolwiek inny sposób wykraczający poza dozwolony użytek określony przepisami ustawy z 4 lutego 1994 r. o prawie autorskim i prawach pokrewnych (Dz. U. 1994, nr 24 poz. 83 z późn. zm.) bez pisemnej zgody Północ Nieruchomości Sp z o.o. lub podmiotów współpracujących jest zabronione i może stanowić podstawę odpowiedzialności cywilnej oraz karnej.

Niniejsze materiały stanowią tajemnicę przedsiębiorstwa PÓŁNOC NIERUCHOMOŚCI Sp. z o.o. w rozumieniu ustawy z dnia 16 kwietnia 1993 r. o zwalczaniu nieuczciwej konkurencji (Dz. U. z 2003 r., Nr 153, poz. 1503 z późn. zm.).

Mapa

Zapytaj o tę ofertę

Lub zadzwoń