Kontakt
Nr oferty: 113630/3877/OMS

2 POK., 39.02m2, STACJA GROCHÓW, Praga Południe

Praga-Południe, Przeworska zobacz na mapie

559 000 PLN

Szczegóły oferty

Cena:
559 000,00 zł
Powierzchnia:
39,02 m2
Cena za m2:
14 325,99 zł
Rok budowy:
2020
Liczba pięter:
5
Piętro:
4
Garaż/Miejsca parkingowe:
tak
Rynek:
Wtórny
Rodzaj budynku:
Niski blok
Liczba pokoi:
2
Typ kuchni:
Aneks
Winda:
tak
Id oferty:
113630/3877/OMS

Opis

2 pok., 39.02m2, Stacja Grochów, Praga Południe.

Mieszkanie na zamkniętym i strzeżonym osiedlu w spokojnej części Grochowa na warszawskiej Pradze Południe.

Zaletą samego mieszkania jest przestronny układ oraz duże nasłonecznienie pomieszczeń.
Na metrażu 39 m2 znajdziemy świetnie zaaranżowaną przestrzeń podzieloną na dwa pokoje - salon z aneksem kuchennym oraz sypialnię i łazienkę.

OPIS MIESZKANIA :
* Mieszkanie z ekspozycją południowo-zachodnią
* widok na patio
* łazienka z wanną
* przestronne szafy wnękowe w przedpokoju oraz sypialni
* balkon
* na podłodze deska barlinecka oraz terakota
* idealne dla singla lub pary

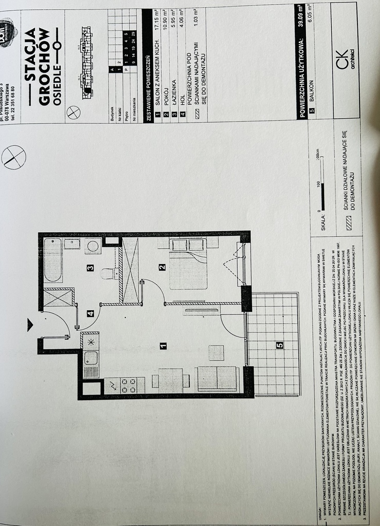
ZESTAWIENIE POMIESZCZEŃ :
- salon z aneksem kuchennym - 17,15 m2
- pokój - 10,90 m2
- łazienka - 5,95 m2
- hol - 4,06 m2
- balkon - 6,05 m2

OPIS BUDYNKU:
- 5 -piętrowy z 2020 roku
- winda
- domofon
- monitoring
- osiedle zamknięte i strzeżone
- klatki schodowe zadbane
- wybudowane przez Dom Development

LOKALIZACJA:
* Spokojna, cicha okolica z niską nowoczesną zabudową
* 400 m przystanek autobusowy (linia 102,123), 1400 m do Rondo Wiatraczna (linie tramwajowe)
* w okolicy liczne sklepy i punkty usługowe
* w pobliżu parki zieleni, szpital, OSiR


Miejsca w garażu podziemnym dodatkowo płatne - 40 000 PLN.

Stan prawny: Pełna własność.

Potrzebujesz pomocy przy wyborze kredytu hipotecznego? Nasi wykwalifikowani doradcy finansowi z ponad 15 letnim doświadczeniem bezpłatnie pomogą w przejściu przez cały proces kredytowy i w wyborze najlepszej oferty.

Zainteresowanych zakupem zapraszam na prezentację.

Niniejsze ogłoszenie nie stanowi oferty w rozumieniu Kodeksu Cywilnego, lecz ma charakter informacyjny.

Przedstawione wizualizacje i grafiki mają charakter wyłącznie poglądowy i stanowią wyłącznie materiał pomocniczy, ułatwiający zorientowanie się w ogólnym wyglądzie oferowanej nieruchomości.

Niniejsze ogłoszenie wraz z jego elementami jest własnością Północ Nieruchomości Sp z o.o. lub podmiotu współpracującego. Wszelkie prawa zastrzeżone. Kopiowanie, rozpowszechnianie oraz korzystanie z niniejszych materiałów w jakikolwiek inny sposób wykraczający poza dozwolony użytek określony przepisami ustawy z 4 lutego 1994 r. o prawie autorskim i prawach pokrewnych (Dz. U. 1994, nr 24 poz. 83 z późn. zm.) bez pisemnej zgody Północ Nieruchomości Sp z o.o. lub podmiotów współpracujących jest zabronione i może stanowić podstawę odpowiedzialności cywilnej oraz karnej.

Niniejsze materiały stanowią tajemnicę przedsiębiorstwa PÓŁNOC NIERUCHOMOŚCI Sp. z o.o. w rozumieniu ustawy z dnia 16 kwietnia 1993 r. o zwalczaniu nieuczciwej konkurencji (Dz. U. z 2003 r., Nr 153, poz. 1503 z późn. zm.).

Mapa

Zapytaj o tę ofertę

Lub zadzwoń