Kontakt
Nr oferty: 120907/3877/OMS

2 pokoje, Praga Południe, 1 kw. 2026, stan dew.

Praga-Południe, ul. Drwęcka zobacz na mapie

700 000 PLN

Szczegóły oferty

Cena:
700 000,00 zł
Powierzchnia:
45,09 m2
Cena za m2:
15 524,51 zł
Rok budowy:
2026
Liczba pięter:
5
Piętro:
3
Garaż/Miejsca parkingowe:
tak
Rynek:
Pierwotny
Rodzaj budynku:
Budynek apartamentowy
Liczba pokoi:
2
Winda:
tak
Id oferty:
120907/3877/OMS

Opis

Umów się na spotkanie i sprawdź nasze promocje!!


Na sprzedaż 2 pokojowe mieszkanie w nowopowstającej inwestycji przy ulicy Drwęckiej.
Oddanie w 1 kwartale 2026 roku

Zakup bezpośrednio od dewelopera. 
Bez prowizji i bez podatku PCC
W mojej ofercie posiadam wszystkie dostępne mieszkania w tej inwestycji. 

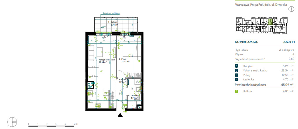
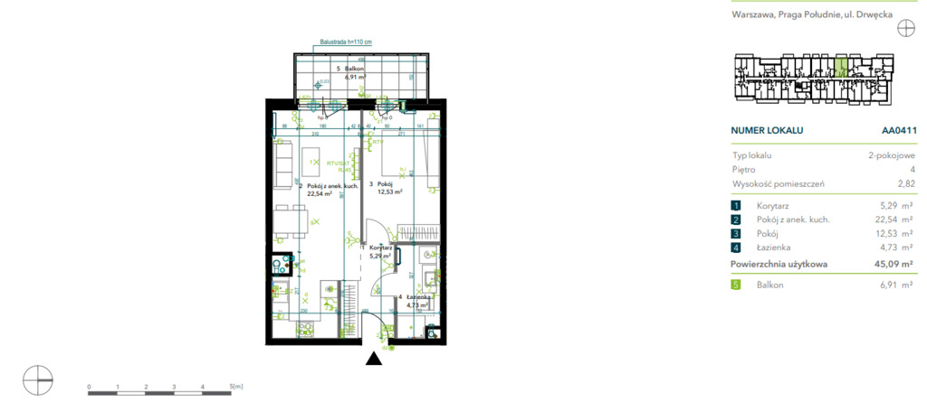
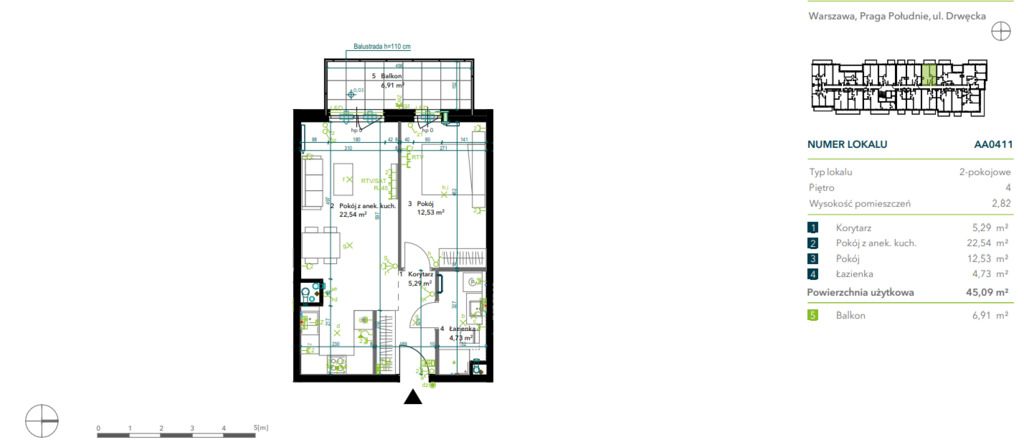
W skład mieszkania wchodzi:
- korytarz 5,29 m2
- salon z aneksem kuchennym 22,54 m2
- sypialnia 12.53 m2
- łazienka 4,73 m2
- balkon 6,91 m2


Miejsce w garażu podziemnym dodatkowo płatne . Nie obowiązkowe.


Ta inwestycja to nowoczesny budynek, w którym zaplanowano 104 mieszkania o różnorodnych metrażach – od 28 do 115 m² – i układach od jednego do pięciu pokoi. Inwestycja wyróżnia się wyjątkowym wykończeniem w miedzianych odcieniach, nadającym jej charakterystyczny, stylowy wygląd.
W budynku znajdą się tarasy na najwyższym piętrze, mieszkania dwupoziomowe oraz lokale usługowe. Na terenie obiektu mieszkańcy będą mieli dostęp do stacji ładowania pojazdów elektrycznych oraz serwisu rowerowego.

W każdym mieszkaniu standardowo zamontowany będzie nowoczesny system inteligentnej automatyki domowej Appartme, który pozwala na kontrolowanie temperatury, automatyczne odcięcie dopływu wody podczas nieobecności, zabezpieczenie prądu w gniazdkach w razie zagrożenia oraz wyłączanie oświetlenia przy opuszczaniu mieszkania.
Neo Praga powstanie w dynamicznie rozwijającej się, południowej części warszawskiej Pragi. W pobliżu planowana jest stacja metra przy ulicy Mińskiej, co dodatkowo zwiększy dostępność komunikacyjną.

Okolica ma ogromny potencjał, znajdują się tu liczne sklepy, punkty usługowe, restauracje, a także linie tramwajowe i autobusowe oraz stacja PKP Grochów. Rowerem można dotrzeć do Uniwersytetu SWPS w 5 minut.

Praga Południe oferuje także sporo terenów zielonych – w sąsiedztwie znajdują się Park im. J. Polińskiego oraz Park Obwodu Praga Armii Krajowej, a do Parku Skaryszewskiego można dojechać rowerem w 12 minut

Potrzebujesz pomocy przy wyborze kredytu hipotecznego? Nasi wykwalifikowani doradcy finansowi z ponad 15 letnim doświadczeniem bezpłatnie pomogą w przejściu przez cały proces kredytowy i w wyborze najlepszej oferty.
Współpracujemy również z firmami zajmującymi się kompleksowym wykończeniem wnętrz.

Zapraszam do kontaktu!

Niniejsze ogłoszenie nie stanowi oferty w rozumieniu Kodeksu Cywilnego, lecz ma charakter informacyjny.

Przedstawione wizualizacje i grafiki mają charakter wyłącznie poglądowy i stanowią wyłącznie materiał pomocniczy, ułatwiający zorientowanie się w ogólnym wyglądzie oferowanej nieruchomości.

Niniejsze ogłoszenie wraz z jego elementami jest własnością Północ Nieruchomości Sp z o.o. lub podmiotu współpracującego. Wszelkie prawa zastrzeżone. Kopiowanie, rozpowszechnianie oraz korzystanie z niniejszych materiałów w jakikolwiek inny sposób wykraczający poza dozwolony użytek określony przepisami ustawy z 4 lutego 1994 r. o prawie autorskim i prawach pokrewnych (Dz. U. 1994, nr 24 poz. 83 z późn. zm.) bez pisemnej zgody Północ Nieruchomości Sp z o.o. lub podmiotów współpracujących jest zabronione i może stanowić podstawę odpowiedzialności cywilnej oraz karnej.

Niniejsze materiały stanowią tajemnicę przedsiębiorstwa PÓŁNOC NIERUCHOMOŚCI Sp. z o.o. w rozumieniu ustawy z dnia 16 kwietnia 1993 r. o zwalczaniu nieuczciwej konkurencji (Dz. U. z 2003 r., Nr 153, poz. 1503 z późn. zm.).

Mapa

Zapytaj o tę ofertę

Lub zadzwoń