Kontakt
Nr oferty: 124739/3877/OMS

DUŻA OBNIŻKA CENY! Mieszkanie | Ogród| Garaż |

Włocławek, ul. Rzeczna zobacz na mapie

1 150 000 PLN

Szczegóły oferty

Cena:
1 150 000,00 zł
Powierzchnia:
156,80 m2
Cena za m2:
7 330,00 zł
Rok budowy:
2000
Liczba pięter:
2
Garaż/Miejsca parkingowe:
tak
Rynek:
Wtórny
Rodzaj budynku:
Budynek apartamentowy
Liczba pokoi:
3
Typ kuchni:
Oddzielna
Id oferty:
124739/3877/OMS

Opis


Nowa cena : 1 150 000 zł
(
cena obniżona z 1 250 000zł)
Ogromnym atutem nieruchomości jest prywatny ogród z tarasem i widokiem na park,
który daje poczucie przestrzeni i kontaktu z naturą.

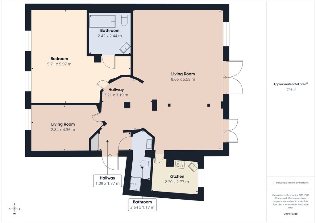
Wyjątkowe mieszkanie o powierzchni 104,63m², z garażem i piwnico-pralnią powierzchnia 156,80m²,
położone na parterze w świetnej lokalizacji w centrum miasta, a jednocześnie w miejscu zapewniającym ciszę, spokój i widok na zieleń.

Układ mieszkania:
✔️ 
przestronny salon z wejściem na taras i ogród
✔️ oddzielna sypialnia z łazienką
✔️ dodatkowy pokój 
✔️ oddzielna kuchnia  
✔️ 2 łazienka   
✔️ charakterystyczny okrągły przedpokój 
✔️ mieszkanie dwustronne, dobrze doświetlone

Dodatkowo do mieszkania  przynależy:
✔️
garaż pod ziemny
✔️ 2 miejsca postojowe
✔️ pralnia 
✔️ ogród z wyjściem na park

Lokalizacja:
Ścisłe centrum miasta, a jednocześnie spokojna okolica przy parku.
W najbliższym otoczeniu znajdują się sklepy, szkoły, przedszkole, przychodnie, oraz tereny zielone, wszystko w zasięgu kilku minut.
To idealna propozycja dla osób, które cenią mieszkać  w centrum, ale z prywatnym ogrodem i zielenią za oknem.
W ogłoszeniu przedstawiono przykładowe wizualizacje możliwosci aranżacji nieruchomości

Mieszkanie z ogrodem przy parku w centrum pojawiają się bardzo rzadko
Zapraszam na prezentację
tel. 730828868




Niniejsze ogłoszenie nie stanowi oferty w rozumieniu Kodeksu Cywilnego, lecz ma charakter informacyjny.

Przedstawione wizualizacje i grafiki mają charakter wyłącznie poglądowy i stanowią wyłącznie materiał pomocniczy, ułatwiający zorientowanie się w ogólnym wyglądzie oferowanej nieruchomości.

Niniejsze ogłoszenie wraz z jego elementami jest własnością Północ Nieruchomości Sp z o.o. lub podmiotu współpracującego. Wszelkie prawa zastrzeżone. Kopiowanie, rozpowszechnianie oraz korzystanie z niniejszych materiałów w jakikolwiek inny sposób wykraczający poza dozwolony użytek określony przepisami ustawy z 4 lutego 1994 r. o prawie autorskim i prawach pokrewnych (Dz. U. 1994, nr 24 poz. 83 z późn. zm.) bez pisemnej zgody Północ Nieruchomości Sp z o.o. lub podmiotów współpracujących jest zabronione i może stanowić podstawę odpowiedzialności cywilnej oraz karnej.

Niniejsze materiały stanowią tajemnicę przedsiębiorstwa PÓŁNOC NIERUCHOMOŚCI Sp. z o.o. w rozumieniu ustawy z dnia 16 kwietnia 1993 r. o zwalczaniu nieuczciwej konkurencji (Dz. U. z 2003 r., Nr 153, poz. 1503 z późn. zm.).

Mapa

Zapytaj o tę ofertę

Lub zadzwoń