Kontakt
Nr oferty: 12005/3877/OMW

Mieszkanie 3 pokojowe z dopłata do czynszu

Zamość zobacz na mapie

1 720 PLN

Szczegóły oferty

Cena:
1 720,00 zł
Powierzchnia:
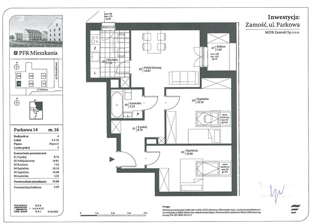
54,86 m2
Cena za m2:
31,35 zł
Rok budowy:
2022
Liczba pięter:
3
Piętro:
3
Garaż/Miejsca parkingowe:
tak
Rynek:
Pierwotny
Rodzaj budynku:
Blok
Liczba pokoi:
3
Typ kuchni:
Oddzielna
Id oferty:
12005/3877/OMW

Opis

Do wynajęcia 3 pokojowe mieszkanie o pow. 54,86 m²  przy ul. Parkowej w Zamościu. Mieszkanie dostępne na 3 piętrze.
 
Czynsz najmu: 1800 zł
Opłata eksploatacyjna: 7,2zł/m2
 
Możliwość otrzymania dopłaty do czynszu - więcej informacji na stronie inwestycji MDR Zamość.
Przykładowa wysokość dopłat dla:
- 1 osobowego gospodarstwa domowego - ok. 159 zł
- 2 osobowego gospodarstwa domowego - ok. 279 zł
- 3 i 4 osobowego gospodarstwa domowego - ok. 379 zł
 
Właściciel zapewnia bezpieczny długoterminowy najem. Mieszkanie objęte jest programem dopłat do czynszu, o które najemca może się ubiegać i korzystać aż do 2037r.

 
Przestronne mieszkanie składa się z:
- pokoju dziennego z wyjściem na balkon
- 2 sypialni 
- widnej, oddzielnej kuchni,
- przedpokoju
- łazienki
- balkonu 
 
 
Mieszkanie nowe, wykończone, nieumeblowane, jasne i przestronne, ekspozycja okien na południe i wschód. Oferowane mieszkanie stanowi unikatową szansę na stworzenie własnego, wymarzonego miejsca do życia, w pełni dostosowanego do własnych potrzeb.
 
Wyposażenie mieszkania:
- ściany pomalowane w kolorze białym
- panele podłogowe w pokojach i przedpokoju
- w kuchni na podłodze terakota, na ścianie pas glazury   
- łazienka i wc: glazura i biały montaż
- drzwi wewnętrzne
 
Osiedle powstało ze środków Funduszu Mieszkań dla Rozwoju, zostało oddane do użytkowania w połowie 2022 roku.
Na terenie osiedla duży parking dla samochodów i dedykowany parking dla rowerów, nowatorski system segregacji odpadów.
 
W ofercie do wynajęcia posiadamy inne powierzchnie. Zadzwoń zapytać o dostępność.
Pośrednik nie pobiera wynagrodzenia od najemcy. Zachęcamy do kontaktu po więcej szczegółów oferty.


Tomasz Juszczak
PÓŁNOC Nieruchomości Zamość
ul.. Żeromskiego 3, 22-400 Zamość
tel. 504 288 990
e-mail: tjuszczak@polnoc.pl

Niniejsze ogłoszenie nie stanowi oferty w rozumieniu Kodeksu Cywilnego, lecz ma charakter informacyjny.

Przedstawione wizualizacje i grafiki mają charakter wyłącznie poglądowy i stanowią wyłącznie materiał pomocniczy, ułatwiający zorientowanie się w ogólnym wyglądzie oferowanej nieruchomości.

Niniejsze ogłoszenie wraz z jego elementami jest własnością Północ Nieruchomości Sp z o.o. lub podmiotu współpracującego. Wszelkie prawa zastrzeżone. Kopiowanie, rozpowszechnianie oraz korzystanie z niniejszych materiałów w jakikolwiek inny sposób wykraczający poza dozwolony użytek określony przepisami ustawy z 4 lutego 1994 r. o prawie autorskim i prawach pokrewnych (Dz. U. 1994, nr 24 poz. 83 z późn. zm.) bez pisemnej zgody Północ Nieruchomości Sp z o.o. lub podmiotów współpracujących jest zabronione i może stanowić podstawę odpowiedzialności cywilnej oraz karnej.

Niniejsze materiały stanowią tajemnicę przedsiębiorstwa PÓŁNOC NIERUCHOMOŚCI Sp. z o.o. w rozumieniu ustawy z dnia 16 kwietnia 1993 r. o zwalczaniu nieuczciwej konkurencji (Dz. U. z 2003 r., Nr 153, poz. 1503 z późn. zm.).

Mapa

Zapytaj o tę ofertę

Lub zadzwoń