Kontakt
Nr oferty: 117624/3877/OMS

Dwupoziomowe mieszkanie na zamojskich Koszarach

Zamość, ul. Koszary zobacz na mapie

618 000 PLN

Szczegóły oferty

Cena:
618 000,00 zł
Powierzchnia:
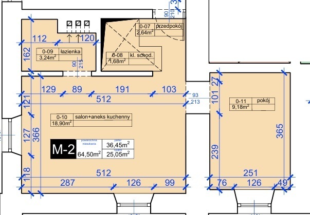
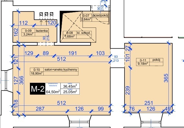
64,50 m2
Cena za m2:
9 581,40 zł
Rok budowy:
2022
Liczba pięter:
2
Rynek:
Pierwotny
Rodzaj budynku:
Kamienica
Liczba pokoi:
4
Typ kuchni:
Otwarta
Id oferty:
117624/3877/OMS

Opis

Przedstawiam Państwu wyjątkową ofertę sprzedaży dwupoziomowego mieszkania w nowej inwestycji mieszkaniowej "Koszary 16" na terenie historycznych, zamojskich Koszarów.
Mieszkanie zlokalizowane jest w niskim budynku dwukondygnacyjnym, gruntownie odnowionym w 2022 roku. 
Inwestycja Koszary 16 obejmowała remont i adaptację budynku na cele mieszkalne czego efektem są oddane właśnie do sprzedaży wygodne i przestronne mieszkania zarówno do samodzielnej adaptacji jak również, wykończone pod klucz.

Oferowane mieszkanie ma 64,5 m2, znajdziemy w nim:
- korytarz na dwóch poziomach, który łączy się klatką schodową (łącznie 9 m2) 
PARTER:
- salon z aneksem kuchennym (19 m2),
- łazienkę z prysznicem (3,2 m2)
- pokój (9,2m2)
PIĘTRO:
- pokój (7,5 m2)
- pokój (8,5 m2)
- Łazienka z prysznicem i miejscem na pralnię (4 m2)
Mieszkanie jest wykończone pod klucz.

Każde z mieszkań w budynku ma przydzieloną  komórkę lokatorską w podpiwniczeniu, 

Typ budynku: historyczny budynek koszarowy z niepowtarzalnym charakterem.
Wykonany w technologii murowanej, z charakterystycznymi grubymi, monumentalnymi ścianami zewnętrznymi.
Części wspólne budynku są wykończone w wysokim standardzie, komunikację między piętrami  zapewnia wygodna, wspólna klatka schodowa. Na korytarzach mieszkańcy znajdą wygodną przestrzeń do przechowywania rowerów czy wózków. W podpiwniczeniu mieszkańcy znajdą komórki lokatorskie.

Lokalizacja:
* ul. Koszary 16
* dojazd z drogi asfaltowej

W sąsiedztwie Inwestycji znajdziemy  m.in. szkoły społeczne (SP i liceum) oraz niepubliczne szkoły wyższe. W budynkach powojskowych znajdują się takie obiekty jak Książnica Zamojska (biblioteka publiczna) oraz Młodzieżowy Dom Kultury im. K. Makuszyńskiego, niepubliczne przedszkole, niepubliczna przychodnia, inne obiekty usługowe (m.in. hotele i restauracje), kościół.
Cały zespół Koszar (poza jednostką wojskową) obejmujący niemal wszystkie budynki wraz z kościołem św. Michała Archanioła oraz zieleń, ujęty jest w gminnej ewidencji zabytków, natomiast układ urbanistyczny części zespołu dawnych koszar (wraz z terenem zamkniętym jednostki wojskowej) został wpisany do rejestru zabytków.

Inne dostępne mieszkania na sprzedaż w budynku Koszary 16: 

Parter:

lokale mieszkalne jednopoziomowe o powierzchni:
- 50,95 m² /SPRZEDANE
- 39,23 m² /SPRZEDANE
- 40,12 m² /SPRZEDANE
- 50,18 m² / SPRZEDANE

3 mieszkania dwupoziomowe  o powierzchni:
- 72,13 m² 
- 72,10 m² / SPRZEDANE
- 91,36 m²

Poddasze:
4 lokale mieszkalne o powierzchni:
- 38,54 m² /SPRZEDANE
- 42,21 m² /SPRZEDANE
- 44,85 m² /SPRZEDANE
- 59,75 m² /SPRZEDANE

Jest to doskonała okazja dla tych, którzy poszukują przestronnego i komfortowego miejsca do zamieszkania zlokalizowanego blisko centrum miasta, ale jednocześnie cenią sobie ciszę, spokój i otoczenie przyrody.

Serdecznie zapraszam do kontaktu w celu uzyskania dodatkowych informacji oraz umówienia się na prezentację nieruchomości.

Nasze biuro pomaga na każdym etapie zakupu nieruchomości by szybko i bezpiecznie sfinalizować transakcję. Pomagamy  również w formalnościach związanych z uzyskaniem kredytu na zakup nieruchomości.
Nasz doradca kredytowy bezpłatnie pomoże Ci sprawdzić zdolność kredytową i przedstawi najkorzystniejszą ofertę z ponad 10 banków!

Posiadasz podobną nieruchomość? Zadzwoń i skorzystaj z bezpłatnej konsultacji, gdzie odpowiem na pytania dotyczące Twojej nieruchomości, jej ceny oraz procesu sprzedaży.



Justyna Łagoda 
Tel. 665 750 080

ul. Żeromskiego 3
22-400 Zamość

Niniejsze ogłoszenie nie stanowi oferty w rozumieniu Kodeksu Cywilnego, lecz ma charakter informacyjny.

Przedstawione wizualizacje i grafiki mają charakter wyłącznie poglądowy i stanowią wyłącznie materiał pomocniczy, ułatwiający zorientowanie się w ogólnym wyglądzie oferowanej nieruchomości.

Niniejsze ogłoszenie wraz z jego elementami jest własnością Północ Nieruchomości Sp z o.o. lub podmiotu współpracującego. Wszelkie prawa zastrzeżone. Kopiowanie, rozpowszechnianie oraz korzystanie z niniejszych materiałów w jakikolwiek inny sposób wykraczający poza dozwolony użytek określony przepisami ustawy z 4 lutego 1994 r. o prawie autorskim i prawach pokrewnych (Dz. U. 1994, nr 24 poz. 83 z późn. zm.) bez pisemnej zgody Północ Nieruchomości Sp z o.o. lub podmiotów współpracujących jest zabronione i może stanowić podstawę odpowiedzialności cywilnej oraz karnej.

Niniejsze materiały stanowią tajemnicę przedsiębiorstwa PÓŁNOC NIERUCHOMOŚCI Sp. z o.o. w rozumieniu ustawy z dnia 16 kwietnia 1993 r. o zwalczaniu nieuczciwej konkurencji (Dz. U. z 2003 r., Nr 153, poz. 1503 z późn. zm.).

Mapa

Zapytaj o tę ofertę

Lub zadzwoń