Atrakcyjna nieruchomość w Kurianach z potencjałem inwestycyjnym i mieszkalnym.
Lokalizacja: Kuriany, gmina Zabłudów (cicha i malownicza okolica)
Powierzchnia działki: 3137 m²
Opis Nieruchomości:Na sprzedaż funkcjonalna działka zabudowana dwukondygnacyjnym budynkiem o charakterze gospodarczo-mieszkalnym, zlokalizowana w Kurianach koło Zabłudowa. Nieruchomość stanowi interesującą propozycję dla przedsiębiorców oraz osób poszukujących przestronnego domu z możliwością prowadzenia działalności.
- Budynek: Wzniesiony w 2003 roku, rozbudowany około 2009 roku.
- Kondygnacja dolna (ok. 240 m²): Część o przeznaczeniu produkcyjnym, aktualnie wykorzystywana jako zakład stolarski. W jej skład wchodzą:
- Obszerne pomieszczenia produkcyjne
- Kotłownia
- Biuro
- Toaleta
- Szatnia
- Klatka schodowa
- Istnieje możliwość adaptacji na inne rodzaje działalności gospodarczej.
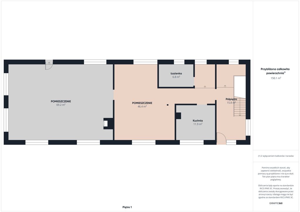
- Kondygnacja górna (ok. 150 m²): Przestronna powierzchnia mieszkalna w stanie deweloperskim, z zaawansowanym etapem wykończenia łazienki. Pozwala na indywidualną aranżację wnętrz.
Media: - Studnia głębinowa zapewniająca niezależne zaopatrzenie w wodę.
- Szambo.
Dojazd: - Nieruchomość posiada dogodny dojazd z Szosy Zabłudowskiej oraz drogą wewnętrzną z ustanowioną służebnością przejazdu.
Potencjał nieruchomości:Oferta charakteryzuje się znacznym potencjałem adaptacyjnym zarówno w sferze prowadzenia działalności gospodarczej, jak i stworzenia komfortowej przestrzeni mieszkalnej. Rozległa działka umożliwia dodatkowe zagospodarowanie terenu.
Adresaci oferty: - Przedsiębiorcy z sektora stolarskiego i branż pokrewnych: Nieruchomość dysponuje infrastrukturą umożliwiającą kontynuację działalności lub jej modyfikację.
- Właściciele firm poszukujący lokalizacji pod działalność gospodarczą: Duża powierzchnia użytkowa i dobry dojazd stanowią atuty dla warsztatów, magazynów, czy lekkiej produkcji.
- Rodziny pragnące zamieszkać w przestronnym domu z możliwością własnej aranżacji: Duża działka oferuje potencjał rekreacyjny i możliwość stworzenia ogrodu.
- Inwestorzy zainteresowani nieruchomościami z możliwością generowania przychodu z wynajmu.
- Osoby ceniące spokojne otoczenie z dobrym połączeniem komunikacyjnym z Zabłudowem i Białymstokiem.
Zapraszamy do kontaktu w celu uzyskania szczegółowych informacji oraz umówienia prezentacji nieruchomości.
Niniejsze ogłoszenie nie stanowi oferty w rozumieniu Kodeksu Cywilnego, lecz ma charakter informacyjny.
Przedstawione wizualizacje i grafiki mają charakter wyłącznie poglądowy i stanowią wyłącznie materiał pomocniczy, ułatwiający zorientowanie się w ogólnym wyglądzie oferowanej nieruchomości.
Niniejsze ogłoszenie wraz z jego elementami jest własnością Północ Nieruchomości Sp z o.o. lub podmiotu współpracującego. Wszelkie prawa zastrzeżone. Kopiowanie, rozpowszechnianie oraz korzystanie z niniejszych materiałów w jakikolwiek inny sposób wykraczający poza dozwolony użytek określony przepisami ustawy z 4 lutego 1994 r. o prawie autorskim i prawach pokrewnych (Dz. U. 1994, nr 24 poz. 83 z późn. zm.) bez pisemnej zgody Północ Nieruchomości Sp z o.o. lub podmiotów współpracujących jest zabronione i może stanowić podstawę odpowiedzialności cywilnej oraz karnej.
Niniejsze materiały stanowią tajemnicę przedsiębiorstwa PÓŁNOC NIERUCHOMOŚCI Sp. z o.o. w rozumieniu ustawy z dnia 16 kwietnia 1993 r. o zwalczaniu nieuczciwej konkurencji (Dz. U. z 2003 r., Nr 153, poz. 1503 z późn. zm.).