Kontakt
Nr oferty: 1450/3877/OOS

Butikowy hotel Korona w Sandomierzu

Sandomierz, Juliusza Słowackiego zobacz na mapie

4 500 000 PLN

Szczegóły oferty

Cena:
4 500 000,00 zł
Powierzchnia:
980,00 m2
Powierzchnia działki:
1 356,00 m2
Cena za m2:
4 591,84 zł
Rynek:
Wtórny
Liczba pięter:
2
Przeznaczenie (obiekt):
Handlowo/Usługowe
Rodzaj budynku:
Budynek apartamentowy
Prąd:
tak
Gaz:
tak
Id oferty:
1450/3877/OOS

Opis

Mamy przyjemność zaprezentować Państwu  okazały budynek , który znajduje się w centrum Sandomierza w bardzo  atrakcyjnej lokalizacji .

CO SPRZEDAJEMY?


Budynek  o powierzchni użytkowej  980 m²  jest   położony w centrum miasta na ponad 13 arowej  działce.   Aktualnie w budynku mieści się butikowy hotel Korona.  W bezpośrednim sąsiedztwie  budynku   położone są dwa  parki miejskie  : Piszczele  i  Saski, a od sandomierskiej starówki i głównych miejsc  stanowiących największe  atrakcje turystyczne miasta  jak np.: Brama Opatowska, Zamek Kazimierzowski, Dom Długosza, kościół św. Jakuba czy unikatowy wąwóz Królowej Jadwigi dzieli nas niewielka odległość, którą  można  pokonać  spacerem w kilka minut.  
Bliskie sąsiedztwo  parków zapewnia  ciszę , dużo zieleni   i umożliwia wypoczynek, a położenie w centrum miasta daje  możliwość korzystania z pełnej infrastruktury . W pobliżu są liczne  sklepy, urzędy, szkoły, MOSIR,  apteka, banki, sąd rejonowy, itp.
Już w pierwszym kontakcie, budynek /hotel  przyciąga   uwagę  estetyką bryły i elewacji oraz  dużą dbałością  wykonania różnych elementów  i detali  budynku. Estetyczne kute ogrodzenie, dwie bramy wjazdowe,  plac wyłożony granitową kostką z wyznaczonymi miejscami parkingowymi na 20 aut, granitowe schody i dwa letnie tarasy znajdujące się w zaaranżowanej  zieleni, tworzą klimat i czynią otoczenie hotelu kompletnym.  
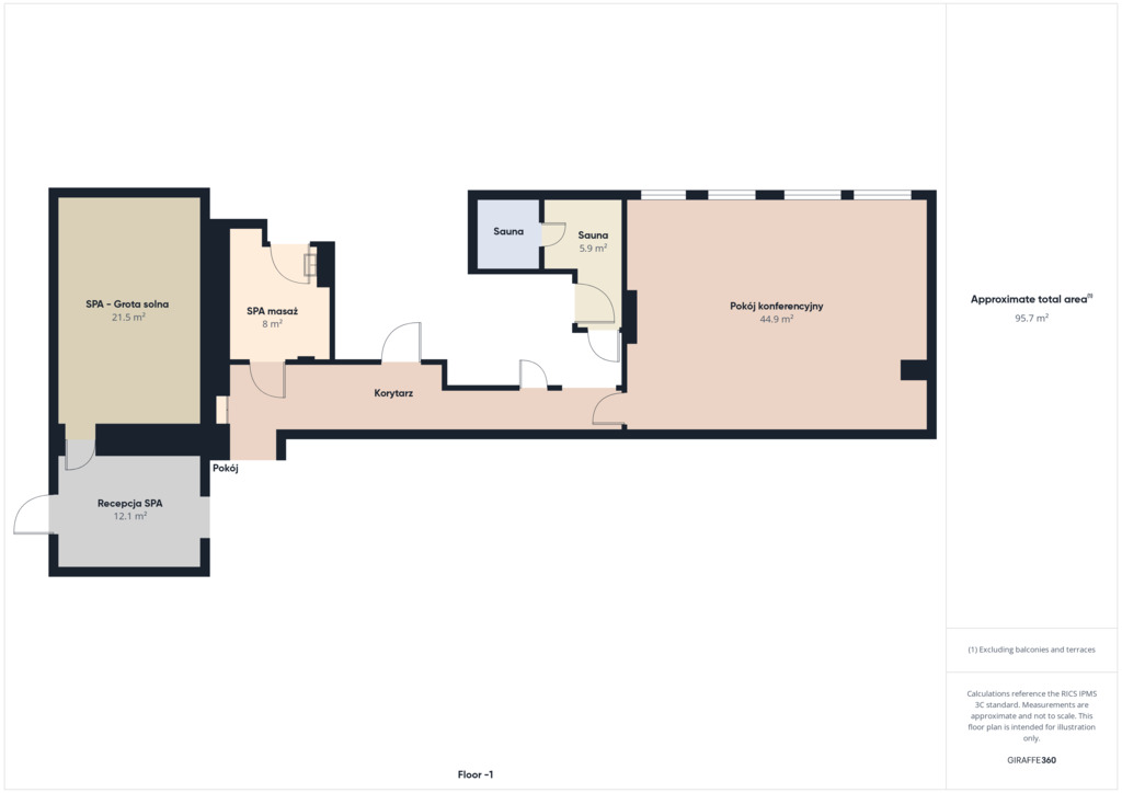
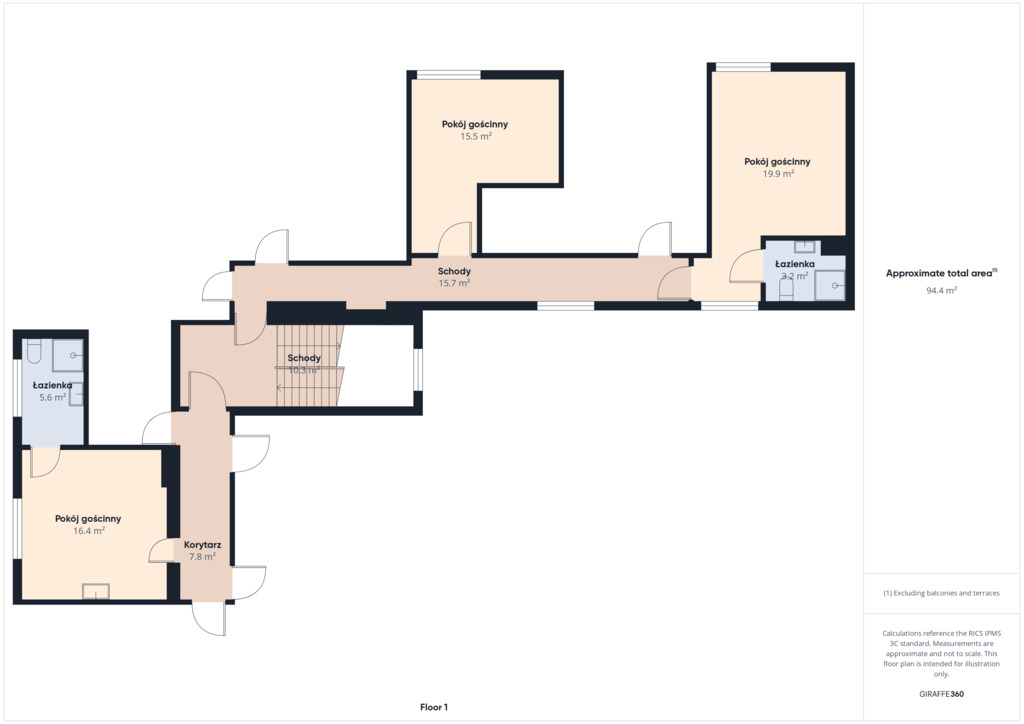
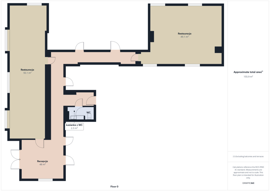
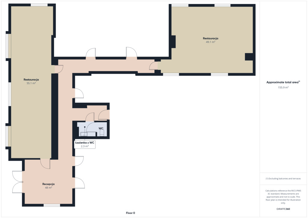
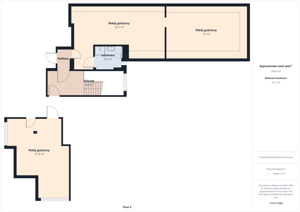
Rozkład pomieszczeń zezwala na różną aranżację . Obecnie podpiwniczenie stanowi strefę fitness i  SPA z grotą solną, solarium,  sauną i  gabinetem masażu.

BUDYNEK:

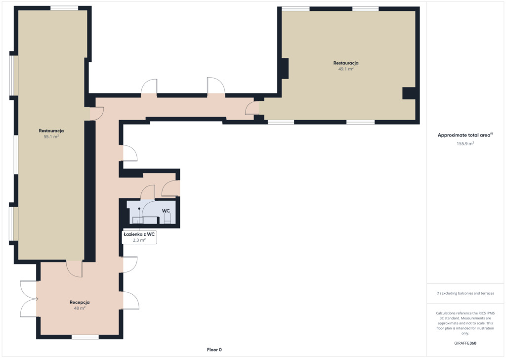
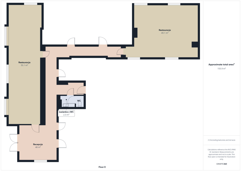
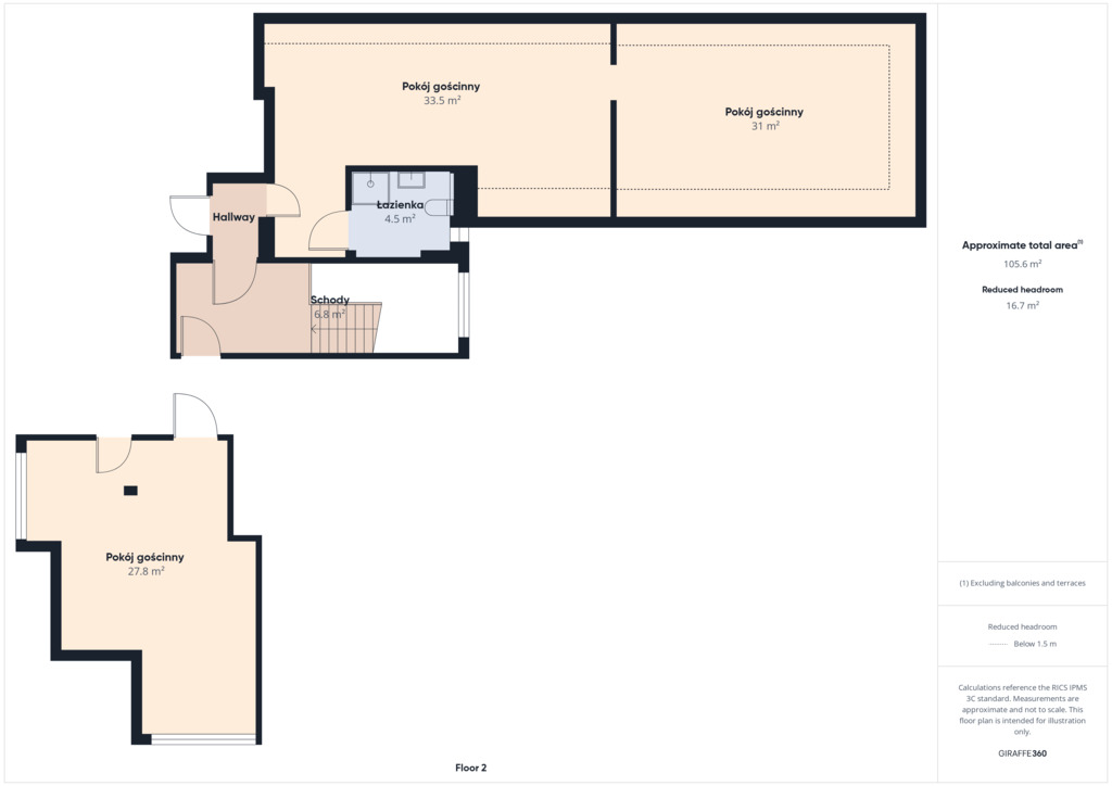
Budynek , który Państwu prezentujemy ma świetną lokalizację  i dlatego jest  to niewątpliwie bardzo ciekawe miejsce i nietuzinkowa propozycja . Budynek, który ma   cztery  poziomy : podpiwniczenie -1, parter 0,  piętro 1 i poddasze 2,   zajmuje centralne miejsce na   dość dużej bo ponad 13 arowej działce.  W  części  hotelowej mieszczą  się   przestronne  pokoje i apartamenty oraz  duża sala  restauracyjna na  30-40 osób ,  trzy sale konferencyjne mogące pomieścić , strefa wellness . Strefa SPA obejmuje - grotę solną , solarium , saunę i gabinet masażu. Wszystkie pokoje  są klimatyzowane i  z   łazienkami. Niektóre dysponują dodatkowo częścią wypoczynkową. Od strony ulicy Słowackiego  mamy wejście główne  z dwoma  tarasami  letnimi ,   a  po bokach i z tyłu hotelu są ciągi komunikacyjne z miejscami parkingowymi  dla 20 samochodów oraz dodatkowe 2 wejścia do budynku  .
Budynek  został  stworzony ze smakiem, z wysokiej jakości materiałów i znajduje się w mieście, które przez cały rok gości turystów z całej Polski i zagranicy. Miejsce idealne do prowadzenia działalności i do wykorzystania na  mieszkania.

Cena ofertowa zbywanej nieruchomości to   4 500 000 PLN

Zapraszam serdecznie na prezentacje i spotkanie w tym uroczym miejscu.
Ponadto istnieje możliwość rozbudowy hotelu .W 2012 roku sprzedający uzyskał warunki  na rozbudowę  budynku   do 2000 m² oraz rozbudowy na działkach 433/1 i 433/2 , które należą  do właściciela hotelu.
Działki  433/1 i 433/2  ,  są również przeznaczone do sprzedaży i  można je wykorzystać na rozbudowę hotelu  lub  pod  inną inwestycję . Według  wypisu z rejestru gruntów działki są oznaczone literą B  jako tereny mieszkaniowe i można na nich budować  budynek wielorodzinny .  Sprzedający posiada WZ z 2021 które dla działek 433/1,433/2  o łącznej powierzchni 962 m² dopuszczają  budowę apartamentowca. Wskaźnik zabudowy dla działek wynosi  WIZ= 0,5  co oznacza, że  powierzchnia zabudowy projektowanego budynku wielorodzinnego może wynieść do 481 m² . Na  życzenie dostępna jest wizualizacja  budynku wielorodzinnego przedstawiona jako propozycja . Jest to budynek  mieszkalny  5 kondygnacji + podziemne garaże z 22 lokalami i , 18 miejsc garażowych, łączna pow. mieszkań: 1148,03m², pow. zabudowy 410 m², pow. użytkowa budynku 1942,46m²; pow. całkowita 2412,53m².

DLACZEGO Z NAMI?
Oferta dostępna wyłącznie u nas a nasi doradcy pomagają w uzyskaniu kredytu.
 
Jesteśmy z Państwem na każdym etapie procesu zakupu nieruchomości począwszy od wyboru oferty i jej prezentacji po finalizację transakcji i przekazanie nieruchomości nowym właścicielom. Pomagamy we wszelkich formalnościach związanych z uzyskaniem kredytu na zakup nieruchomości. Nasz doradca kredytowy bezpłatnie pomoże sprawdzić zdolność kredytową, przedstawi najkorzystniejszą propozycję spośród oferty 21 banków i sprawnie przeprowadzi Państwa przez proces realizacji kredytu.
Serdecznie zapraszam  do kontaktu i na prezentację tej wyjątkowej nieruchomości.
Ryszard Latawiec - Dyr oddziału
Nr. Licencji  - 27130
tel 603 972 656
e-mail:  rlatawiec@polnoc.pl

Niniejsze ogłoszenie nie stanowi oferty w rozumieniu Kodeksu Cywilnego, lecz ma charakter informacyjny.

Przedstawione wizualizacje i grafiki mają charakter wyłącznie poglądowy i stanowią wyłącznie materiał pomocniczy, ułatwiający zorientowanie się w ogólnym wyglądzie oferowanej nieruchomości.

Niniejsze ogłoszenie wraz z jego elementami jest własnością Północ Nieruchomości Sp z o.o. lub podmiotu współpracującego. Wszelkie prawa zastrzeżone. Kopiowanie, rozpowszechnianie oraz korzystanie z niniejszych materiałów w jakikolwiek inny sposób wykraczający poza dozwolony użytek określony przepisami ustawy z 4 lutego 1994 r. o prawie autorskim i prawach pokrewnych (Dz. U. 1994, nr 24 poz. 83 z późn. zm.) bez pisemnej zgody Północ Nieruchomości Sp z o.o. lub podmiotów współpracujących jest zabronione i może stanowić podstawę odpowiedzialności cywilnej oraz karnej.

Niniejsze materiały stanowią tajemnicę przedsiębiorstwa PÓŁNOC NIERUCHOMOŚCI Sp. z o.o. w rozumieniu ustawy z dnia 16 kwietnia 1993 r. o zwalczaniu nieuczciwej konkurencji (Dz. U. z 2003 r., Nr 153, poz. 1503 z późn. zm.).

Mapa

Zapytaj o tę ofertę

Lub zadzwoń