Kontakt
Nr oferty: 1570/3877/OOS

Obiekt inwestycyjny! Nawet 7 oddzielnych mieszkań!

Suszno, ul. Gościniec zobacz na mapie

790 000 PLN

Szczegóły oferty

Cena:
790 000,00 zł
Powierzchnia:
542,00 m2
Powierzchnia działki:
0,49 m2
Cena za m2:
1 457,56 zł
Rynek:
Wtórny
Liczba pięter:
1
Przeznaczenie (obiekt):
Mieszkalne
Rodzaj budynku:
Magazynowo-biurowy
Prąd:
tak
Gaz:
tak
Id oferty:
1570/3877/OOS

Opis

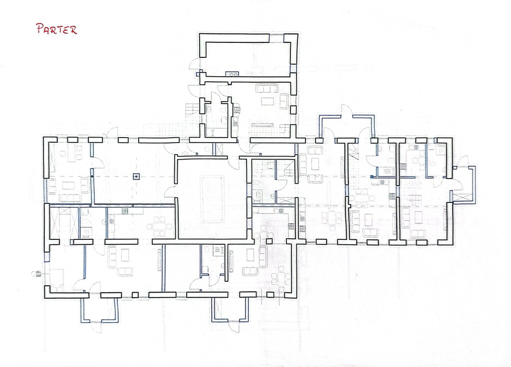
Na sprzedaż wyjątkowy obiekt inwestycyjny!

Ponad 500 m2 do zaadaptowania, działka niecałe 0,5 HA, 2 km od centrum Włodawy!

Działka ma wydaną decyzję o warunkach zabudowy - wpisane "budynek mieszkalny wielorodzinny z dopuszczeniem usług nieuciążliwych..."

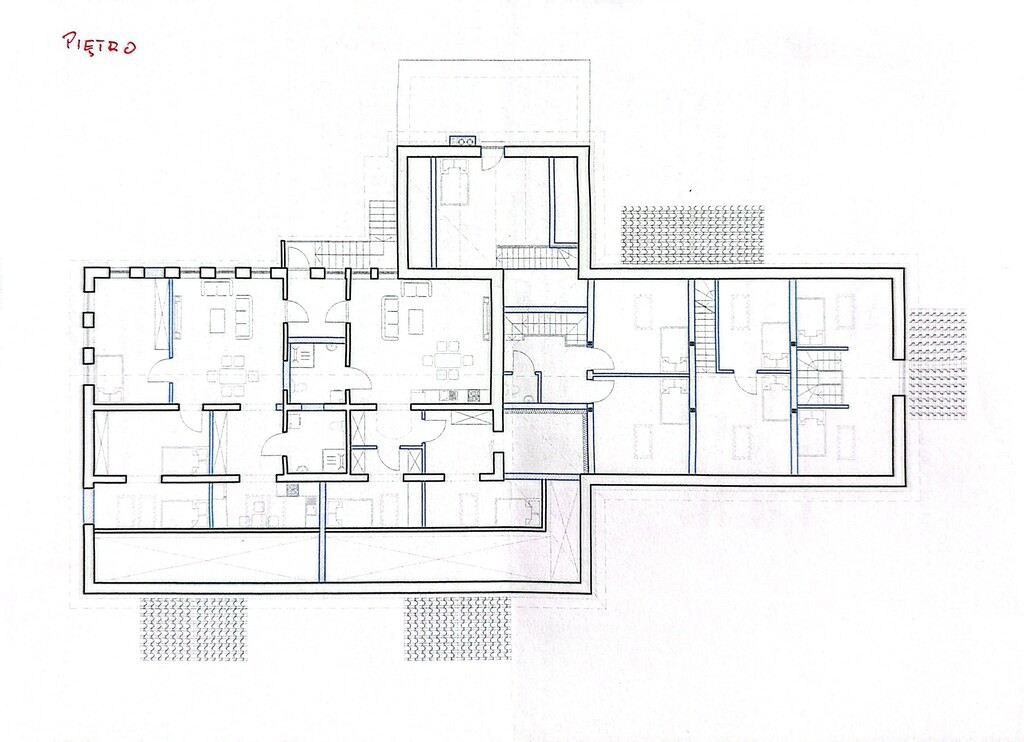
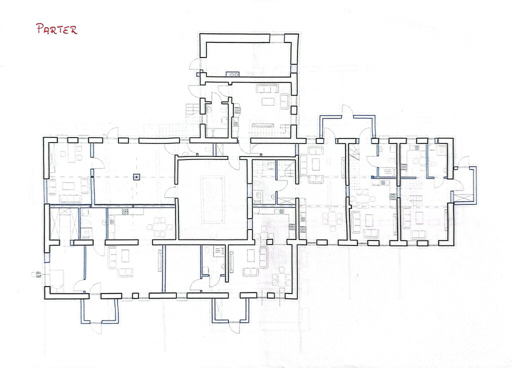
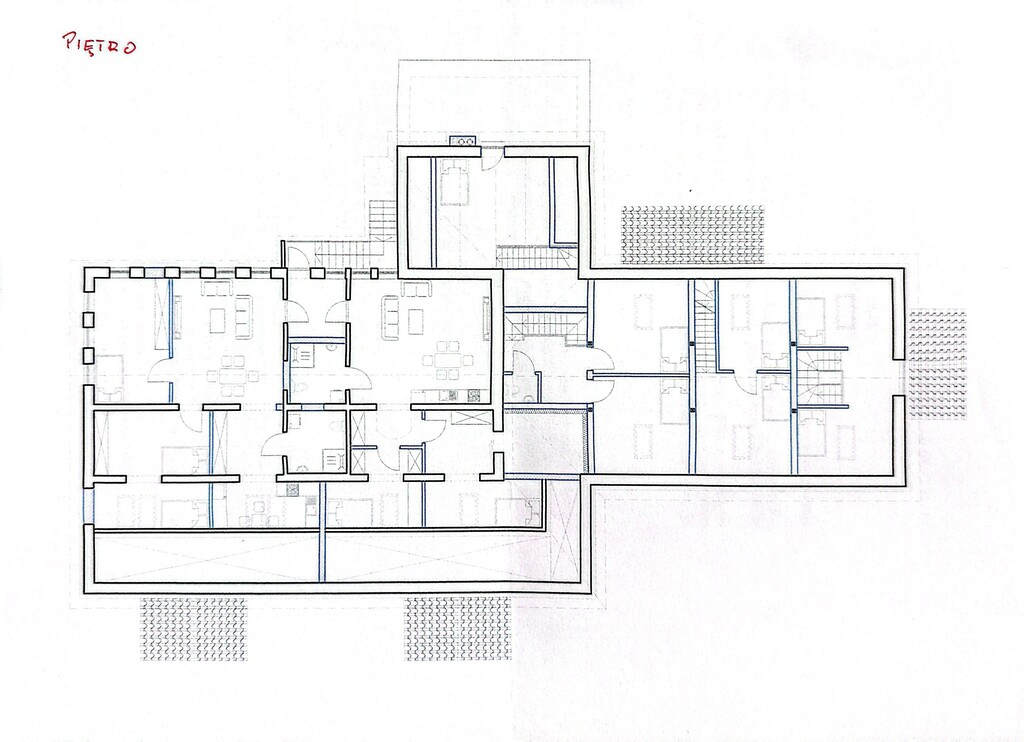
Dodatkowo stworzony jest projekt budowlany, umożliwiający utworzenie 7 oddzielnych mieszkań!

Media:
Do budynku doprowadzona jest woda, prąd, a także GAZ (sugerowana forma ogrzewania budynku).

Lokalizacja:
Nieruchomość położono w miejscowości Suszno, która bezpośrednio przylega od strony północnej do Włodawy. Położona jest przy drodze asfaltowej i oferuje bardzo szybki dojazd do Włodawy.

Stan budynku:
Budynek, ma wymieniony dach, a część działki wyłożona jest kostką. Budynek wymaga remontu i adaptacji wedle wizji inwestora.

Zapraszam do kontaktu i umówienia się na prezentację!

Nie zwlekaj, zadzwoń już teraz!

Jonatan Urban
Doradca ds. nieruchomości
tel. 885 851 148
e-mail: jurban@polnoc.pl
Północ Nieruchomości oddział Chełm

Bezpłatnie pomagamy w formalnościach związanych z uzyskaniem kredytu na zakup nieruchomości. Nasz doradca kredytowy bezpłatnie sprawdzi Twoją zdolność kredytową i przedstawi najlepsze oferty z ponad 10 banków.
 
Posiadasz podobną nieruchomość? Skorzystaj z bezpłatnej konsultacji – odpowiemy na pytania dotyczące ceny, procesu sprzedaży oraz możliwości poprawy atrakcyjności oferty.
 
Oferujemy również:
•⁠  ⁠Pośrednictwo w kupnie, sprzedaży oraz najmie nieruchomości.
•⁠  ⁠Pomoc w sprzedaży nieruchomości o skomplikowanej sytuacji prawnej.
•⁠  ⁠Rzetelne oceny wartości nieruchomości.
 -Uzyskanie świadectwa energetycznego.

Zapraszam na moją stronę internetową: https://jonatan-urban.com/

Niniejsze ogłoszenie nie stanowi oferty w rozumieniu Kodeksu Cywilnego, lecz ma charakter informacyjny.

Przedstawione wizualizacje i grafiki mają charakter wyłącznie poglądowy i stanowią wyłącznie materiał pomocniczy, ułatwiający zorientowanie się w ogólnym wyglądzie oferowanej nieruchomości.

Niniejsze ogłoszenie wraz z jego elementami jest własnością Północ Nieruchomości Sp z o.o. lub podmiotu współpracującego. Wszelkie prawa zastrzeżone. Kopiowanie, rozpowszechnianie oraz korzystanie z niniejszych materiałów w jakikolwiek inny sposób wykraczający poza dozwolony użytek określony przepisami ustawy z 4 lutego 1994 r. o prawie autorskim i prawach pokrewnych (Dz. U. 1994, nr 24 poz. 83 z późn. zm.) bez pisemnej zgody Północ Nieruchomości Sp z o.o. lub podmiotów współpracujących jest zabronione i może stanowić podstawę odpowiedzialności cywilnej oraz karnej.

Niniejsze materiały stanowią tajemnicę przedsiębiorstwa PÓŁNOC NIERUCHOMOŚCI Sp. z o.o. w rozumieniu ustawy z dnia 16 kwietnia 1993 r. o zwalczaniu nieuczciwej konkurencji (Dz. U. z 2003 r., Nr 153, poz. 1503 z późn. zm.).

Mapa

Zapytaj o tę ofertę

Lub zadzwoń