Kontakt
Nr oferty: 42767/3877/ODS

Ostatnie bliźniaki w Bielsku-Białej Kamienicy

Kamienica zobacz na mapie

830 000 PLN

Szczegóły oferty

Cena:
830 000,00 zł
Powierzchnia:
120,00 m2
Cena za m2:
6 916,67 zł
Powierzchnia użytkowa:
120,00 m2
Powierzchnia działki:
300,00 m2
Rok budowy:
2024
Liczba pięter:
2
Liczba pokoi:
4
Stan budynku:
Stan deweloperski
Typ domu:
Bliźniak
Ciepła woda:
tak
Id oferty:
42767/3877/ODS

Opis


Na sprzedaż domy w zabudowie bliźniaczej w jednej z najbardziej prestiżowych i pożądanych  lokalizacji w Bielsk-Białej Kamienicy
W ofercie pozostały tylko dwa budynki  - nowa - niższa - atrakcyjna cena.

UWAGA - kupujący nie płaci prowizji!!

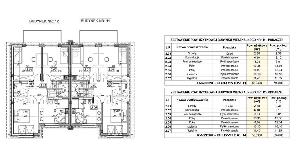
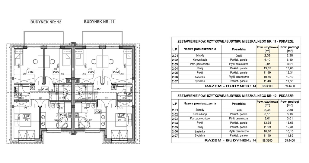
Domy w stanie deweloperskim o powierzchni 120 m2:
PARTER: salon z aneksem kuchennym, łazienka z miejscem na prysznic, pralnia/pomieszczenie gospodarcze, garaż (w bryle budynku)
PIĘTRO: trzy pokoje z podwyższonymi skosami (dzięki czemu pokoje nie tracą na funkcjonalności), garderoba, łazienka (a właściwie salon kąpielowy), 
STRYCH: może spełniać dodatkową funkcję na przechowywanie sezonowych ozdób czy ubrań.
Dodatkowe miejsce parkingowe obok każdego budynku. 

Osiedle jest już częściowo zamieszkałe - obecni lokatorzy podkreślają wysoką jakość robót budowlanych oraz materiałów, z jakich wybudowano budynki.
Domy w zabudowie bliźniaczej z działkami ok.  300 m2.

Czego by nie powiedzieć o lokalizacji tych domów, to broni się sama:
- stok narciarski Dębowiec - 900 m
- kolej linowa na Szyndzielnię - 3 km (5 minut autem)
- obok trasy spacerowe
- trasy rowerowe
- tereny Zapory w Wapienicy
- szkoła tuż obok
- przedszkola
- kościoły
- sklepy małe i duże
- kryty basen
- siłownia
- szybki dojazd do obwodnicy miasta.

Dla ceniących dane techniczne informacje o zastosowanych przy budowie materiałach:
* ściany nośne i zewnętrzne z ceramiki poryzowanej gr. 19 i 25 cm
* ściany działowe z ceramiki poryzowanej gr. 8 i 12 cm
* fundamenty żelbetowe monolityczne
*strop gęstożebrowy monolityczny
*konstrukcja dachu - tradycyjna więźba drewniana; pokrycie dachu - dachówka betonowa
*ocieplenie połaci dachowej w postaci wełny mineralnej gr. 30 cm
*ocieplenie ścian zewnętrznych - styropian gr. 20 cm
*okna PCV w ścianach zewnętrznych o współczynniku Uw poniżej 0,9 [W/m2K] - potrójne szklenie w kolorze antracyt
*elewacja w kolorach pastelowych
* tynki wewnętrzne gipsowe i cementowo-wapienne
* instalacje elektryczne i teletechniczne wewnętrzne bez osprzętu
* instalacje wewnętrzne wod-kan bez białego montażu i armatury czerpalnej
* instalacja c.o. podpodłogowa i grzejnikowa wraz z montażem grzejników
* piec gazowy jednofunkcyjny c.o. i cwu.,
* tynki wewnętrzne, wylewki cementowe
* taras zewnętrzny w podbudowie bez warstwy wykończeniowej. 

Dostępne są już ostatnie 2 budynki w cenie od 830 000 zł !!!
Cena 830 000 zł dotyczy segmentów środkowych.
Budynki zewnętrzne, z większą działką - cena 880 000 zł.

W razie potrzeby pomagamy w pozyskaniu finansowania. 

Zapraszam do obejrzenia domów.

Piotr Strzelecki 
Północ Nieruchomości
534 707 807
pstrzelecki@polnoc.pl

Niniejsze ogłoszenie nie stanowi oferty w rozumieniu Kodeksu Cywilnego, lecz ma charakter informacyjny.

Przedstawione wizualizacje i grafiki mają charakter wyłącznie poglądowy i stanowią wyłącznie materiał pomocniczy, ułatwiający zorientowanie się w ogólnym wyglądzie oferowanej nieruchomości.

Niniejsze ogłoszenie wraz z jego elementami jest własnością Północ Nieruchomości Sp z o.o. lub podmiotu współpracującego. Wszelkie prawa zastrzeżone. Kopiowanie, rozpowszechnianie oraz korzystanie z niniejszych materiałów w jakikolwiek inny sposób wykraczający poza dozwolony użytek określony przepisami ustawy z 4 lutego 1994 r. o prawie autorskim i prawach pokrewnych (Dz. U. 1994, nr 24 poz. 83 z późn. zm.) bez pisemnej zgody Północ Nieruchomości Sp z o.o. lub podmiotów współpracujących jest zabronione i może stanowić podstawę odpowiedzialności cywilnej oraz karnej.

Niniejsze materiały stanowią tajemnicę przedsiębiorstwa PÓŁNOC NIERUCHOMOŚCI Sp. z o.o. w rozumieniu ustawy z dnia 16 kwietnia 1993 r. o zwalczaniu nieuczciwej konkurencji (Dz. U. z 2003 r., Nr 153, poz. 1503 z późn. zm.).

Piotr Strzelecki
Prowadzący ofertę

Piotr Strzelecki

Mobilny doradca ds. nieruchomości - Bielsko-Biała

534 707 807 pstrzelecki@polnoc.pl
Mapa

Zapytaj o tę ofertę

Lub zadzwoń