Kontakt
Nr oferty: 44353/3877/ODS

Nowoczesny dom bliźniak Boleń

Boleń zobacz na mapie

1 449 000 PLN

Szczegóły oferty

Cena:
1 449 000,00 zł
Powierzchnia:
189,00 m2
Cena za m2:
10 000,00 zł
Powierzchnia użytkowa:
143,00 m2
Powierzchnia działki:
450,00 m2
Rok budowy:
2025
Liczba pokoi:
5
Stan budynku:
Do wykończenia
Typ domu:
Bliźniak
Id oferty:
44353/3877/ODS

Opis

Nowoczesny dom w zabudowie bliźniaczej Boleń k. Węgrzc - stan deweloperski

Na sprzedaż segment bliźniaka o powierzchni użytkowej 143 m², z garażem w bryle budynku na działce o powierzchni 4,5 ar.

Cena: 1449 000 zł 

Nieruchomość znajduje się w spokojnej części miejscowości Boleń, w otoczeniu zieleni i nowych domów jednorodzinnych – zaledwie kilka minut od Krakowa.

Termin oddania do użytkowania: listopad / grudzień 2025
Wykonanie przez dewelopera są regipsy i montaż kotłowni. 

Wykonanie domu według nowoczesnego projektu, rozwiązania dotyczące stosowania i licencji publicznej.

Wykonanie standardowe:

  • pustak ceramiczny Wienerberger 25 cm, ocieplenie styropianem 20 cm
  • tynk zewnętrzny silikonowo-akrylowy
  • tynki wewnętrzne gipsowe, w łazienkach cementowo-wapienne
  • ocieplenie poddasza pianą PUR 25 cm, płyta gk
  • dachówka ceramiczna
  • okna PCV trzyszybowe (Oknoplast)
  • drzwi zewnętrzne antywłamaniowe
  • brama garażowa sterowana pilotem 

Instalacje:


  • woda, prąd, gaz, kanalizacja, światłowód, instalacja odgromowa
  • ogrzewanie podłogowe w całym domu
  • część gazowa dwufunkcyjna (kondensacyjna) z ładunkiem na wodę 100 l
  • instalacja wodno-kanalizacyjna, alarmowa, CO, elektryczna, internetowa, TV-SAT, fotowoltaiką i pompą ciepła

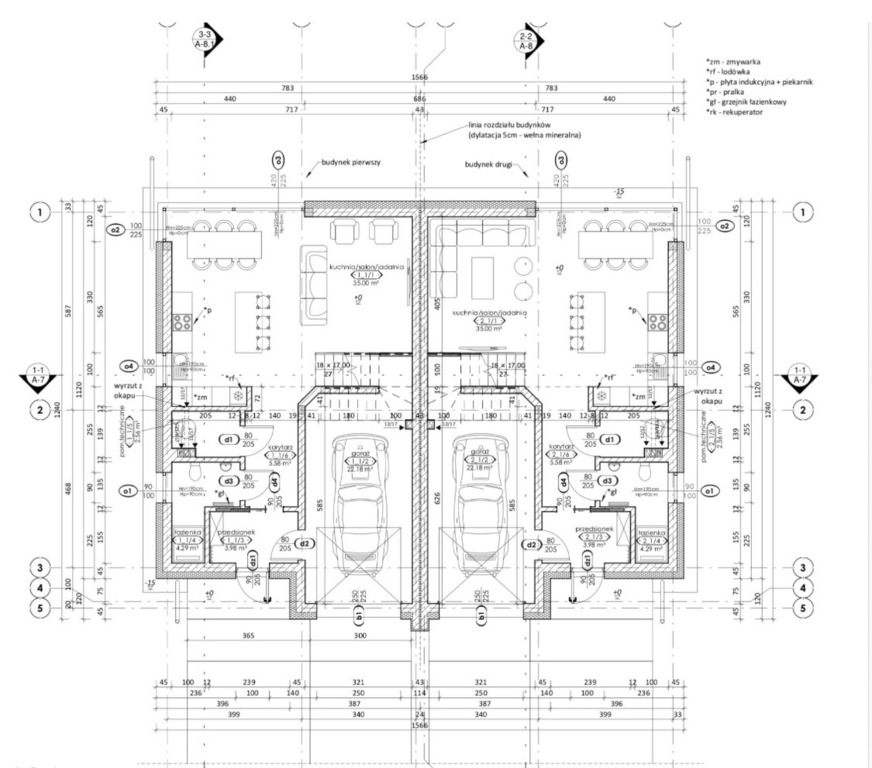
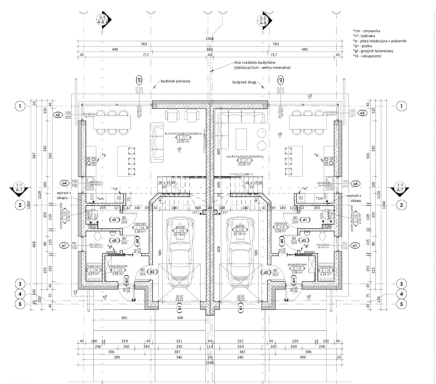
Rozkład:
Parter:

  • Przestrzenny salon z aneksem kuchennym (ok. 35 m²)
  • łazienka
  • wiatrołap i hol
  • garaż 
  • kotłownia

Piętro: 
       • 4 pokoje (ok. 18, 14, 12 i 11 m²)
  • duża łazienka (ok. 7 m²)
  • korytarz 

Schody między kondygnacjami – żelbetowe.


Działka i ustawienie: 

Działka o powierzchni 4,5 - arowa ogrodzona z czterema stronami, o regularnym, prostokątnym.
Podjazd oraz opaska wokół wykonanego budynku kostki z brukowej.
Dojazd do posesji z asfaltowej drogi gminnej – ostatnie 20 metrów drogą o nawierzchni utwardzonej (udział w drodze).


Okolica jest cicha i zielona, idealna do wypoczynku i aktywności na świeżym powietrzu – tereny spacerowe i trasy rowerowe.

Współpracujemy z doświadczonymi doradcami kredytowymi, które stanowią wsparcie w uzyskaniu kredytu na zakup przyszłej nieruchomości. 

Zapraszamy do spotkań i prezentacji:

Małgorzata Bębenek
PÓŁNOC Nieruchomości
+48 665 810 476
mbebenek@polnoc.pl www.polnoc.pl


Od 25 maja 2018 r. stosujemy RODO – nowe przepisy UE o ochronie danych
osobowych. Nie trzeba kontaktować się w tej sprawie, ani
ocena oceny oświadczeń. Informacje o tym, jak przetwarzamy Twoje dane
osobowe pod linkiem: Polityka Prywatności



Niniejsze ogłoszenie nie stanowi oferty w rozumieniu Kodeksu Cywilnego, lecz ma charakter informacyjny.

Przedstawione wizualizacje i grafiki mają charakter wyłącznie poglądowy i stanowią wyłącznie materiał pomocniczy, ułatwiający zorientowanie się w ogólnym wyglądzie oferowanej nieruchomości.

Niniejsze ogłoszenie wraz z jego elementami jest własnością Północ Nieruchomości Sp z o.o. lub podmiotu współpracującego. Wszelkie prawa zastrzeżone. Kopiowanie, rozpowszechnianie oraz korzystanie z niniejszych materiałów w jakikolwiek inny sposób wykraczający poza dozwolony użytek określony przepisami ustawy z 4 lutego 1994 r. o prawie autorskim i prawach pokrewnych (Dz. U. 1994, nr 24 poz. 83 z późn. zm.) bez pisemnej zgody Północ Nieruchomości Sp z o.o. lub podmiotów współpracujących jest zabronione i może stanowić podstawę odpowiedzialności cywilnej oraz karnej.

Niniejsze materiały stanowią tajemnicę przedsiębiorstwa PÓŁNOC NIERUCHOMOŚCI Sp. z o.o. w rozumieniu ustawy z dnia 16 kwietnia 1993 r. o zwalczaniu nieuczciwej konkurencji (Dz. U. z 2003 r., Nr 153, poz. 1503 z późn. zm.).

Mapa

Zapytaj o tę ofertę

Lub zadzwoń