Kontakt
Nr oferty: 43537/3877/ODS

Dom bliźniak / Wrocław

Cesarzowice zobacz na mapie

1 590 000 PLN

Szczegóły oferty

Cena:
1 590 000,00 zł
Powierzchnia:
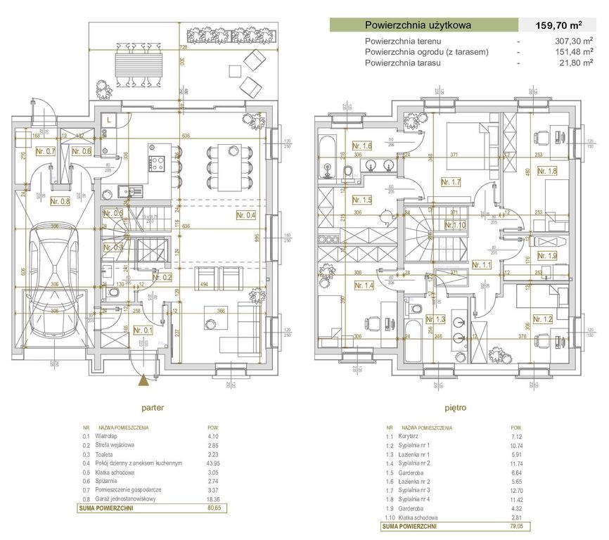
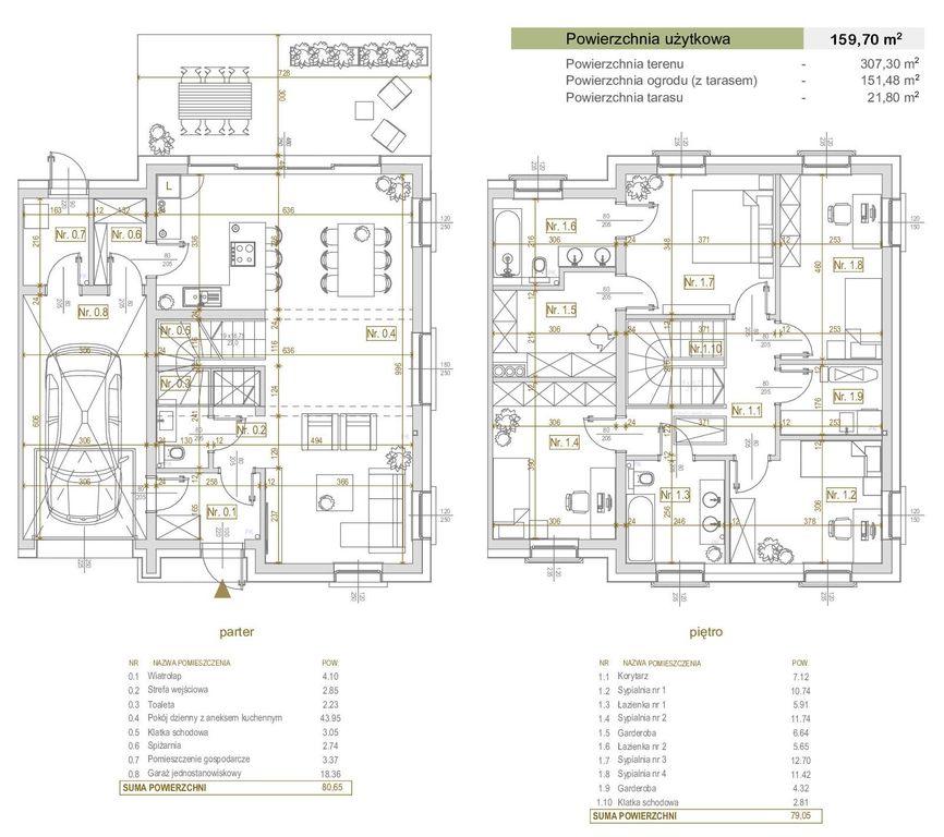
159,70 m2
Cena za m2:
9 956,17 zł
Powierzchnia działki:
307,30 m2
Rok budowy:
2023
Liczba pięter:
1
Liczba pokoi:
5
Stan budynku:
Stan deweloperski
Typ domu:
Bliźniak
Ciepła woda:
tak
Id oferty:
43537/3877/ODS

Opis

CO SPRZEDAJEMY?
Ekskluzywny dom jednorodzinny w zabudowie bliźniaczej o powierzchni użytkowej 159,7 m2 położony na działce o powierzchni 307,3 m2. w nowopowstającej inwestycji deweloperskiej na obrzeżach Wrocławia.


BEZ PROWIZJI OD KLIENTA KUPUJĄCEGO!

GDZIE ZNAJDUJE SIĘ DOM?
Dom znajduje się w nowopowstającej inwestycji deweloperskiej na zachodnich obrzeżach Wrocławia.
Okolica jest cicha i spokojna. Taki dom to idealna alternatywa dla mieszkania w gwarnym mieście.

JAKI JEST STANDARD?
Dom jest do kupienia w stanie deweloperskim o podwyższonym standardzie. 
Dom posiada własny ogród o powierzchni przeszło 150 m2 wraz z tarasem (21 m2).

Z JAKICH POMIESZCZEŃ SIĘ SKŁADA?
Dom jest dwukondygnacyjny:
PARTER
- salon z aneksem kuchennym (43,95 mkw.),
- toaleta (2,23 mkw.),
- pomieszczenie gospodarcze (2,62 mkw.),
- spiżarnia (2,74 mkw.),
- przedpokój (2,85 mkw.),
- wiatrołap (4,10 mkw.),
- klatka schodowa (3,05 mkw.),
- garaż (18,36 mkw.).

PIĘTRO
- 4 sypialnie (10,74 mkw., 11,74 mkw., 12,70 mkw., 11,42 mkw.),
- 2 łazienki (5,91 mkw., 5,65 mkw.),
- 2 garderoby (4,32 mkw., 6,64 mkw.),
- korytarz (7,12 mkw.),
- klatka schodowa (2,81 mkw.).

JAKIE SĄ UDOGODNIENIA?
Dom znajduje się na osiedlu tworzonym przez kompleks kameralnych, nowoczesnych domów o podwyższonym standardzie.
Dom posiada spory ogród zarówno z przodu jak i z tyłu.

CO ZNAJDUJE SIĘ W NAJBLIŻSZYM OTOCZENIU?
- sklepy
- szkoła
- restauracje
- wjazd na AOW

Zapraszam na prezentację.

BEZPŁATNIE pomagamy w uzyskaniu najkorzystniejszego kredytu na zakup nieruchomości.

Adam Wnuk
PÓŁNOC Nieruchomości Wrocław Armii Krajowej
50-541 Wrocław, Aleja Armii Krajowej 6b lokal 5
tel: +48 603 562 281
e-mail: awnuk@polnoc.pl

Niniejsze ogłoszenie nie stanowi oferty w rozumieniu Kodeksu Cywilnego, lecz ma charakter informacyjny.

Przedstawione wizualizacje i grafiki mają charakter wyłącznie poglądowy i stanowią wyłącznie materiał pomocniczy, ułatwiający zorientowanie się w ogólnym wyglądzie oferowanej nieruchomości.

Niniejsze ogłoszenie wraz z jego elementami jest własnością Północ Nieruchomości Sp z o.o. lub podmiotu współpracującego. Wszelkie prawa zastrzeżone. Kopiowanie, rozpowszechnianie oraz korzystanie z niniejszych materiałów w jakikolwiek inny sposób wykraczający poza dozwolony użytek określony przepisami ustawy z 4 lutego 1994 r. o prawie autorskim i prawach pokrewnych (Dz. U. 1994, nr 24 poz. 83 z późn. zm.) bez pisemnej zgody Północ Nieruchomości Sp z o.o. lub podmiotów współpracujących jest zabronione i może stanowić podstawę odpowiedzialności cywilnej oraz karnej.

Niniejsze materiały stanowią tajemnicę przedsiębiorstwa PÓŁNOC NIERUCHOMOŚCI Sp. z o.o. w rozumieniu ustawy z dnia 16 kwietnia 1993 r. o zwalczaniu nieuczciwej konkurencji (Dz. U. z 2003 r., Nr 153, poz. 1503 z późn. zm.).

Mapa

Zapytaj o tę ofertę

Lub zadzwoń