Kontakt
Nr oferty: 125552/3877/OMS

Mieszkanie / 3 pokoje / 53,9 m2 / Inwestycja

Wrocław, al. Karkonoska zobacz na mapie

764 905 PLN

Szczegóły oferty

Cena:
764 905,00 zł
Powierzchnia:
53,90 m2
Cena za m2:
14 191,19 zł
Rok budowy:
2026
Liczba pięter:
8
Piętro:
8
Garaż/Miejsca parkingowe:
tak
Rynek:
Pierwotny
Rodzaj budynku:
Budynek apartamentowy
Liczba pokoi:
3
Id oferty:
125552/3877/OMS

Opis

CO SPRZEDAJEMY?
Przestronne trzypokojowe mieszkanie na ósmym piętrze w nowopowstającym ośmiopiętrowym apartamantowym budyku w dobrze skomunikowanej części Wrocławia.

BEZ PROWIZJI OD KLIENTA KUPUJĄCEGO!

GDZIE ZNAJDUJE SIĘ MIESZKANIE?

Położone jest w doskonale skomunikowanej części miasta przy al. Karkonoskiej, która zapewnia bardzo prosty doajzd do centrum Wocławia jak i poza miasto. Inwestycja powstaje na osiedlu Krzyki-Partynice na granicy Kleciny, Ołtaszyna i Wojszyc. W bliskiej okolicy znajdują się liczne sklepy, szkoły, przychodnia, aptek oraz różnorodne usługi, a także tereny zielone i miejsca rekreacji - Park Kleciński i Tor Wyścigów Konnych.

JAKI JEST STANDARD?

Mieszkanie jest sprzedawane w stanie deweloperskim. 
Do mieszkania przynależy duży balkon o powierzchni ok. 6 m2. 
Cała inwestycja jest nowoczesna, zrealizowana w wysokim standardzie wykończenia wraz z zastosowaniem rozwiązań smart home. 
W budynku będzie łącznie 150 mieszkań na 8 piętrach w dwóch budynkach o powierzchni od 38 do 91 m2.
Do dyspozycji mieszkańców będą miejsca w garażu podziemnym.
- pojedyncze miejsce postojowe - 25 000 PLN
- podwójne miejsce postojowe - 39 900 PLN

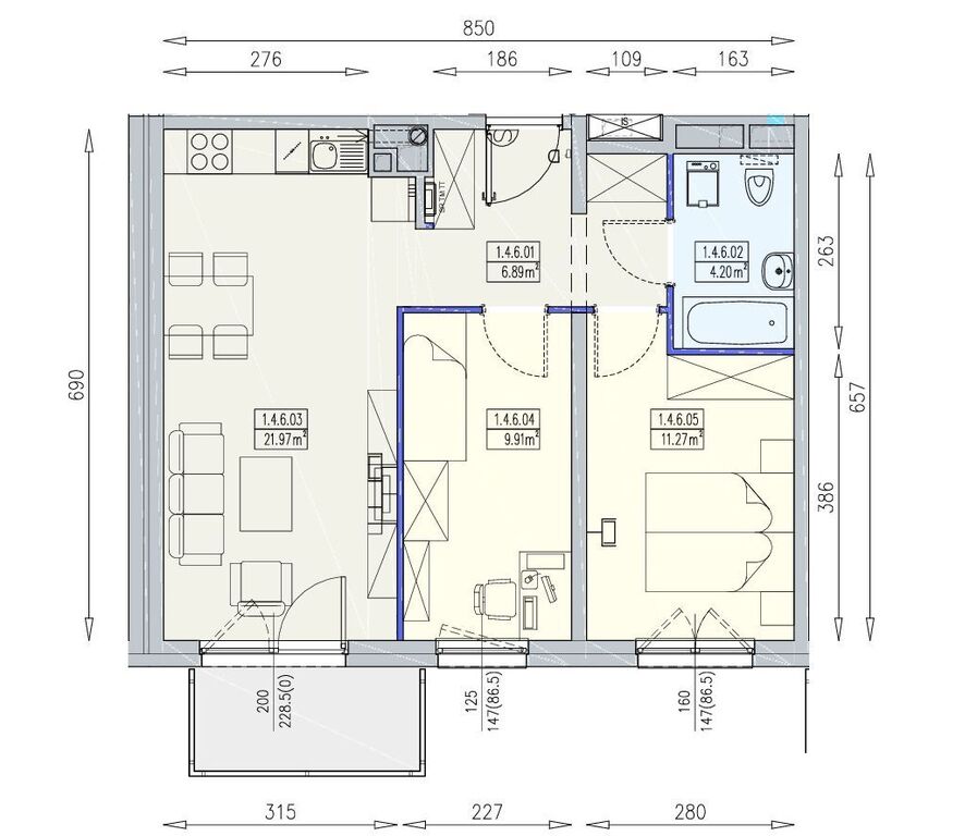
Z JAKICH POMIESZCZEŃ SIĘ SKŁADA?
- pokój dzienny z aneksem kuchennym (21,33 m2)
- pokój 1 (9,9 m2)
- pokój 2 (11,27 m2)
- przedpokój (7,2 m2)
- łazienka z WC (4,10 m2)

- balkon o pow. ok. 6 m2


CO ZNAJDUJE SIĘ W NAJBLIŻSZYM OTOCZENIU?

- przystanki tramwajowe (7, 17) i autobusowe (113, 602, 612)
- Bielany Wrocławskie (4700 m)
- Rynek Wrocławia (6500 m)
- Auchan (3800 m)

Oddanie inwestycji do użytku planowane jest na II kw. 2026 r. 

Zapraszam na prezentację.


BEZPŁATNIE pomagamy w uzyskaniu najkorzystniejszego kredytu na zakup nieruchomości.


Adam Wnuk
PÓŁNOC Nieruchomości Wrocław Armii Krajowej
50-541 Wrocław, Aleja Armii Krajowej 6b lokal 5
tel: +48 603 562 281
e-mail: awnuk@polnoc.pl

Niniejsze ogłoszenie nie stanowi oferty w rozumieniu Kodeksu Cywilnego, lecz ma charakter informacyjny.

Przedstawione wizualizacje i grafiki mają charakter wyłącznie poglądowy i stanowią wyłącznie materiał pomocniczy, ułatwiający zorientowanie się w ogólnym wyglądzie oferowanej nieruchomości.

Niniejsze ogłoszenie wraz z jego elementami jest własnością Północ Nieruchomości Sp z o.o. lub podmiotu współpracującego. Wszelkie prawa zastrzeżone. Kopiowanie, rozpowszechnianie oraz korzystanie z niniejszych materiałów w jakikolwiek inny sposób wykraczający poza dozwolony użytek określony przepisami ustawy z 4 lutego 1994 r. o prawie autorskim i prawach pokrewnych (Dz. U. 1994, nr 24 poz. 83 z późn. zm.) bez pisemnej zgody Północ Nieruchomości Sp z o.o. lub podmiotów współpracujących jest zabronione i może stanowić podstawę odpowiedzialności cywilnej oraz karnej.

Niniejsze materiały stanowią tajemnicę przedsiębiorstwa PÓŁNOC NIERUCHOMOŚCI Sp. z o.o. w rozumieniu ustawy z dnia 16 kwietnia 1993 r. o zwalczaniu nieuczciwej konkurencji (Dz. U. z 2003 r., Nr 153, poz. 1503 z późn. zm.).

Mapa

Zapytaj o tę ofertę

Lub zadzwoń