Kontakt

Dom w Malowniczej Okolicy Jezior!

Stary Orzechów zobacz na mapie

210 000 PLN

Cena:
210 000,00 zł
Powierzchnia:
93,00 m2
Cena za m2:
2 258,06 zł
Powierzchnia użytkowa:
72,03 m2
Powierzchnia działki:
900,00 m2
Rok budowy:
1988
Liczba pięter:
1
Liczba pokoi:
3
Stan budynku:
Surowy zamknięty
Typ domu:
Wolnostojący
Id oferty:
42514/3877/ODS
Opis
Na sprzedaż przestronny dom położony w urokliwej okolicy, zaledwie kilka kroków od pięknych jezior.

Marzysz o własnym domu z dala od miejskiego zgiełku, otoczonym naturą? Ta oferta jest właśnie dla Ciebie!

Oferuję na sprzedaż dom o powierzchni użytkowej 72,03m² położony na działce o powierzchni 900m² w Orzechowie Starym, gmina Sosnowica, powiat parczewski, województwo lubelskie.
 
Nieruchomość znajduje się w wyjątkowo atrakcyjnej lokalizacji, w otoczeniu lasów oraz jezior Tomaszne i Skomielno, blisko Rezerwatu Przyrody Torfowisko przy Jeziorze Czarnym, Zagłębocze i Krasnym.

Atuty nieruchomości:

* Lokalizacja: Nieruchomość położona 23,9km od Parczewa, 34,5km od Lubartowa, 44,1km od Włodawy i 48km od Jeziora Białego w Okunince oraz 48,7km od Lublina.
* Idealne miejsce dla osób ceniących sobie wypoczynek na łonie natury.
* Działka: Przestronna o regularnym kształcie, dająca wiele możliwości zagospodarowania.
* Potencjał: Dom wymaga wykończenia, co daje nowemu właścicielowi możliwość adaptacji wnętrz według własnych potrzeb.
* Otoczenie tworzą jeziora, lasy, rezerwat przyrody – to wszystko w zasięgu ręki.
* dom posiada podpiwniczenie oraz poddasze użytkowe


Parametry nieruchomości:

- Powierzchnia działki: 900m²
- Powierzchnia użytkowa domu: 72,03m²
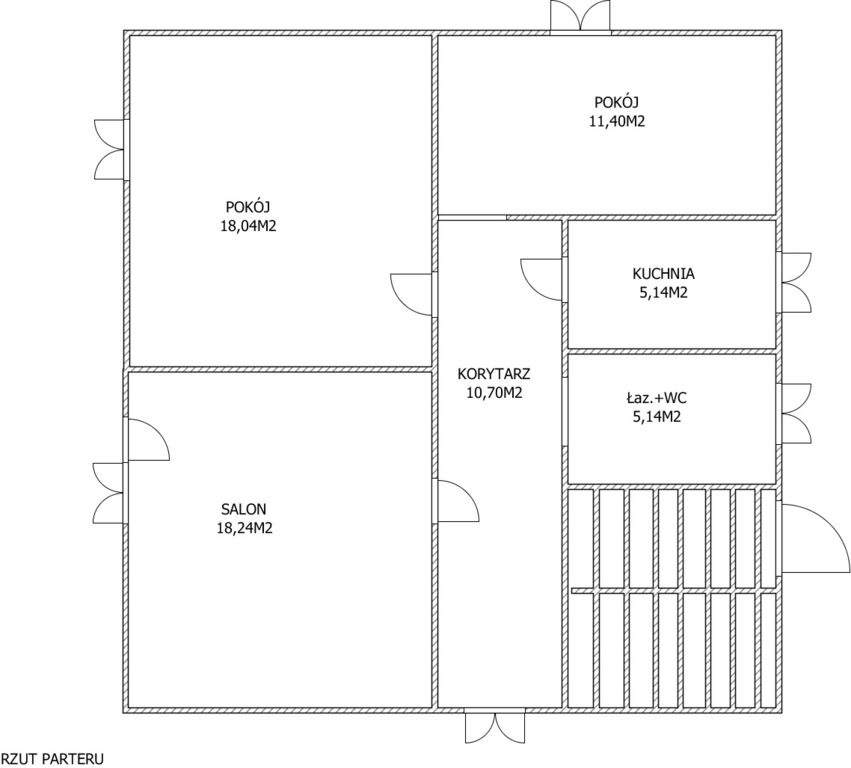
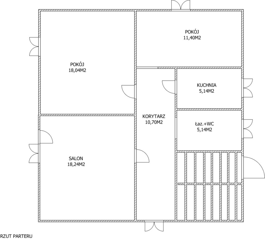
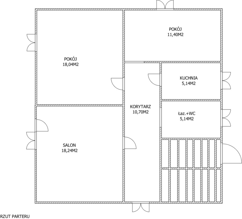
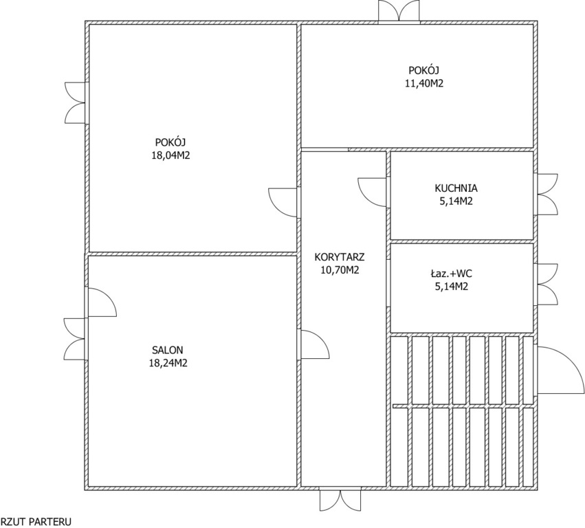
- Liczba pokoi: 3 (salon z balkonem i 2 pokoje), oddzielna kuchnia i łazienka
- Materiał domu: cegła
- Dach: eternit
- Media: woda, prąd, szambo - do wykonania
- Dodatkowa przestrzeń: podpiwniczenie pod częścią budynku, poddasze użytkowe.
- Nieruchomość z bezpośrednim dostępem do drogi asfaltowej


To doskonała oferta dla osób szukających nieruchomości z dużym potencjałem, w spokojnej i malowniczej okolicy.

Nie czekaj, umów się na prezentację bo dobre inwestycje, w dobrych lokalizacjach sprzedają się szybko.

Pomagamy w formalnościach związanych z uzyskaniem kredytu na zakup nieruchomości.
Nasz doradca kredytowy bezpłatnie pomoże Ci sprawdzić zdolność kredytową i przedstawi najkorzystniejszą ofertę z ponad 10 banków!

Posiadasz podobną nieruchomość? Zadzwoń i skorzystaj z bezpłatnej konsultacji, gdzie odpowiem na pytania dotyczące Twojej nieruchomości, jej ceny oraz procesu sprzedaży.


Nie zwlekaj, zadzwoń już teraz!
 
Edyta Bancerz
Doradca ds. nieruchomości
tel. 885 851 158
e-mail: ebancerz@polnoc.pl
Północ Nieruchomości oddział Biała Podlaska

Niniejsze ogłoszenie nie stanowi oferty w rozumieniu Kodeksu Cywilnego, lecz ma charakter informacyjny.

Przedstawione wizualizacje i grafiki mają charakter wyłącznie poglądowy i stanowią wyłącznie materiał pomocniczy, ułatwiający zorientowanie się w ogólnym wyglądzie oferowanej nieruchomości.

Niniejsze ogłoszenie wraz z jego elementami jest własnością Północ Nieruchomości Sp z o.o. lub podmiotu współpracującego. Wszelkie prawa zastrzeżone. Kopiowanie, rozpowszechnianie oraz korzystanie z niniejszych materiałów w jakikolwiek inny sposób wykraczający poza dozwolony użytek określony przepisami ustawy z 4 lutego 1994 r. o prawie autorskim i prawach pokrewnych (Dz. U. 1994, nr 24 poz. 83 z późn. zm.) bez pisemnej zgody Północ Nieruchomości Sp z o.o. lub podmiotów współpracujących jest zabronione i może stanowić podstawę odpowiedzialności cywilnej oraz karnej.

Niniejsze materiały stanowią tajemnicę przedsiębiorstwa PÓŁNOC NIERUCHOMOŚCI Sp. z o.o. w rozumieniu ustawy z dnia 16 kwietnia 1993 r. o zwalczaniu nieuczciwej konkurencji (Dz. U. z 2003 r., Nr 153, poz. 1503 z późn. zm.).

Mapa

Zapytaj o tę ofertę

Lub zadzwoń