Kontakt
Nr oferty: 42496/3877/ODS

Nowa Inwestycja. Nowoczesny dom z garażem!

Hrubieszów, ul. Lipowa zobacz na mapie

565 000 PLN

Szczegóły oferty

Cena:
565 000,00 zł
Powierzchnia:
111,40 m2
Cena za m2:
5 071,81 zł
Powierzchnia użytkowa:
111,40 m2
Powierzchnia działki:
500,00 m2
Rok budowy:
2024
Liczba pięter:
1
Liczba pokoi:
4
Stan budynku:
Stan deweloperski
Typ domu:
Bliźniak
Ciepła woda:
tak
Id oferty:
42496/3877/ODS

Opis

Zapraszamy do zapoznania się z ofertą sprzedaży 6 nowych domów w zabudowie bliźniaczej.  6 mieszkań w stanie deweloperskim o powierzchni 111 m2 z garażami i ogrodami - idealnych dla rodzin lub osób poszukujących komfortowej przestrzeni w spokojnej okolicy!

Inwestycja znajduje się w Hrubieszowie w dzielnicy Lipice, pomiędzy ulicami Świerkową oraz Lipową, w sąsiedztwie niskiej zabudowy jednorodzinnej oraz miejskiej przestrzeni rekreacyjnej. 

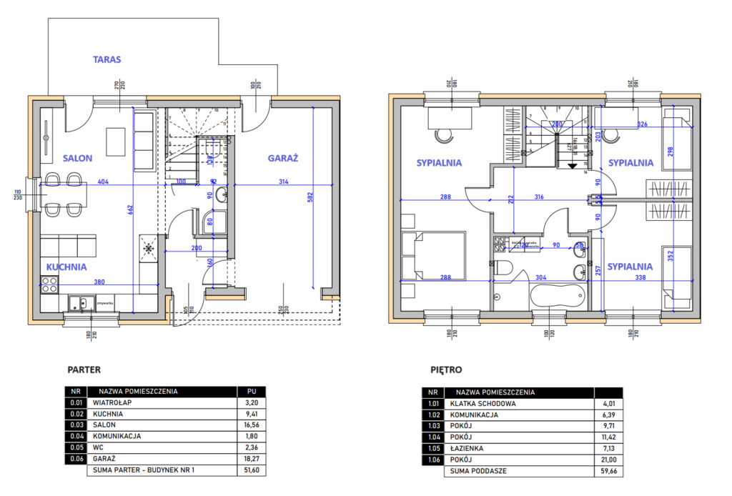
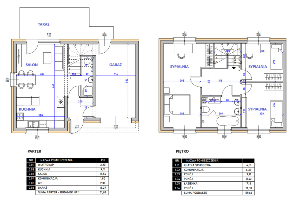
 Powierzchnia: 111m² 

- 51,6m2 parter + 59,6m2  piętro

Parter: garaż, salon z kuchnią, wc, korytarz i klatka schodowa.
Piętro: 3 sypialnie i rodzinna łazienka.

 Powierzchnia działki:

Budynek 1  - 409 m2  (REZERWACJA)
Budynek 2 - 350 m2 
Budynek 3 - 352 m2
Budynek 4 - 427 m2 (SPRZEDANY) 
Budynek 5 - 429 m2  (SPRZEDANY) 
Budynek 6 - 416 m2 (SPRZEDANY) 
Do budynków prowadzi wygodna, utwardzona droga wewnętrzna.

Liczba Pokoi: 4
Łazienka: 2
Kuchnia: otwarta na salon 
Ogród: idealny na letnie spotkania rodzinne i relaks na świeżym powietrzu z widokiem na zieleń. Spory metraż umożliwia urządzenie ogródka, rabat czy przestrzeni do zabaw dla dzieci. 
Garaż: Jednostanowiskowy w bryle budynku. Nowoczesna brama.  Znajdziemy w nim również wydzieloną część techniczną z uzdatniaczem wody oraz piecem gazowym.  
Miejsce Parkingowe: Dedykowane miejsce parkingowe przed budynkiem.  

Udogodnienia:

·       Mieszkania bezczynszowe
·       Nowoczesny piec gazowy z 1 zasobnikiem, zewnętrznym czujnikiem pogodowym i sterownikiem
·       Ogrzewanie podłogowe na parterze. Grzejniki na piętrze
·       Wentylacja w każdym pomieszczeniu
·       Zamknięte osiedle 
·       Planowany domofon/wideofon na wjeździe/wejściu na posesję (instalacje gotowe do podłączenia)
·       Miejsce postojowe 
·       Instalacja przystosowana  w razie potrzeby pod fotowoltaikę i pompę ciepła
·       Udział wszystkich mieszkańców w drodze dojazdowej na posesji
·       Wszystkie posesje są ogrodzone
·       Spokojna okolica. 

Cechy Mieszkania:

* Funkcjonalny układ pomieszczeń zapewniający wygodę i komfort dla całej rodziny.
* Duże okna w nowoczesnym stylu doskonale doświetlają wszystkie pokoje.
* Na ścianach wewnętrznych gotowe tynki.
* Część dzienna z bezpośrednim wyjściem przez przeszklone drzwi typu HS na taras. 
* Przestronne i jasne wnętrza w stanie deweloperskim umożliwiają  zaprojektowanie przestrzeni w indywidualnym stylu.
* Dogodna lokalizacja zapewniająca łatwy dostęp do sklepów, szkół, przedszkoli oraz terenów rekreacyjnych i usług.
* Spokojne sąsiedztwo, idealne dla osób ceniących sobie ciszę i bezpieczeństwo.
* Otoczenie to otwarta przestrzeń i zabudowania jednorodzinne. Do działki przylega również teren miejski - zadbana przestrzeń rekreacyjna z terenem spacerowym, boiskiem i placem zabaw.

Media:
- kanalizacja
- wodociąg
- gaz ziemny
- energia elektryczna
- światłowód

Cena: 565 000zł

Chcesz zobaczyć nieruchomość już teraz? Zadzwoń lub napisz do mnie, a udostępnię Ci link do wirtualnego spaceru!
 
Skontaktuj się ze mną, aby umówić się na prezentację lub uzyskać więcej informacji.
Serdecznie zapraszam!

Pomagamy w formalnościach związanych z uzyskaniem kredytu na zakup nieruchomości.
Nasz doradca kredytowy bezpłatnie pomoże Ci sprawdzić zdolność kredytową i przedstawi najkorzystniejszą ofertę z ponad 10 banków!
Posiadasz podobną nieruchomość? Zadzwoń i skorzystaj z bezpłatnej konsultacji, gdzie odpowiem na pytania dotyczące Twojej nieruchomości, jej ceny oraz procesu sprzedaży.
Nie zwlekaj, zadzwoń już teraz!



Justyna Łagoda 
Tel. 665 750 080

Północ nieruchomości Zamość
ul. Żeromskiego 3
22- 400 Zamość
 

Niniejsze ogłoszenie nie stanowi oferty w rozumieniu Kodeksu Cywilnego, lecz ma charakter informacyjny.

Przedstawione wizualizacje i grafiki mają charakter wyłącznie poglądowy i stanowią wyłącznie materiał pomocniczy, ułatwiający zorientowanie się w ogólnym wyglądzie oferowanej nieruchomości.

Niniejsze ogłoszenie wraz z jego elementami jest własnością Północ Nieruchomości Sp z o.o. lub podmiotu współpracującego. Wszelkie prawa zastrzeżone. Kopiowanie, rozpowszechnianie oraz korzystanie z niniejszych materiałów w jakikolwiek inny sposób wykraczający poza dozwolony użytek określony przepisami ustawy z 4 lutego 1994 r. o prawie autorskim i prawach pokrewnych (Dz. U. 1994, nr 24 poz. 83 z późn. zm.) bez pisemnej zgody Północ Nieruchomości Sp z o.o. lub podmiotów współpracujących jest zabronione i może stanowić podstawę odpowiedzialności cywilnej oraz karnej.

Niniejsze materiały stanowią tajemnicę przedsiębiorstwa PÓŁNOC NIERUCHOMOŚCI Sp. z o.o. w rozumieniu ustawy z dnia 16 kwietnia 1993 r. o zwalczaniu nieuczciwej konkurencji (Dz. U. z 2003 r., Nr 153, poz. 1503 z późn. zm.).

Mapa

Zapytaj o tę ofertę

Lub zadzwoń