Kontakt
Nr oferty: 44599/3877/ODS

Segment, 5 pokoi- 150m2, Węglin

Węglin zobacz na mapie

799 000 PLN

Szczegóły oferty

Cena:
799 000,00 zł
Powierzchnia:
149,70 m2
Cena za m2:
5 337,34 zł
Powierzchnia użytkowa:
149,70 m2
Powierzchnia działki:
230,00 m2
Rok budowy:
1990
Liczba pięter:
2
Liczba pokoi:
5
Stan budynku:
Do wykończenia
Typ domu:
Segment
Id oferty:
44599/3877/ODS

Opis

Sprzedam segment o powierzchni 149,70 m2 położony w dzielnicy Węglin w Lublinie.
Dom doprowadzony do stanu deweloperskiego- do wykończenia.

Dom przeszedł gruntowny remont. Prace które zostały wykonane to między innymi:

  • Wymienione okna
  • Nowa elektryka
  • Tynki na parterze
  • Nowa instalacja wodna i kanalizacyjna na parterze
  • instalacja gazowa pod kocioł gazowy (kocioł dwufunkcyjny Junkers w cenie)
  • Tynk w łazienkach na piętrach
  • Ogrzewanie podłogowe na parterze
  • Nowe grzejniki stalowe na piętrach
  • Posadzka z mixokreta na parterze
  • Uzupełnione ubytki po elektryku na piętrach
  • Obrobione glify okien
  • Sufit w salonie na parterze
  • Zbudowany taras z płyt tarasowych od strony ogrodu
  • Nowa izolacja fundamentów
  • Nowa elewacja wraz z dociepleniem (styropian 15 cm, tynk silikonowy w kolorze sąsiedniego budynku)
  • Ogrodzenie pomiędzy działkami
  • Ogród obsiany trawą
  • Podjazd i ogrodzenie(bez bramy wjazdowej)

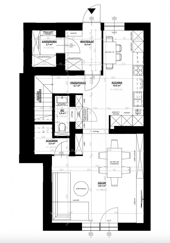
Rozkład pomieszczeń:

PARTER
- pomieszczenie gospodarcze dostępne z zewnątrz budynku 2,7m2,
- wiatrołap 4,5 m2,
- przedpokój 6,7 m2,
- kuchnia 10,8 m2,
- salon z wyjściem na ogródek 23,1 m2,
- schowek 2,5 m2,
- toaleta 1,8 m2.

KONDYGNACJA 1
- klatka schodowa 8,3 m2,
- przedpokój 3,9 m2,
- pokój 11,8 m2,
- pokój 23,0 m2,
- łazienka 4,1 m2.

KONDYGNACJA 2
- przedpokój 3,6 m2,
- pokój 23,0 m2,
- pokój 12.0 m2 z dostępem do schowka 4,3 m2,
- łazienka 3,0 m2.

Przed lokalem możliwość parkowania 2 aut(jest miejsce aby postawić wiatę/carport na jedno auto).

Kanalizacja miejska.
Ogrzewanie i ciepła woda użytkowa z gazowego pieca dwufunkcyjnego.

Sprzedawany lokal jako odrębna własność z oddzielną księgą wieczystą, udział w działce(powierzchnia działki przynależnej do lokalu około 230m2.

Zapraszam na prezentację.
Marcin Stępniak 571-241-152


Niniejsze ogłoszenie nie stanowi oferty w rozumieniu Kodeksu Cywilnego, lecz ma charakter informacyjny.

Przedstawione wizualizacje i grafiki mają charakter wyłącznie poglądowy i stanowią wyłącznie materiał pomocniczy, ułatwiający zorientowanie się w ogólnym wyglądzie oferowanej nieruchomości.

Niniejsze ogłoszenie wraz z jego elementami jest własnością Północ Nieruchomości Sp z o.o. lub podmiotu współpracującego. Wszelkie prawa zastrzeżone. Kopiowanie, rozpowszechnianie oraz korzystanie z niniejszych materiałów w jakikolwiek inny sposób wykraczający poza dozwolony użytek określony przepisami ustawy z 4 lutego 1994 r. o prawie autorskim i prawach pokrewnych (Dz. U. 1994, nr 24 poz. 83 z późn. zm.) bez pisemnej zgody Północ Nieruchomości Sp z o.o. lub podmiotów współpracujących jest zabronione i może stanowić podstawę odpowiedzialności cywilnej oraz karnej.

Niniejsze materiały stanowią tajemnicę przedsiębiorstwa PÓŁNOC NIERUCHOMOŚCI Sp. z o.o. w rozumieniu ustawy z dnia 16 kwietnia 1993 r. o zwalczaniu nieuczciwej konkurencji (Dz. U. z 2003 r., Nr 153, poz. 1503 z późn. zm.).

Mapa

Zapytaj o tę ofertę

Lub zadzwoń