Kontakt
Nr oferty: 42788/3877/ODS

Rezydencja bez sąsiadów Nowe Kawkowo

Olsztyn zobacz na mapie

2 550 000 PLN

Szczegóły oferty

Cena:
2 550 000,00 zł
Powierzchnia:
253,00 m2
Cena za m2:
10 079,05 zł
Powierzchnia działki:
3 000,00 m2
Rok budowy:
2020
Liczba pięter:
2
Liczba pokoi:
5
Stan budynku:
Bardzo dobry
Typ domu:
Rezydencja
Ciepła woda:
tak
Id oferty:
42788/3877/ODS

Opis

Nowy, solidny dom położony na malowniczym wzgórzu.

Zaledwie 20 km od Olsztyna, w Nowym Kawkowie.
Oferta dla osób poszukujących nieruchomości, która zapewni ciszę i spokój, kojące otoczenie przyrody, maksymalną prywatność oraz wyjątkowy charakter.
Dom został zaprojektowany przez architektów, którzy tworzyli ten projekt tak aby wykorzystać wszystkie atuty miejsca.

Otoczony jest wysokiej klasy drewnianymi oknami co zapewnia niezakłócony widok na otaczającą dom przyrodę z każdego okna.

Z tarasu roztacza się widok na dolinę, przestrzeń oraz las.
Niewątpliwym atutem nieruchomości jest lokalizacja.

Dom położony jest na działce o powierzchni 3000 m2 otoczonej terenem chronionym dającym gwarancje, że wokół zasięgu wzroku nie powstanie żadna nowa zabudowa.
Nieruchomość znajduje się w pobliżu miejscowości Nowe Kawkowo około 20 km od Olsztyna.

Dom jest w pełni urządzony i wyposażony przez projektantkę wnętrz. Może stanowić dom całoroczny, służyć jako willa weekendowa lub jak obecnie przynosić przychody z wynajmu.

Nowe Kawkowo jest znane ze szczególnej atmosfery.
To miejsce jest cenione za swój wyjątkowy klimat. Przyciąga osoby, które zdecydowały się opuścić miejską dżunglę i korporacyjny świat a także tych którzy potrzebują na jakiś czas zwolnic tempo. Tutaj można oderwać się od codzienności, spacerować po malowniczych krajobrazach, delektować się wyśmienitym jedzeniem oraz brać udział w warsztatach artystycznych i rzemieślniczych.

Architektura domu jest zgodna ze stylistyką regionu. Czerwona cegła, mur pruski, dach kryty dachówką ceramiczną. Wnętrza zaś przyciąga prostotą, funkcjonalnością i rustykalnym urokiem. Większość mebli sprowadzona została z Francji i Indii.
Jakość materiałów, wykonanie klasy PREMIUM oraz przemyślana estetyka to odzwierciedlenie willi stawiającej na ponadczasowy wygląd i zapewniająca unikatowy charakter.

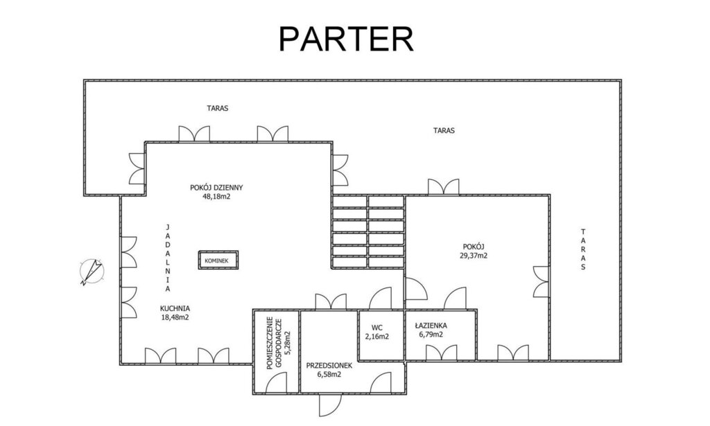
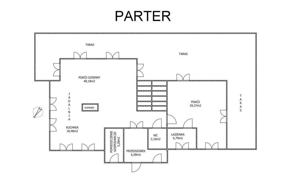
PARTER

Centralną częścią domu jest komin. Sprawia on ze część dzienna podzielona jest na 3 strefy wypoczynkową, jadalnianą i kuchnię.
• Stylowa kuchnia z dużą ilością miejsca do przechowywania.
• W pełni wyposażona.
• Kuchnia - gazowa
• Piekarnik
• Zmywarka
• Lodówka
• Na środku kuchni duża wyspa.

Salon z bezpośrednim wyjściem na taras i ogród.
Powierzchnia tarasu to 120m2.
Na parterze znajduje się też duży pokój z łazienką z trzema łóżkami.
W holu - toaleta dla gości

PIĘTRO
3 niezależne duże sypialnie.
Każda z własną łazienką.
Łącznie w domu może nocować 15 osób.

W każdym z pokoi znajdują się zabytkowe oryginalne meble.
Wszystkie pokoje są urządzone w spójnej stylistyce.


Sypialnia 1:
2 łóżka pojedyncze.
Sypialnia 2:
2 łóżka pojedyncze oraz 1 łóżko podwójne.
Sypialnia 3:
3 łóżka pojedyncze oraz 1 łóżko podwójne.

Podłogi drewniane a w łazienkach i holu wysokiej klasy płytami gresowymi. Na piętrze znajduje się dodatkowy taras 23m2.

MEDIA:
Prąd
Woda - własna studnia.
Przydomowa oczyszczalnia ścieków - 3000 litrów.
Centralne ogrzewanie na pellet. Bojler elektryczny.
System ogrzewania podłogowego w łazienkach.
W jednej z sypialni znajduje się dodatkowy kominek.

OKOLICA
W Nowym Kawkowie i okolicach poza otaczającymi je łąkami i lasami, jest wiele klimatycznych miejscówek

• Lawendowe Pole
• Galeria Kawkowo, punkt zborny. Kawiarnia miejsve spotkań artystów oraz warsztaty dla dzieci.
• Nowe Spa z sauna i balia.
• Cegielnia Art. Letycja
• Chill on the hill relaks na górce z widokiem na warmiński krajobraz, francuskie naleśniki, rozgrzewające zupy wegetariańskie, kawa w porcelanowych kubkach Letycji.
• Cieszące się popularnością Restauracje Niva i Ględoria.
• W pobliżu miejsca takie jak:
• Kwaśne Jabłko - miejsce dla miłośników cydru
• Teatr Węgajty
• Koronczarnia
• Moniówka - coś dla miłośników jogi i wegańskiej kuchni

Dla dzieci prowadzone są zajęcia w kilku ośrodkach zabawowo - edukacyjnych.

Dom jest gotowy do wprowadzenia.
Idealnie nadaje się zarówno do własnych potrzeb jak i jako inwestycja.
Dom od początku pracuje na siebie oraz przynosi dochody z wynajmu.
Miejsce to posiada już również stałych klientów.

Zainteresowanych klientów serdecznie zapraszam do kontaktu po więcej informacji i zdjęć.

Niniejsze ogłoszenie nie stanowi oferty w rozumieniu Kodeksu Cywilnego, lecz ma charakter informacyjny.

Przedstawione wizualizacje i grafiki mają charakter wyłącznie poglądowy i stanowią wyłącznie materiał pomocniczy, ułatwiający zorientowanie się w ogólnym wyglądzie oferowanej nieruchomości.

Niniejsze ogłoszenie wraz z jego elementami jest własnością Północ Nieruchomości Sp z o.o. lub podmiotu współpracującego. Wszelkie prawa zastrzeżone. Kopiowanie, rozpowszechnianie oraz korzystanie z niniejszych materiałów w jakikolwiek inny sposób wykraczający poza dozwolony użytek określony przepisami ustawy z 4 lutego 1994 r. o prawie autorskim i prawach pokrewnych (Dz. U. 1994, nr 24 poz. 83 z późn. zm.) bez pisemnej zgody Północ Nieruchomości Sp z o.o. lub podmiotów współpracujących jest zabronione i może stanowić podstawę odpowiedzialności cywilnej oraz karnej.

Niniejsze materiały stanowią tajemnicę przedsiębiorstwa PÓŁNOC NIERUCHOMOŚCI Sp. z o.o. w rozumieniu ustawy z dnia 16 kwietnia 1993 r. o zwalczaniu nieuczciwej konkurencji (Dz. U. z 2003 r., Nr 153, poz. 1503 z późn. zm.).

Mapa

Zapytaj o tę ofertę

Lub zadzwoń