Kontakt
Nr oferty: 42305/3877/ODS

Bliźniak- stan surowy zamknięty - Piotrowice!!!

Piotrowice zobacz na mapie

665 000 PLN

Szczegóły oferty

Cena:
665 000,00 zł
Powierzchnia:
154,00 m2
Cena za m2:
4 318,18 zł
Powierzchnia użytkowa:
110,00 m2
Powierzchnia działki:
550,00 m2
Rok budowy:
2019
Liczba pięter:
2
Liczba pokoi:
5
Stan budynku:
Surowy zamknięty
Typ domu:
Bliźniak
Id oferty:
42305/3877/ODS

Opis

Zapraszam serdecznie do zapoznania się z ofertą sprzedaży połowy domu typu BLIŹNIAK .
Omawiany dom w stanie surowym zamkniętym usytuowany jest działce o powierzchni 550 m2.
Budowa domu rozpoczęta w 2019 r. wg projektu "DOM W OSTRÓŻKACH 3"



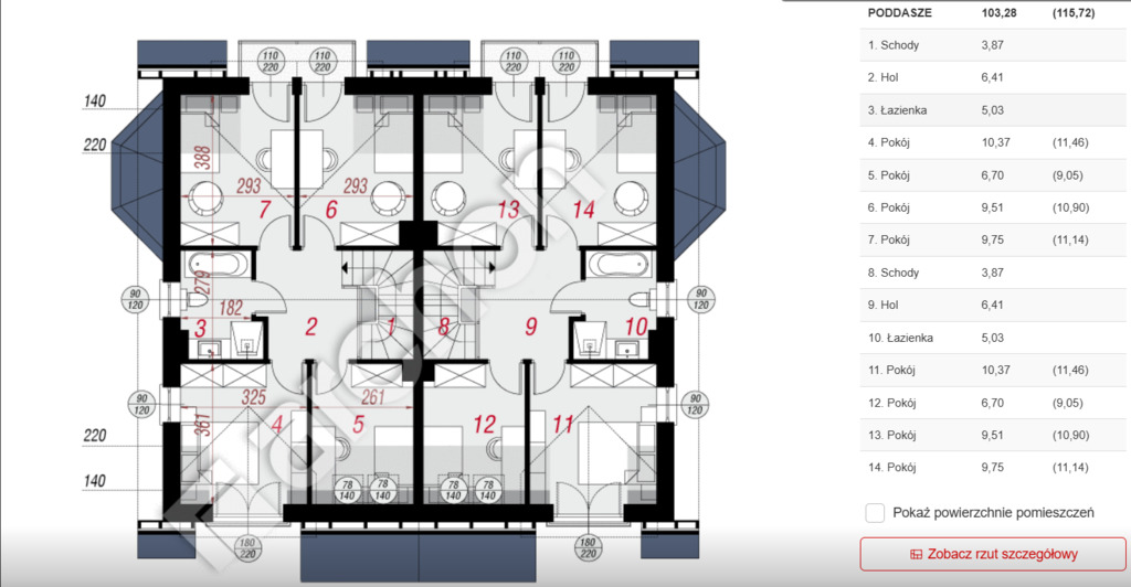
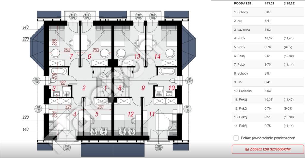
Dom składa się z następujących pomieszczeń:

PARTER:
-wiatrołap
-hol
-kuchnia
-salon  
-pokój gościnny/gabinet
-toaleta

PIĘTRO:

-sypialnia
-pokój
-pokój
-garderoba
-łazienka

MEDIA:
-prąd+ kanalizacja doprowadzone do budynku
-gazu i wody brak (do doprowadzenia)

Dane techniczne budynku:

-powierzchnia użytkowa -134 m2
-powierzchnia zabudowy - 79,16 m2
-kubatura -499,95 m2
-dom murowany z pustaka ceramicznego
-działka 550 m2
-dach dwuspadowy kryty dachówką
-strop żelbetowy
-ściany działowe
-okna PCV 3 szybowe
-rolety zewnętrzne 

Dom położony jest w miejscowości Piotrowice  gmina Męcinka koło Jawora.
W otoczeniu domu znajduje się niska zabudowa oraz mnóstwo zieleni, cisza i spokój .Miejsce to dedykowane jest dla osób ceniących sobie komfort i wygodę.
Do posesji dojazd drogą asfaltową.
Lokalizacja bardzo atrakcyjna ,bliskość do miasta i pełnej infrastruktury powoduje ,że chętnie właśnie w tej miejscowości powstają nowe inwestycje.
W pobliżu znajdują się min: szkoła, przedszkole, bank, ośrodek zdrowia, kościół.

Świetne połączenie zarówno z  Jaworem, Legnicą i Złotoryją. W niedalekiej odległości znajduje się fabryka MERCEDESA, zbiornik wodny Słup oraz przepiękny Park Krajobrazowy "Chełmy" .

UWAGA!!! Istnieje możliwość zakupu całej inwestycji ,która usytuowana jest na działce 1100 m2.
Cena połówki bliźniaka -665 000 zł- DO NEGOCJACJI!!!

Zapraszam serdecznie na prezentację.

Aneta Kopij
tel.661 909 045
e-mail: akopij@polnoc.pl
Biuro Nieruchomości Północ
ul. ŚRODKOWA 22 Legnica





Niniejsze ogłoszenie nie stanowi oferty w rozumieniu Kodeksu Cywilnego, lecz ma charakter informacyjny.

Przedstawione wizualizacje i grafiki mają charakter wyłącznie poglądowy i stanowią wyłącznie materiał pomocniczy, ułatwiający zorientowanie się w ogólnym wyglądzie oferowanej nieruchomości.

Niniejsze ogłoszenie wraz z jego elementami jest własnością Północ Nieruchomości Sp z o.o. lub podmiotu współpracującego. Wszelkie prawa zastrzeżone. Kopiowanie, rozpowszechnianie oraz korzystanie z niniejszych materiałów w jakikolwiek inny sposób wykraczający poza dozwolony użytek określony przepisami ustawy z 4 lutego 1994 r. o prawie autorskim i prawach pokrewnych (Dz. U. 1994, nr 24 poz. 83 z późn. zm.) bez pisemnej zgody Północ Nieruchomości Sp z o.o. lub podmiotów współpracujących jest zabronione i może stanowić podstawę odpowiedzialności cywilnej oraz karnej.

Niniejsze materiały stanowią tajemnicę przedsiębiorstwa PÓŁNOC NIERUCHOMOŚCI Sp. z o.o. w rozumieniu ustawy z dnia 16 kwietnia 1993 r. o zwalczaniu nieuczciwej konkurencji (Dz. U. z 2003 r., Nr 153, poz. 1503 z późn. zm.).

Mapa

Zapytaj o tę ofertę

Lub zadzwoń