Kontakt
Nr oferty: 43852/3877/ODS

Okazja! Dom + 74a działki + budynki w Polskowoli!

Polskowola zobacz na mapie

199 000 PLN

Szczegóły oferty

Cena:
199 000,00 zł
Powierzchnia:
135,60 m2
Cena za m2:
1 467,55 zł
Powierzchnia użytkowa:
135,60 m2
Powierzchnia działki:
7 490,00 m2
Rok budowy:
1965
Liczba pięter:
1
Liczba pokoi:
4
Stan budynku:
Do kapitalnego remontu
Typ domu:
Wolnostojący
Ciepła woda:
tak
Id oferty:
43852/3877/ODS

Opis

REZERWACJA!

Na sprzedaż nieruchomość położona w miejscowości Polskowola, w gminie Kąkolewnica, powiat radzyński – idealna dla osób szukających przestrzeni, spokoju i możliwości aranżacji domu według własnej wizji.

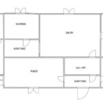
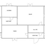
Powierzchnia użytkowa domu: 135,60m²
Działka: 7 490 m² (niemal 75 arów!)

Dom wolnostojący, murowany, wymagający generalnego remontu – do adaptacji według potrzeb przyszłych właścicieli.

Na powierzchnię mieszkalną składają się:
– 4 pokoje,
– kuchnia,
– łazienka,
– pomieszczenia gospodarcze,
– strych z możliwością adaptacji.

Pomieszczenia mają charakter przechodni.

Media:
Prąd, światłowód, wodociąg miejski w drodze, studnia + hydrofor na działce, kanalizacja - szambo.

Budynek daje wiele możliwości – zarówno jako dom całoroczny, jak i letniskowy. Duża działka to idealna przestrzeń pod ogród, sad, małą hodowlę, plac zabaw, a nawet dodatkową zabudowę. 

Zgodnie z MPZP ustala się podstawowe warunki:

– adaptacja, modernizacja i budowa obiektów budowlanych w granicach
istniejących zabudowanych działek,
– lokalizacja nowych siedlisk rolniczych

Na działce znajdują się budynki gospodarcze, umożliwiające działalność rolniczą lub lokalizację usług nieuciążliwych oraz innych funkcji pod warunkiem, że nie
spowodują kolizji z istniejącym i projektowanym zagospodarowaniem podstawowym.

Lokalizacja:

Polskowola – cicha, zielona miejscowość z dobrą komunikacją do Kąkolewnicy, Radzynia Podlaskiego, Lubartowa czy Międzyrzeca Podlaskiego.

Blisko lasy, pola, zabudowa jednorodzinna – idealne miejsce dla osób ceniących ciszę, przestrzeń i prywatność.

Dlaczego warto? 

* Duża powierzchnia działki – rzadko spotykana w tej cenie
* Możliwość stworzenia domu od zera – według własnych potrzeb
* Spokojna, wiejska okolica z dostępem do podstawowej infrastruktury

Zainteresowany? Umów się na prezentację!

Zadzwoń lub napisz – chętnie odpowiem na pytania i przedstawię szczegóły.

Bezpłatnie pomagamy w formalnościach związanych z uzyskaniem kredytu na zakup nieruchomości. Nasz doradca kredytowy bezpłatnie sprawdzi Twoją zdolność kredytową i przedstawi najlepsze oferty z ponad 10 banków.
Posiadasz podobną nieruchomość? Skorzystaj z bezpłatnej konsultacji – odpowiemy na pytania dotyczące ceny, procesu sprzedaży oraz możliwości poprawy atrakcyjności oferty.

Oferujemy również:
•⁠ ⁠Pośrednictwo w kupnie, sprzedaży oraz najmie nieruchomości.
•⁠ ⁠Pomoc w sprzedaży nieruchomości o skomplikowanej sytuacji prawnej.
•⁠ ⁠Rzetelne oceny wartości nieruchomości.
•⁠ ⁠Uzyskanie świadectwa energetycznego.

Nie zwlekaj, zadzwoń już teraz!

Edyta Bancerz
Doradca ds. nieruchomości
tel. 885 851 158
e-mail: ebancerz@polnoc.pl
Północ Nieruchomości oddział Biała Podlaska


Niniejsze ogłoszenie nie stanowi oferty w rozumieniu Kodeksu Cywilnego, lecz ma charakter informacyjny.

Przedstawione wizualizacje i grafiki mają charakter wyłącznie poglądowy i stanowią wyłącznie materiał pomocniczy, ułatwiający zorientowanie się w ogólnym wyglądzie oferowanej nieruchomości.

Niniejsze ogłoszenie wraz z jego elementami jest własnością Północ Nieruchomości Sp z o.o. lub podmiotu współpracującego. Wszelkie prawa zastrzeżone. Kopiowanie, rozpowszechnianie oraz korzystanie z niniejszych materiałów w jakikolwiek inny sposób wykraczający poza dozwolony użytek określony przepisami ustawy z 4 lutego 1994 r. o prawie autorskim i prawach pokrewnych (Dz. U. 1994, nr 24 poz. 83 z późn. zm.) bez pisemnej zgody Północ Nieruchomości Sp z o.o. lub podmiotów współpracujących jest zabronione i może stanowić podstawę odpowiedzialności cywilnej oraz karnej.

Niniejsze materiały stanowią tajemnicę przedsiębiorstwa PÓŁNOC NIERUCHOMOŚCI Sp. z o.o. w rozumieniu ustawy z dnia 16 kwietnia 1993 r. o zwalczaniu nieuczciwej konkurencji (Dz. U. z 2003 r., Nr 153, poz. 1503 z późn. zm.).

Mapa

Zapytaj o tę ofertę

Lub zadzwoń