Kontakt
Nr oferty: 44745/3877/ODS

Dom wolnostojący na dużej działce w Przemkowie

Przemków, ul. ks. Jana Skiby zobacz na mapie

590 000 PLN

Szczegóły oferty

Cena:
590 000,00 zł
Powierzchnia:
146,20 m2
Cena za m2:
4 035,57 zł
Powierzchnia użytkowa:
146,20 m2
Powierzchnia działki:
34,62 m2
Rok budowy:
1945
Liczba pięter:
2
Liczba pokoi:
4
Stan budynku:
Do remontu
Typ domu:
Wolnostojący
Ciepła woda:
tak
Id oferty:
44745/3877/ODS

Opis

Są nieruchomości, które dają więcej przestrzeni niż tylko metry w domu...

CO SPRZEDAJEMY?
 
Dom wolnostojący o powierzchni użytkowej ok. 146,2 m², położony na wyjątkowo dużej narożnej działce o powierzchni 34 arów (3400 m²).
Nieruchomość oferuje dużo przestrzeni i swobody zagospodarowania terenu.

To propozycja zarówno dla osób szukających miejsca do spokojnego życia, jak i dla tych, którzy potrzebują dodatkowej przestrzeni na działalność lub przykładowo warsztat.

GDZIE ZNAJDUJE SIĘ NIERUCHOMOŚĆ?
Dom znajduje się w Przemkowie, w spokojnej okolicy z zabudową jednorodzinną.

Z JAKICH POMIESZCZEŃ SKŁADA SIĘ DOM?
Dom oferuje duże, ustawne pomieszczenia, które zapewniają komfort codziennego użytkowania.
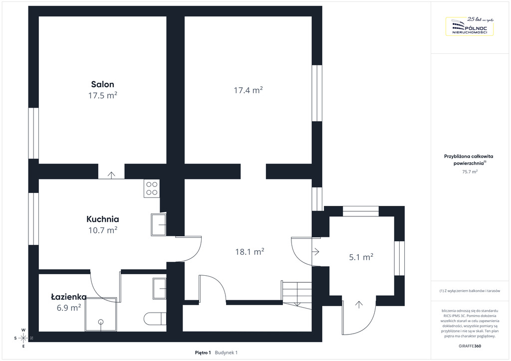
Parter:
  • wiatrołap – 5,1 m²,
  • kuchnia – 10,7 m²,
  • salon – 17,5 m²,
  • pokój – 17,4 m²,
  • przedpokój – 18,1 m²,
  • łazienka – 6,9 m².
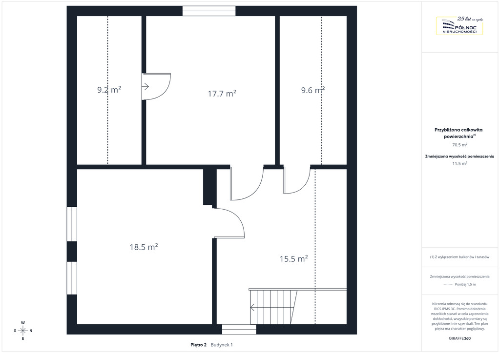
Piętro:
  • przedpokój – 15,5 m²,
  • sypialnia – 18,5 m²,
  • pokój – 17,7 m²,
  • dwa pomieszczenia pełniące funkcję garderoby / schowków / przestrzeni do przechowywania – 9,2 m² oraz 9,6 m²,
  • Dodatkowo w budynku znajduje się nieużytkowy strych, który może stanowić dodatkową przestrzeń magazynową.

Powierzchnia nieruchomości została ustalona na podstawie pomiaru wykonanego przy użyciu urządzenia pomiarowego. Pomiar ma charakter poglądowy i może różnić się w niewielkim stopniu od powierzchni rzeczywistej.

FUNKCJONALNOŚĆ I STANDARD:
  • dom jest regularnie użytkowany i utrzymywany, jednak wymaga przeprowadzenia remontu,
  • duże, ustawne pokoje zapewniają komfort użytkowania,
  • okna PCV,
  • garaż,
  • ogrzewanie gazowe – piec dwufunkcyjny,
  • alternatywna możliwość ogrzewania węglem,
  • instalacja gazowa była wymieniana,
  • instalacja elektryczna częściowo wymieniona,
  • budynek podpiwniczony
  • strych nieużytkowy pełniący funkcję dodatkowej przestrzeni do przechowywania.

DZIAŁKA I OTOCZENIE:
Teren jest w całości ogrodzony i posiada bramę wjazdową, co zapewnia komfort oraz bezpieczeństwo użytkowania. Na działce znajduje się wolnostojący budynek gospodarczy, który obecnie pełni funkcję garażu oraz miejsca do przechowywania – idealne rozwiązanie dla osób potrzebujących przestrzeni na narzędzia, sprzęt, warsztat czy dodatkowy magazyn.

MIEJSCOWOŚĆ:
  • Przemków to niewielkie, urokliwe miasto w województwie dolnośląskim (powiat polkowicki), liczące ponad 5,5 tys. mieszkańców. Położone jest na północnym krańcu Borów Dolnośląskich, dzięki czemu okolica wyróżnia się dużą ilością terenów zielonych i spokojnym charakterem.
  • W miejscowości dostępna jest infrastruktura potrzebna do codziennego życia – sklepy, szkoła, punkty usługowe oraz miejsca rekreacji.
  • Przemków znany jest również z tradycji pszczelarskich oraz organizowanego co roku Dolnośląskiego Święta Miodu i Wina. W okolicy znajdują się cenne przyrodniczo tereny, w tym Przemkowski Park Krajobrazowy oraz rezerwaty przyrody, m.in. Stawy Przemkowskie.
  • Miasto położone jest przy drodze krajowej nr 12, co zapewnia wygodny dojazd do większych miejscowości regionu, takich jak Polkowice, Lubin czy Głogów.


Wiemy, że decyzje o zakupie nieruchomości często są trudne. Dlatego działamy w Twoim tempie .
Jeśli ta nieruchomość odpowiada Państwa potrzebom, zapraszam do kontaktu. Chętnie opowiem więcej i umówię dogodny termin prezentacji.

Jesteśmy lokalnym biurem nieruchomości działającym w ramach sieci franczyzowej Północ
Łączymy znajomość lokalnego rynku z doświadczeniem i sprawdzonymi procedurami ogólnopolskiej marki.  Dzięki temu zapewniamy klientom stabilność, przewidywalność i spokojne przejście przez cały proces transakcyjny.

Prezentacja nieruchomości wiąże się z okazaniem danych osobowych Oglądających oraz pokwitowania udostępnienia adresu prezentowanej nieruchomości na "potwierdzeniu wskazania adresu (udostępnieniu adresu)". Prezentując nieruchomość, dbamy o bezpieczeństwo i jasne zasady współpracy.

Przy zakupie nieruchomości należy uwzględnić koszty transakcyjne, w tym podatek PCC w wysokości 2% (chyba że jest to pierwsza w życiu nabywana nieruchomość – wówczas transakcja podlega ustawowemu zwolnieniu z tego podatku), opłaty notarialne i sądowe oraz wynagrodzenie pośrednika.

WSPARCIE W PROCESIE ZAKUPU
Zapewniamy wsparcie na każdym etapie procesu zakupu nieruchomości, w tym:
  • bezpieczne przeprowadzenie transakcji pod względem prawnym,
  • kompleksową obsługę podczas całego procesu zakupu,
  • wsparcie w negocjacjach warunków transakcji,
  • współpracę z ekspertem kredytowym oraz pomoc w wyborze odpowiedniej oferty finansowania,
  • pomoc w przygotowaniu dokumentów niezbędnych do zawarcia umowy notarialnej,
  • współpracę ze sprawdzonymi kancelariami notarialnymi.


Jeśli oferta jest dla Państwa interesująca, zapraszamy do kontaktu w celu uzyskania dodatkowych informacji oraz umówienia terminu prezentacji.

Natalia Sabat
Doradca ds. nieruchomości
tel komórkowy: 797-333-591
e-mail: nsabat@polnoc.pl

Północ Głogów | biuro nieruchomości
ul. Grodzka 7, 67-200 Głogów

Niniejsze ogłoszenie nie stanowi oferty w rozumieniu Kodeksu Cywilnego, lecz ma charakter informacyjny.

Przedstawione wizualizacje i grafiki mają charakter wyłącznie poglądowy i stanowią wyłącznie materiał pomocniczy, ułatwiający zorientowanie się w ogólnym wyglądzie oferowanej nieruchomości.

Niniejsze ogłoszenie wraz z jego elementami jest własnością Północ Nieruchomości Sp z o.o. lub podmiotu współpracującego. Wszelkie prawa zastrzeżone. Kopiowanie, rozpowszechnianie oraz korzystanie z niniejszych materiałów w jakikolwiek inny sposób wykraczający poza dozwolony użytek określony przepisami ustawy z 4 lutego 1994 r. o prawie autorskim i prawach pokrewnych (Dz. U. 1994, nr 24 poz. 83 z późn. zm.) bez pisemnej zgody Północ Nieruchomości Sp z o.o. lub podmiotów współpracujących jest zabronione i może stanowić podstawę odpowiedzialności cywilnej oraz karnej.

Niniejsze materiały stanowią tajemnicę przedsiębiorstwa PÓŁNOC NIERUCHOMOŚCI Sp. z o.o. w rozumieniu ustawy z dnia 16 kwietnia 1993 r. o zwalczaniu nieuczciwej konkurencji (Dz. U. z 2003 r., Nr 153, poz. 1503 z późn. zm.).

Mapa

Zapytaj o tę ofertę

Lub zadzwoń