Kontakt
Nr oferty: 41847/3877/ODS

Dom dwukondygnacyjny 240m2

Rowy, ul. Jarzębinowa zobacz na mapie

949 000 PLN

Szczegóły oferty

Cena:
949 000,00 zł
Powierzchnia:
240,00 m2
Cena za m2:
3 954,17 zł
Liczba pokoi:
10
Typ domu:
Wolnostojący
Ciepła woda:
tak
Id oferty:
41847/3877/ODS

Opis

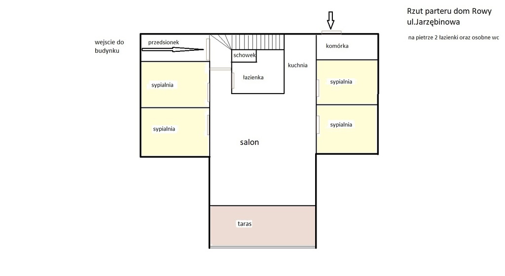
Posiadamy w sprzedaży dom murowany dwukondygnacyjny, ocieplony o powierzchni 240 m2 , w turystycznej miejscowości Rowy.
-działka ogrodzona z zagospodarowany zielenią o powierzchni 356 m2 
-bezpośredni dojazd do głównej ulicy
-8 sypialni

CO SPRZEDAJEMY ?
Przedmiotem sprzedaży jest nieruchomość o powierzchni użytkowej 240m2 mieszcząca się w nadmorskiej miejscowości Rowy, którą co roku odwiedzają liczni turyści. Nieruchomość może być wykorzystywana jako jedna całość lub dwa oddzielne apartamenty.

ILE POSIADA POMIESZCZEŃ ?
Dom posiada 8 niezależnych sypialni, dwa salony z aneksami kuchennymi, korytarz oraz 3 łazienki z prysznicem i 1 oddzielny wc, dodatkowo za domem znajduje się pomieszczenie gospodarcze. Na ogródku jest dostępny schowek na drewno oraz altana z miejscem na grilla. 

JAKIE SĄ UDOGODNIENIA ?
-5 min do morza
-5min do jeziora
-cisza i spokój
-bliski dostęp do centrum Rowów 
-2 apartamenty po 5 pokoi
-kominek
-dwa duże tarasy

CZY MIESZKANIE POSIADA GARAŻ/MIEJSCE PARKINGOWE ?
Na terenie posesji zmieszczą się trzy samochody plus do tego przed posesją jest miejsce do zaparkowania.

JAK WYGLĄDA KWESTIA MEDIÓW ?
Ciepła woda - podgrzewacz elektryczny
Ogrzewanie - kominek i elektryczne

ZAPRASZAMY DO ZAPOZNANIA SIĘ Z OFERTĄ OSOBIŚCIE !
Zapraszam na prezentację po wcześniejszym umówieniu.
Przekonaj się na własne oczy - umów spotkanie.

Szukasz innej nieruchomości ? Zobacz nasze pozostałe oferty !
Masz nieruchomość na sprzedaż ? Sprzedaj ją korzystnie z nami!

https://polnoc.pl/oddzialy/slupsk/#oferty-oddzialu

Zapraszam do zakupu.

Niniejsze ogłoszenie nie stanowi oferty w rozumieniu Kodeksu Cywilnego, lecz ma charakter informacyjny.

Przedstawione wizualizacje i grafiki mają charakter wyłącznie poglądowy i stanowią wyłącznie materiał pomocniczy, ułatwiający zorientowanie się w ogólnym wyglądzie oferowanej nieruchomości.

Niniejsze ogłoszenie wraz z jego elementami jest własnością Północ Nieruchomości Sp z o.o. lub podmiotu współpracującego. Wszelkie prawa zastrzeżone. Kopiowanie, rozpowszechnianie oraz korzystanie z niniejszych materiałów w jakikolwiek inny sposób wykraczający poza dozwolony użytek określony przepisami ustawy z 4 lutego 1994 r. o prawie autorskim i prawach pokrewnych (Dz. U. 1994, nr 24 poz. 83 z późn. zm.) bez pisemnej zgody Północ Nieruchomości Sp z o.o. lub podmiotów współpracujących jest zabronione i może stanowić podstawę odpowiedzialności cywilnej oraz karnej.

Niniejsze materiały stanowią tajemnicę przedsiębiorstwa PÓŁNOC NIERUCHOMOŚCI Sp. z o.o. w rozumieniu ustawy z dnia 16 kwietnia 1993 r. o zwalczaniu nieuczciwej konkurencji (Dz. U. z 2003 r., Nr 153, poz. 1503 z późn. zm.).

Mapa

Zapytaj o tę ofertę

Lub zadzwoń