Kontakt
Nr oferty: 44910/3877/ODS

Domy - osiedle Pastelowe Sieradz

Sieradz, ul. Modrzewiowa zobacz na mapie

694 000 PLN

Szczegóły oferty

Cena:
694 000,00 zł
Powierzchnia:
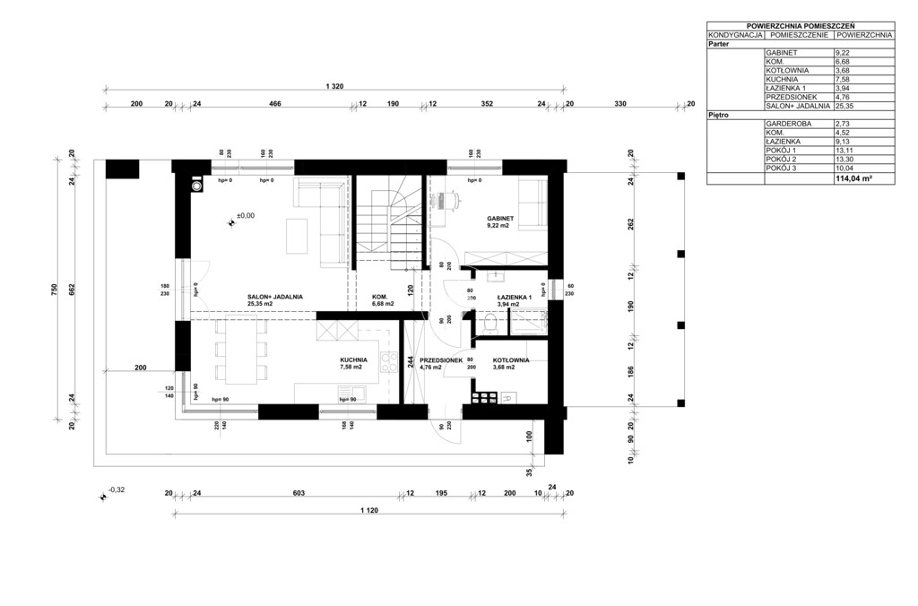
114,00 m2
Cena za m2:
6 087,72 zł
Powierzchnia użytkowa:
114,00 m2
Powierzchnia działki:
500,00 m2
Rok budowy:
2026
Liczba pięter:
2
Liczba pokoi:
4
Stan budynku:
Stan deweloperski
Typ domu:
Wolnostojący
Id oferty:
44910/3877/ODS

Opis

Oferujemy na sprzedaż domy w budowie przy ulicy Modrzewiowej w Sieradzu.
Na osiedle będzie składać się osiem budynków mieszkalnych jednorodzinnych.
Budynki mają 114 m² powierzchni użytkowej z funkcjonalnym układem:
Parter - salon z otwartą kuchnią, łazienka, pomieszczenie gospodarcze
I piętro - 2 sypialnie, 1 sypialnia z garderobą, łazienka
Przy budynku znajduje się wiata garażowa.
Budynki usytuowane są na prywatnym osiedlu z wydzieloną drogą wewnętrzną. 
PLANOWANY ZAKRES INWESTYCJI
Inwestycja obejmuje w szczególności:
  • działkę budowlaną,
  • wykonanie przyłączy kanalizacji sanitarnej i wodociągowej do budynku,
  • wykonanie przyłączy instalacji elektrycznej wraz z wewnętrzną linią zasilającą (WLZ),
  • wykonanie przyłącza instalacji gazowej do budynku,
  • wykonanie instalacji oświetlenia ulicznego wraz z montażem latarni,
  • wykonanie ogrodzenia działki z trzech stron,
  • wykonanie podbudowy oraz nawierzchni asfaltowej dróg wewnętrznych
PLANOWANY STAN BUDYNKU – ZEWNĄTRZ
Budynek projektowany jako wykończony na zewnątrz, obejmujący w szczególności:
  • fundamenty z izolacją i ociepleniem (styropian XPS 300L),
  • mury i ściany zewnętrzne z ceramiki budowlanej (Termoton Owczary),
  • impregnowane drewno konstrukcyjne,
  • pokrycie dachowe – blacha na rąbek stojący,
  • ocieplenie zewnętrzne elewacji ( styropian grafitowy EPS 033), tynk strukturalny, parapety zewnętrzne,
  • stolarkę okienną PCV – system trzyszybowy,
  • drzwi zewnętrzne,
  • zadaszone miejsce postojowe,
PLANOWANY STAN BUDYNKU – WEWNĄTRZ
Planowany standard wewnętrzny obejmuje m.in.:
  • ściany wewnętrzne z cegły ceramicznej (Termoton Owczary),
  • wykonanie wylewki betonowej (chudziak),
  • wykonanie instalacji elektrycznej wraz z rozdzielnią wewnętrzną,
  • wykonanie pionów kanalizacji sanitarnej oraz wody,
  • wykonanie przyłączy wodociągowych i kanalizacji sanitarnej,
  • ocieplenie połaci dachowych wełną mineralną (gr. 30 cm),
  • wykonanie instalacji gazowej wraz z montażem kotła gazowego.
INFORMACJA KOŃCOWA
  • Opis ma charakter informacyjny i dotyczy planowanego standardu realizacji inwestycji.

Niniejsze ogłoszenie nie stanowi oferty w rozumieniu Kodeksu Cywilnego, lecz ma charakter informacyjny.

Przedstawione wizualizacje i grafiki mają charakter wyłącznie poglądowy i stanowią wyłącznie materiał pomocniczy, ułatwiający zorientowanie się w ogólnym wyglądzie oferowanej nieruchomości.

Niniejsze ogłoszenie wraz z jego elementami jest własnością Północ Nieruchomości Sp z o.o. lub podmiotu współpracującego. Wszelkie prawa zastrzeżone. Kopiowanie, rozpowszechnianie oraz korzystanie z niniejszych materiałów w jakikolwiek inny sposób wykraczający poza dozwolony użytek określony przepisami ustawy z 4 lutego 1994 r. o prawie autorskim i prawach pokrewnych (Dz. U. 1994, nr 24 poz. 83 z późn. zm.) bez pisemnej zgody Północ Nieruchomości Sp z o.o. lub podmiotów współpracujących jest zabronione i może stanowić podstawę odpowiedzialności cywilnej oraz karnej.

Niniejsze materiały stanowią tajemnicę przedsiębiorstwa PÓŁNOC NIERUCHOMOŚCI Sp. z o.o. w rozumieniu ustawy z dnia 16 kwietnia 1993 r. o zwalczaniu nieuczciwej konkurencji (Dz. U. z 2003 r., Nr 153, poz. 1503 z późn. zm.).

Mapa

Zapytaj o tę ofertę

Lub zadzwoń