Kontakt
Nr oferty: 18954/3877/OLW

Lokal 175 m2 / Centrum Wrocławia

Wrocław, Rybacka zobacz na mapie

9 800 PLN

Szczegóły oferty

Cena:
9 800,00 zł
Powierzchnia:
175,00 m2
Cena za m2:
56,00 zł
Rynek:
Wtórny
Id oferty:
18954/3877/OLW

Opis

CO WYNAJMUJEMY?
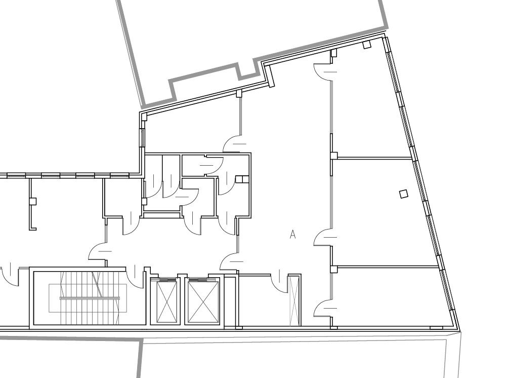
Przestronny i funkcjonalny lokal biurowy powierzchni 175 m² znajdujący się na 4 piętrze w biurowcu w centrum Wrocławia.

GDZIE ZNAJDUJE SIĘ LOKAL?
Położony jest przy ulicy Rybackiej zaraz obok pl. Jana Pawła II i ul. Legnickiej. W bliskiej odległości od biura znajdują sie przystanki autobusowe i tramwajowe, a przy samym budynku zlokalizowane są miejsca parkingowe dla samochodów.

JAKI JEST STANDARD?
Lokal składa się z 4 zamykanych pokoi, osobnej wyposażonej kuchni oraz dużego pomieszkanie typu open space.
Obiekt jest klimatyzowany, posiada własny węzeł sanitarny oraz dostęp do windy i klatki schodowej. 

JAK WYGLĄDA KWESTIA MEDIÓW?
Za lokal pobierana jest dodatkowo opłata eksploatacyjna (20 zł/1m2) oraz koszty enegii elektrycznej według indywidualnego zużycia. 

Kaucja w wysokości 2 miesięcznych czynszów wraz z opłatami brutto

CO ZNAJDUJE SIĘ W NAJBLIŻSZYM OTOCZENIU?
- przystanki tramwajowe (linie: 3, 10, 20, 31, 32, 33) oraz autobusowe (linie: 102, 103, 104, 107, 109, 122, 127, 132, 142, 243, 245, 253)
- Rynek (1000 m)

Zapraszam na prezentację.

BEZPŁATNIE pomagamy w uzyskaniu najkorzystniejszego kredytu na zakup nieruchomości.

Adam Wnuk
PÓŁNOC Nieruchomości Wrocław Armii Krajowej
50-541 Wrocław, Aleja Armii Krajowej 6b lokal 5
tel: +48 603 562 281
e-mail: awnuk@polnoc.pl

Niniejsze ogłoszenie nie stanowi oferty w rozumieniu Kodeksu Cywilnego, lecz ma charakter informacyjny.

Przedstawione wizualizacje i grafiki mają charakter wyłącznie poglądowy i stanowią wyłącznie materiał pomocniczy, ułatwiający zorientowanie się w ogólnym wyglądzie oferowanej nieruchomości.

Niniejsze ogłoszenie wraz z jego elementami jest własnością Północ Nieruchomości Sp z o.o. lub podmiotu współpracującego. Wszelkie prawa zastrzeżone. Kopiowanie, rozpowszechnianie oraz korzystanie z niniejszych materiałów w jakikolwiek inny sposób wykraczający poza dozwolony użytek określony przepisami ustawy z 4 lutego 1994 r. o prawie autorskim i prawach pokrewnych (Dz. U. 1994, nr 24 poz. 83 z późn. zm.) bez pisemnej zgody Północ Nieruchomości Sp z o.o. lub podmiotów współpracujących jest zabronione i może stanowić podstawę odpowiedzialności cywilnej oraz karnej.

Niniejsze materiały stanowią tajemnicę przedsiębiorstwa PÓŁNOC NIERUCHOMOŚCI Sp. z o.o. w rozumieniu ustawy z dnia 16 kwietnia 1993 r. o zwalczaniu nieuczciwej konkurencji (Dz. U. z 2003 r., Nr 153, poz. 1503 z późn. zm.).

Mapa

Zapytaj o tę ofertę

Lub zadzwoń