Kontakt
Nr oferty: 125244/3877/OMS

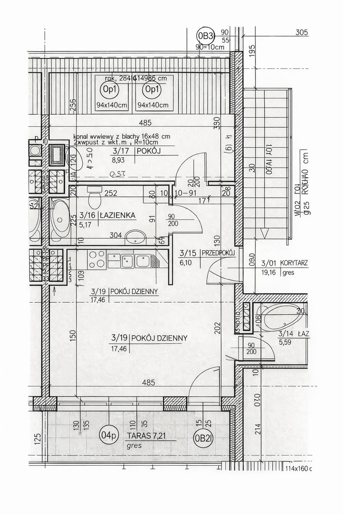
Słoneczne 2 pokoje | 42,4 m² | R E Z E R W A C J A

Brwinów, Sportowa zobacz na mapie

499 999 PLN

Szczegóły oferty

Cena:
499 999,00 zł
Powierzchnia:
42,40 m2
Cena za m2:
11 792,43 zł
Rok budowy:
2010
Liczba pięter:
3
Piętro:
3
Garaż/Miejsca parkingowe:
tak
Rynek:
Wtórny
Rodzaj budynku:
Niski blok
Liczba pokoi:
2
Typ kuchni:
Aneks
Id oferty:
125244/3877/OMS

Opis

Słoneczne 2 pokoje po odświeżeniu | 42,4 m² | Brwinów | balkon | blisko PKP

Na sprzedaż jasne, przytulne i funkcjonalne mieszkanie 2-pokojowe o powierzchni 42,4 m², położone w spokojnej części Brwinowa przy ul. Sportowej.
Nieruchomość znajduje się w kameralnej okolicy z bardzo dobrą infrastrukturą oraz szybkim dostępem do terenów zielonych, sklepów i komunikacji.
Mieszkanie idealne dla singla, pary, małej rodziny lub jako inwestycja pod wynajem (dogodny dojazd do Warszawy i bliskość stacji PKP).

Najważniejsze atuty mieszkania
• mieszkanie bardzo słoneczne – ekspozycja południowo-wschodnia i północno-zachodnia
• funkcjonalny, rozkładowy układ pomieszczeń
• salon z aneksem kuchennym (17,46 m² + 4,68 m²)
• duża szafa w przedpokoju zapewniająca wygodne przechowywanie
• łazienka z wanną i miejscem na pralkę (5,17 m²)
• na podłogach panele i terakota
• mieszkanie po odświeżeniu – gotowe do wprowadzenia
• duży balkon – 7,21 m²
• mieszkanie dwustronne
• ostatnie piętro – 3/3 (poddasze)

Lokalizacja – Brwinów, ul. Sportowa
• ok. 100 m – przystanek autobusowy (1–2 min pieszo)
• ok. 200–300 m – Galeria Brwinów – sklepy i usługi
• ok. 650 m – Ogród Botaniczny w Brwinowie – idealne miejsce na spacery i rekreację
• ok. 1,1 km – stacja PKP Brwinów – szybki dojazd do Warszawy
• w okolicy ścieżki rowerowe i tereny rekreacyjne
• szkoła i przedszkola w pobliżu
• spokojna okolica z niską zabudową i dużą ilością zieleni

Lokalizacja łączy komfort życia w spokojnym mieście z bardzo dobrym dojazdem do Warszawy.

Budynek
• kameralny 3-piętrowy budynek z 2010 roku
• domofon oraz monitoring
• zadbane części wspólne
• brak windy
• miejsce na rowery
• tylko 3 mieszkania na piętrze
Stan prawny• pełna własność z księgą wieczystą
• grunt uregulowany
• możliwy zakup na kredyt

Dodatkowo płatne miejsce postojowe na terenie osiedla.

Niniejsze ogłoszenie nie stanowi oferty w rozumieniu Kodeksu Cywilnego, lecz ma charakter informacyjny.

Przedstawione wizualizacje i grafiki mają charakter wyłącznie poglądowy i stanowią wyłącznie materiał pomocniczy, ułatwiający zorientowanie się w ogólnym wyglądzie oferowanej nieruchomości.

Niniejsze ogłoszenie wraz z jego elementami jest własnością Północ Nieruchomości Sp z o.o. lub podmiotu współpracującego. Wszelkie prawa zastrzeżone. Kopiowanie, rozpowszechnianie oraz korzystanie z niniejszych materiałów w jakikolwiek inny sposób wykraczający poza dozwolony użytek określony przepisami ustawy z 4 lutego 1994 r. o prawie autorskim i prawach pokrewnych (Dz. U. 1994, nr 24 poz. 83 z późn. zm.) bez pisemnej zgody Północ Nieruchomości Sp z o.o. lub podmiotów współpracujących jest zabronione i może stanowić podstawę odpowiedzialności cywilnej oraz karnej.

Niniejsze materiały stanowią tajemnicę przedsiębiorstwa PÓŁNOC NIERUCHOMOŚCI Sp. z o.o. w rozumieniu ustawy z dnia 16 kwietnia 1993 r. o zwalczaniu nieuczciwej konkurencji (Dz. U. z 2003 r., Nr 153, poz. 1503 z późn. zm.).

Mapa

Zapytaj o tę ofertę

Lub zadzwoń