Kontakt
Nr oferty: 14262/3877/OMW

REZERWACJA, 4 pok. 96m2, pl. Unii Lubelskiej,

Śródmieście, Tadeusza Boya-Żeleńskiego zobacz na mapie

6 600 PLN

Szczegóły oferty

Cena:
6 600,00 zł
Powierzchnia:
96,00 m2
Rok budowy:
1948
Liczba pięter:
5
Piętro:
4
Garaż/Miejsca parkingowe:
tak
Rynek:
Wtórny
Rodzaj budynku:
Kamienica
Liczba pokoi:
4
Typ kuchni:
Oddzielna
Winda:
tak
Id oferty:
14262/3877/OMW

Opis

Komfortowe 4-pokojowe mieszkanie na wynajem | Warszawa – ul. Boya Żeleńskiego 6

Do wynajęcia przestronne, funkcjonalnie zaprojektowane mieszkanie o powierzchni 96 m², zlokalizowane przy ul. Boya Żeleńskiego 6 – w jednej z najbardziej cenionych i prestiżowych części Warszawy. To propozycja dla osób, które szukają połączenia wysokiego standardu, wygody i doskonałej lokalizacji blisko centrum.

Nieruchomość położona jest w świetnie skomunikowanej okolicy, z szybkim dostępem do centrum miasta. W bezpośrednim sąsiedztwie znajdują się sklepy, restauracje, kawiarnie, punkty usługowe, placówki edukacyjne oraz tereny zielone sprzyjające codziennemu wypoczynkowi.

Opis mieszkania
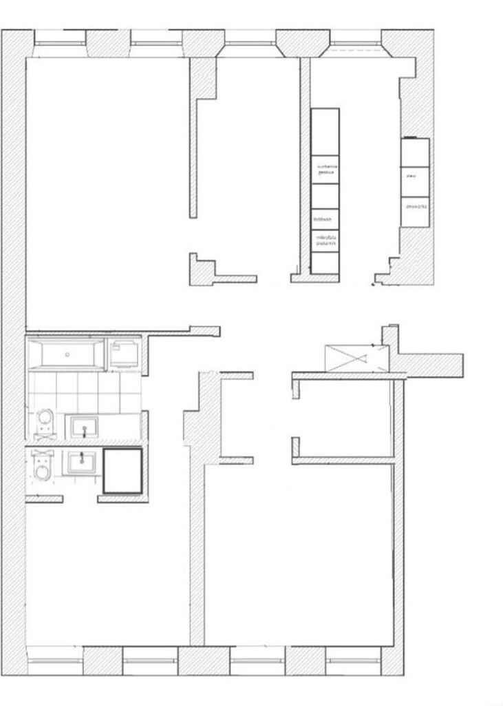
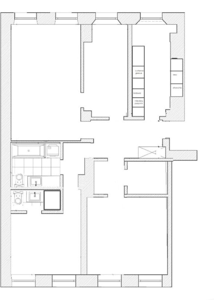
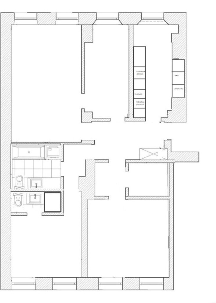
  • Powierzchnia: 96 m²
  • Liczba pokoi: 4
  • Piętro: 4 (budynek z windą)
  • Kuchnia: w pełni wyposażona
  • Łazienki: 2 (jedna z wanną, druga z prysznicem)
  • Garderoba: przestronna
  • Zabudowa: funkcjonalne szafy w przedpokoju i sypialni
  • Balkon/Taras: brak
  • Parking: możliwość wynajęcia miejsca postojowego na terenie osiedla (zewnętrzne) – 130 zł/mies.


Atuty nieruchomości
  • nowoczesne i estetyczne wykończenie
  • duże okna zapewniające doskonałe doświetlenie wnętrz
  • ogrzewanie miejskie
  • cicha, zadbana okolica
  • komfortowy układ pomieszczeń, idealny zarówno dla rodziny, jak i do pracy zdalnej


Warunki najmu
  • Cena najmu: 6 600 zł / miesiąc
  • Opłaty dodatkowe: czynsz administracyjny 1 490 zł (3 osoby) + media według zużycia
  • Kaucja: 9 000 zł
  • Forma najmu: najem okazjonalny
  • Minimalny okres najmu: 12 miesięcy
  • Dostępność: od 10 lutego 2026 r.


Zapraszamy do kontaktu w celu uzyskania szczegółowych informacji oraz umówienia prezentacji.
To doskonała okazja, by zamieszkać w eleganckim i komfortowym mieszkaniu w jednej z najbardziej pożądanych lokalizacji Warszawy.

Niniejsze ogłoszenie nie stanowi oferty w rozumieniu Kodeksu Cywilnego, lecz ma charakter informacyjny.

Przedstawione wizualizacje i grafiki mają charakter wyłącznie poglądowy i stanowią wyłącznie materiał pomocniczy, ułatwiający zorientowanie się w ogólnym wyglądzie oferowanej nieruchomości.

Niniejsze ogłoszenie wraz z jego elementami jest własnością Północ Nieruchomości Sp z o.o. lub podmiotu współpracującego. Wszelkie prawa zastrzeżone. Kopiowanie, rozpowszechnianie oraz korzystanie z niniejszych materiałów w jakikolwiek inny sposób wykraczający poza dozwolony użytek określony przepisami ustawy z 4 lutego 1994 r. o prawie autorskim i prawach pokrewnych (Dz. U. 1994, nr 24 poz. 83 z późn. zm.) bez pisemnej zgody Północ Nieruchomości Sp z o.o. lub podmiotów współpracujących jest zabronione i może stanowić podstawę odpowiedzialności cywilnej oraz karnej.

Niniejsze materiały stanowią tajemnicę przedsiębiorstwa PÓŁNOC NIERUCHOMOŚCI Sp. z o.o. w rozumieniu ustawy z dnia 16 kwietnia 1993 r. o zwalczaniu nieuczciwej konkurencji (Dz. U. z 2003 r., Nr 153, poz. 1503 z późn. zm.).

Mapa

Zapytaj o tę ofertę

Lub zadzwoń