Opis
Mieszkanie – 2-pokojowe przy ulicy Cyraneczki, gotowe do zamieszkania !!!
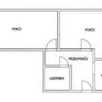
Powierzchnia mieszkania: 43,6 m²
Dodatkowo: Piwnica – 4 m²
Piętro: 1 (w 4-piętrowym bloku)
Stan prawny: Własność, mieszkanie bez zadłużeń, użytkowane przez obecnych właścicieli od 13 lat
Opis mieszkania
Na sprzedaż wyjątkowe, 2-pokojowe mieszkanie o powierzchni 43,6 m², położone w zadbanym bloku w doskonałej lokalizacji w Gliwicach. Lokal gotowy do wprowadzenia bez dodatkowych nakładów finansowych – idealny dla osób, które cenią komfort i brak konieczności remontów.
Mieszkanie jest czyste i zadbane, z pełnym wyposażeniem, co czyni je gotowym do zamieszkania od zaraz. Dzięki środkowemu usytuowaniu w budynku jest ciepłe i bardzo ekonomiczne w użytkowaniu.
Pomieszczenia
Przestronny salon ze stołem jadalnianym.
Ustawna sypialnia z biurkiem i wygodnym łóżkiem.
Kuchnia w pełni umeblowana ze sprzętem AGD w cenie.
Łazienka – wykafelkowana, z prysznicem, pralką w pełni umeblowana.
Przedpokój z dużą szafą z lustrem – zapewniający dodatkową przestrzeń do przechowywania.
Podłogi: W pokojach wysokiej jakości panele, w kuchni i łazience – płytki ceramiczne.
Stan techniczny i budynek
Budynek po termomodernizacji – zapewnia niższe koszty ogrzewania!
Odnowiona klatka schodowa – czysta i estetyczna, z domofonem!
Ogrzewanie miejskie – zawarte w niskim czynszu, zapewniające wygodę użytkowania!
Ciepła woda użytkowa - piecyka gazowego – oszczędność kosztów!
Mieszkanie znajduje się na 1. piętrze, co czyni je szczególnie wygodnym dla rodzin z dziećmi, seniorów lub osób ceniących łatwy dostęp bez konieczności wchodzenia na wysokie piętra.
Lokalizacja :
Mieszkanie położone jest w doskonale skomunikowanej okolicy, blisko wszelkich niezbędnych udogodnień:
Bliskość autostrad A4 i A1 – szybki dojazd do miast w regionie, 5 minut do centrum Gliwic.
Przystanki komunikacji miejskiej – zaledwie kilka kroków od bloku.
W okolicy znajdują się markety, apteki, przychodnie.
Dla rodzin: W pobliżu żłobek, szkoła podstawowa, place zabaw.
Dodatkowe informacje
Balkon - spokojnie pomieści stolik i 2 krzesła
Niski czynsz - zawierający ogrzewanie miejskie – dodatkowy atut dla osób szukających ekonomicznego lokum.
Piwnica 4 m² – przestrzeń na przechowywanie rzeczy sezonowych.
Stan prawny:
Mieszkanie własnościowe, bez jakichkolwiek zadłużeń.
Dlaczego warto?
To mieszkanie jest idealnym rozwiązaniem dla osób, które:
1. Poszukują gotowego lokum bez konieczności inwestowania w remonty.
2. Chcą mieszkać w dobrze skomunikowanej okolicy, blisko centrum Gliwic.
3. Cenią sobie spokój, wygodę i dostęp do pełnej infrastruktury miejskiej.
4. Cena jest atrakcyjna i adekwatna do stanu mieszkania oraz lokalizacji.
W razie pytań zapraszam do kontaktu i umówienia się na oględziny,
Mateusz Gil licencjonowany pośrednik nieruchomości (nr. lic 31377)
+48 732 792 400
Niniejsze ogłoszenie nie stanowi oferty w rozumieniu Kodeksu Cywilnego, lecz ma charakter informacyjny.
Przedstawione wizualizacje i grafiki mają charakter wyłącznie poglądowy i stanowią wyłącznie materiał pomocniczy, ułatwiający zorientowanie się w ogólnym wyglądzie oferowanej nieruchomości.
Niniejsze ogłoszenie wraz z jego elementami jest własnością Północ Nieruchomości Sp z o.o. lub podmiotu współpracującego. Wszelkie prawa zastrzeżone. Kopiowanie, rozpowszechnianie oraz korzystanie z niniejszych materiałów w jakikolwiek inny sposób wykraczający poza dozwolony użytek określony przepisami ustawy z 4 lutego 1994 r. o prawie autorskim i prawach pokrewnych (Dz. U. 1994, nr 24 poz. 83 z późn. zm.) bez pisemnej zgody Północ Nieruchomości Sp z o.o. lub podmiotów współpracujących jest zabronione i może stanowić podstawę odpowiedzialności cywilnej oraz karnej.
Niniejsze materiały stanowią tajemnicę przedsiębiorstwa PÓŁNOC NIERUCHOMOŚCI Sp. z o.o. w rozumieniu ustawy z dnia 16 kwietnia 1993 r. o zwalczaniu nieuczciwej konkurencji (Dz. U. z 2003 r., Nr 153, poz. 1503 z późn. zm.).