Kontakt
Nr oferty: 119572/3877/OMS

Mieszkanie w spokojnej okolicy !

Sośnica zobacz na mapie

330 000 PLN

Szczegóły oferty

Cena:
330 000,00 zł
Powierzchnia:
55,00 m2
Cena za m2:
6 000,00 zł
Rok budowy:
1980
Liczba pięter:
10
Piętro:
7
Garaż/Miejsca parkingowe:
tak
Rynek:
Wtórny
Rodzaj budynku:
Wysoki blok
Liczba pokoi:
3
Typ kuchni:
Widna
Winda:
tak
Id oferty:
119572/3877/OMS

Opis


Posiadam w ofercie podobne mieszkania w dogodnej lokalizacji! 


Na sprzedaż mieszkanie o powierzchni 55m², położone na 7. piętrze w 10-piętrowym bloku.


To idealna oferta dla osób ceniących sobie przestrzeń, komfort i dogodną lokalizację.

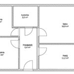
Mieszkanie składa się z trzech oddzielnych pokoi, łazienki, widnej kuchni, przedpokoju, balkonu, piwnicy oraz schowka na półpiętrze.

Szczegóły nieruchomości:

Pokój: 11,2m²
– Idealny na pokój dla dziecka lub gabinet.
Sypialnia: 9,4m² – Przytulna sypialnia z miejscem na dużą szafę.
Salon: 16,9m² – Przestronny salon z miejscem na strefę wypoczynkową i jadalnię.
Kuchnia: 7,6m² – Funkcjonalna kuchnia z wyposażeniem.
Łazienka: 3,5m² – Łazienka z miejscem na pralkę, suszarkę i dużą wannę.
Przedpokój: 6,4m² – Przestronny przedpokój z miejscem na przechowywanie. 
Balkon: 1,5m² – Balkon z widokiem na zieleń.
Piwnica: 1,8m² – Idealna do przechowywania sezonowych rzeczy.

Stan mieszkania:

Mieszkanie w dobrym stanie, wymaga odświeżenia.
Okna PCV zapewniające dobrą izolację termiczną i akustyczną.
Kuchnia kilkuletnia, w pełni wyposażona – sprzęt AGD w cenie.

Funkcjonalność i możliwości aranżacyjne:

Układ pomieszczeń daje szerokie możliwości aranżacyjne, pozwalając na dopasowanie przestrzeni do własnych potrzeb i gustu. Każde pomieszczenie posiada osobne wejście z przedpokoju zapewniając komfort i prywatność domowników.
Przestronny salon idealny na spotkania rodzinne i towarzyskie.

Udogodnienia i koszty utrzymania:

Wszystkie opłaty administracyjne, ogrzewanie, woda, fundusz remontowy, utrzymanie czystości wspólnej oraz wywóz nieczystości zawarte w czynszu.
Lokal własnościowy z księgą wieczystą.
Mieszkanie dostępne od zaraz.

Lokalizacja:

Mieszkanie znajduje się w zielonej i spokojnej okolicy.
Blisko park, siłownia na świeżym powietrzu, plac zabaw i boisko.
W pobliżu liczne sklepy, szkoła, poczta, zapewniające wygodę codziennych zakupów i usług.

Doskonała komunikacja:
Szybki dojazd do autostrad A1 i A4 i większych miast - Zabrza, Bytomia, Katowic, blisko przystanku autobusowego.

Dodatkowe atuty:

Układ pomieszczeń sprzyjający całodniowemu nasłonecznieniu.
Środkowa klatka zapewniająca dogrzanie w sezonie zimowym. 
Piętro z pięknymi widokami na okolicę.

Kontakt:

W razie jakichkolwiek pytań oraz w celu umówienia się na prezentację mieszkania, prosimy o kontakt pod numerem:
Mateusz Gil - licencjonowany pośrednik zawodowo nr. 31377
+48 732 792 400



Niniejsze ogłoszenie nie stanowi oferty w rozumieniu Kodeksu Cywilnego, lecz ma charakter informacyjny.

Przedstawione wizualizacje i grafiki mają charakter wyłącznie poglądowy i stanowią wyłącznie materiał pomocniczy, ułatwiający zorientowanie się w ogólnym wyglądzie oferowanej nieruchomości.

Niniejsze ogłoszenie wraz z jego elementami jest własnością Północ Nieruchomości Sp z o.o. lub podmiotu współpracującego. Wszelkie prawa zastrzeżone. Kopiowanie, rozpowszechnianie oraz korzystanie z niniejszych materiałów w jakikolwiek inny sposób wykraczający poza dozwolony użytek określony przepisami ustawy z 4 lutego 1994 r. o prawie autorskim i prawach pokrewnych (Dz. U. 1994, nr 24 poz. 83 z późn. zm.) bez pisemnej zgody Północ Nieruchomości Sp z o.o. lub podmiotów współpracujących jest zabronione i może stanowić podstawę odpowiedzialności cywilnej oraz karnej.

Niniejsze materiały stanowią tajemnicę przedsiębiorstwa PÓŁNOC NIERUCHOMOŚCI Sp. z o.o. w rozumieniu ustawy z dnia 16 kwietnia 1993 r. o zwalczaniu nieuczciwej konkurencji (Dz. U. z 2003 r., Nr 153, poz. 1503 z późn. zm.).

Mapa

Zapytaj o tę ofertę

Lub zadzwoń