Opis
Prezentujemy Państwu mieszkania w stanie deweloperskim, w wyjątkowej inwestycji w Nowym Sączu
- odbiór w IV kwartale 2027 roku
Bez podatku PCC/ bez dodatkowych kosztów/ Prowizja 0%
Oferta dotyczy 3 pokojowego mieszkania o powierzchni 60,37 metrów kwadratowych, na parterze, w którego skład wchodzi:
przedpokój
salon z aneksem kuchennym
sypialnia
pokój
łazienka
Do mieszkania przynależy ogródek (33,36m2)
Dodatkowo:
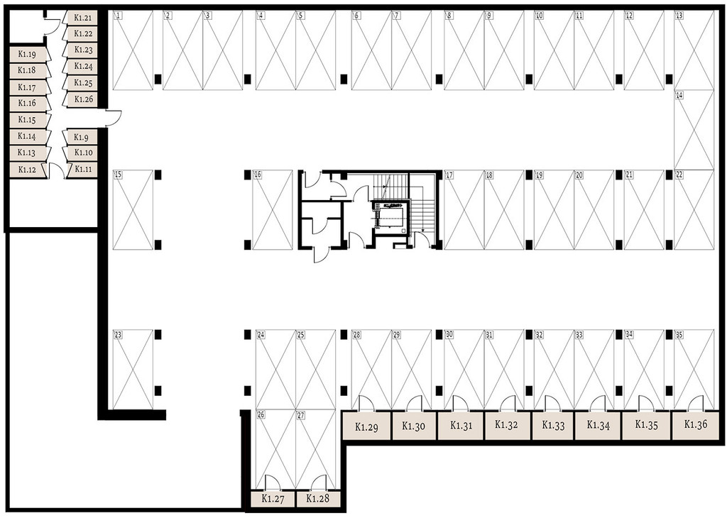
Miejsce parkingowe w garażu podziemnym:
Miejsca nr 26 oraz 27 - 32 400pln
Pozostałe miejsca postojowe - 64 800pln
Komórka lokatorska
nr 1.9 - 1.28 - 16 200pln
nr 1.29 - 1.36 - 21 600pln
*** Posiadamy w ofercie 20 mieszkań o różnych powierzchniach - zapraszam do kontaktu
INWESTYCJA
Prezentowane apartamenty to Twój nowoczesny azyl w zielonej części Nowego Sącza
Jeśli szukasz miejsca, które łączy komfort dużego miasta z ciszą i przestrzenią, której brakuje w Krakowie, ta inwestycja jest dla Ciebie.
Nowoczesny budynek apartamentowy z 35 starannie zaprojektowanymi mieszkaniami o powierzchni 30–60 m², windą oraz garażem podziemnym to idealny wybór dla osób, które chcą żyć wygodnie, bez kompromisów.
Dlaczego to miejsce przyciąga klientów z Krakowa?
• Spokój i zieleń, których nie znajdziesz w zatłoczonych dzielnicach dużych miast.
• Nowoczesna architektura i wysoki standard wykonania.
• Atrakcyjne ceny w porównaniu z rynkiem krakowskim – idealne na drugie mieszkanie lub inwestycję.
• Szybki dojazd do Krakowa i Zakopanego, bliskość gór i terenów rekreacyjnych.
Atuty inwestycji:
• 35 mieszkań z balkonami, loggiami lub ogródkami
• Winda, podziemny parking, komórki lokatorskie
• Monitoring i kontrola dostępu
• Energooszczędne technologie obniżające koszty życia
• Możliwość wykończenia pod klucz
LOKALIZACJA
W pobliżu znajdują się sklepy, szkoły, przedszkola, uczelnia WSB-NLU, komunikacja miejska oraz tereny zielone.
To idealne miejsce dla rodzin, par i osób pracujących zdalnie, które chcą żyć spokojnie, ale blisko miasta.
Termin odbioru: IV kwartał 2027.
To inwestycja, która zyskuje na wartości – idealna dla osób myślących przyszłościowo.
Po więcej informacji zapraszam do kontaktu
Sabina Szamreta
Doradca ds. nieruchomości
880-762-675
sszamreta@polnoc.pl
PÓŁNOC Nieruchomości Sp. z o.o.
Niniejsze ogłoszenie nie stanowi oferty w rozumieniu Kodeksu Cywilnego, lecz ma charakter informacyjny.
Przedstawione wizualizacje i grafiki mają charakter wyłącznie poglądowy i stanowią wyłącznie materiał pomocniczy, ułatwiający zorientowanie się w ogólnym wyglądzie oferowanej nieruchomości.
Niniejsze ogłoszenie wraz z jego elementami jest własnością Północ Nieruchomości Sp z o.o. lub podmiotu współpracującego. Wszelkie prawa zastrzeżone. Kopiowanie, rozpowszechnianie oraz korzystanie z niniejszych materiałów w jakikolwiek inny sposób wykraczający poza dozwolony użytek określony przepisami ustawy z 4 lutego 1994 r. o prawie autorskim i prawach pokrewnych (Dz. U. 1994, nr 24 poz. 83 z późn. zm.) bez pisemnej zgody Północ Nieruchomości Sp z o.o. lub podmiotów współpracujących jest zabronione i może stanowić podstawę odpowiedzialności cywilnej oraz karnej.
Niniejsze materiały stanowią tajemnicę przedsiębiorstwa PÓŁNOC NIERUCHOMOŚCI Sp. z o.o. w rozumieniu ustawy z dnia 16 kwietnia 1993 r. o zwalczaniu nieuczciwej konkurencji (Dz. U. z 2003 r., Nr 153, poz. 1503 z późn. zm.).