Kontakt
Nr oferty: 116259/3877/OMS

3 pok, 60,36m2, Bemowo, Bezpieczny kredyt

Bemowo, ul. Uniejowska zobacz na mapie

635 000 PLN

Szczegóły oferty

Cena:
635 000,00 zł
Powierzchnia:
60,36 m2
Cena za m2:
10 520,21 zł
Rok budowy:
1981
Liczba pięter:
10
Piętro:
3
Rynek:
Wtórny
Rodzaj budynku:
Wysoki blok
Liczba pokoi:
3
Typ kuchni:
Oddzielna
Winda:
tak
Id oferty:
116259/3877/OMS

Opis

3 pok, 60,36m2, Bemowo, Uniejowska 2, Bezpieczny kredyt

OPIS MIESZKANIA:
* 60,36m2 - 3 pokoje
* mieszkanie dwustronne, widok na zieleń
* osobna widna kuchnia
* salon  i sypialnia od strony wschodu z balkonem z widokiem na otaczającą zieleń
* duża łazienka z prysznicem
* osobne wc
* na podłodze mozaika oraz terakota
* funkcjonalna szafa w przedpokoju
* idealnie dla rodziny lub jako inwestycja
* piętro 3
* czynsz  712 zł
* mieszkanie do remontu

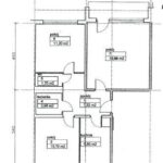
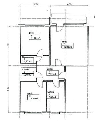
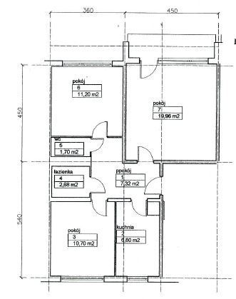
Rozkład mieszkania:
- salon 19,96 m2
- sypialnia 11,20 m2
- sypialnia 10,70 m2
- łazienka 2,68 m2
- wc 1,70 m2
- kuchnia 6,80 m2
- przedpokój - 7,32m2


LOKALIZACJA:
- Bemowo, Bemowo Lotnisko, ulica Uniejowska 2
- Bardzo dobrze skomunikowany teren - bliskość przystanków tramwajowych, autobusowych oraz trasy szybkiego ruchu (S8)
- Łatwy dostęp do sklepów i punktów usługowych, co ułatwia codzienne życie i pozwala oszczędzić czas (Biedronka, Hebe, Pepco, Piekarnia)
- W okolicy: zielone skwerki, place zabaw, sklepy spożywcze, przystanek autobusowy i tramwajowy, restauracje, fitness, obiekty sportowe, siłownia plenerowa
- W odległości ok. 500-600 m szkoły, przedszkola, żłobki - prywatne i państwowe, Wojskowa Akademia Techniczna, Fort Radiowo, Fort Blizne, Las Bemowo, duże centra handlowe, kino 


OPIS BUDYNKU:
- 10 -piętrowy z 1981 roku
- 3 mieszkania na piętrze
- domofon
- klatki schodowe zadbane
- klatka schodowa na piętrze dodatkowo zamykana
- na zewnątrz ogólnodostępne miejsca parkingowe

Do mieszkania przynależy piwnica.

Pełna własność, grunt uregulowany, możliwy zakup na kredyt.

Zapraszam do kontaktu.
Emilia Chrastina
664 417 443


Niniejsze ogłoszenie nie stanowi oferty w rozumieniu Kodeksu Cywilnego, lecz ma charakter informacyjny.

Przedstawione wizualizacje i grafiki mają charakter wyłącznie poglądowy i stanowią wyłącznie materiał pomocniczy, ułatwiający zorientowanie się w ogólnym wyglądzie oferowanej nieruchomości.

Niniejsze ogłoszenie wraz z jego elementami jest własnością Północ Nieruchomości Sp z o.o. lub podmiotu współpracującego. Wszelkie prawa zastrzeżone. Kopiowanie, rozpowszechnianie oraz korzystanie z niniejszych materiałów w jakikolwiek inny sposób wykraczający poza dozwolony użytek określony przepisami ustawy z 4 lutego 1994 r. o prawie autorskim i prawach pokrewnych (Dz. U. 1994, nr 24 poz. 83 z późn. zm.) bez pisemnej zgody Północ Nieruchomości Sp z o.o. lub podmiotów współpracujących jest zabronione i może stanowić podstawę odpowiedzialności cywilnej oraz karnej.

Niniejsze materiały stanowią tajemnicę przedsiębiorstwa PÓŁNOC NIERUCHOMOŚCI Sp. z o.o. w rozumieniu ustawy z dnia 16 kwietnia 1993 r. o zwalczaniu nieuczciwej konkurencji (Dz. U. z 2003 r., Nr 153, poz. 1503 z późn. zm.).

Mapa

Zapytaj o tę ofertę

Lub zadzwoń