Opis
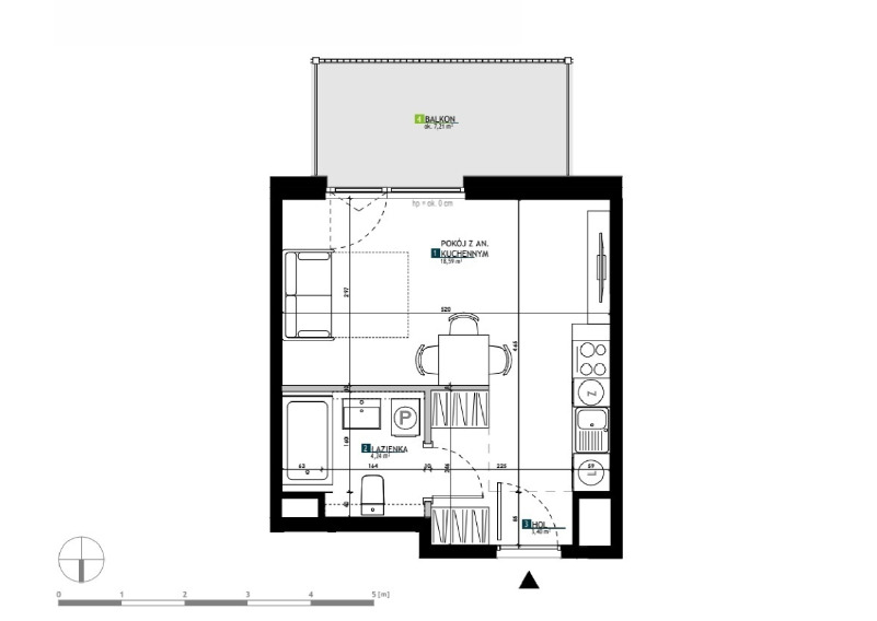
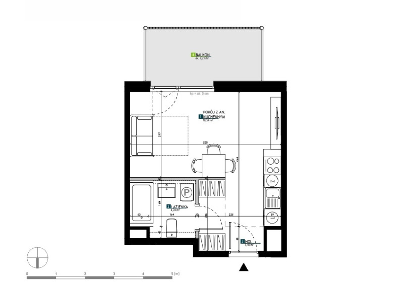
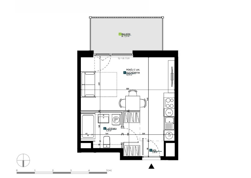
Zapraszam do zapoznania się z ofertą sprzedaży kawalerki o powierzchni 26,23 m2 w nowo powstającym kompleksie mieszkaniowym w dzielnicy Włochy, położonej w Warszawie.
Cena tego mieszkania wynosi 527 000 zł, a planowane oddanie do użytku przewidziane jest na czwarty kwartał 2026 roku.
Powierzchnia mieszkania:
- Pokój z aneksem kuchennym - 18,59 m2
- Łazienka - 4,24 m2
- Hol - 3,40 m2
- Balkon - 7, 21 m2
W mojej ofercie znajdziecie Państwo również inne metraże mieszkań na tym osiedlu.
Kupujący nie płaci prowizji!!
Nasz nowy kompleks mieszkaniowy składa się z 86 mieszkań o różnych metrażach, obejmujących mieszkania od 26 do 139 mkw. z rozkładami od 1 do 5 pokoi. Jedną z charakterystycznych cech inwestycji są tarasy, które będą przynależały do mieszkań zlokalizowanych na ostatniej kondygnacji. Na parterze budynku znajdować się będą także lokale usługowe, co dodatkowo zwiększa funkcjonalność i wygodę dla mieszkańców.
Dbając o ekologię, w ramach inwestycji zaplanowaliśmy szereg rozwiązań przyjaznych środowisku. Na terenie kompleksu powstanie ogród deszczowy, stacja do ładowania samochodów elektrycznych, parking rowerowy oraz punkt naprawy jednośladów. Dodatkowo, zamontowane zostaną karmniki dla ptaków oraz domki dla pożytecznych owadów, co wspiera lokalną różnorodność biologiczną.
Standardem każdego mieszkania będzie innowacyjny system automatyki mieszkaniowej Appartme, umożliwiający sterowanie różnymi funkcjami domu za pomocą smartfona. System ten reguluje temperaturę, wyłącza dopływ wody w mieszkaniu pod nieobecność właścicieli, odcina dopływ prądu do gniazdek w sytuacjach, gdy jest to niezbędne, oraz automatycznie wyłącza światło we wszystkich pokojach po opuszczeniu mieszkania.
Położenie naszych nowych mieszkań jest wyjątkowo korzystne. Znajdują się one niedaleko stacji kolejowej Aleje Jerozolimskie, skąd w zaledwie kwadrans można dotrzeć do ścisłego centrum miasta. Dodatkowo, w ciągu 5 minut samochodem można dojechać do centrów handlowo-usługowych, takich jak Blue City i Atrium Reduta, a w zaledwie 10 minut rowerem można dotrzeć do Parku Szczęśliwickiego, co zapewnia mieszkańcom dostęp do licznych atrakcji i udogodnień w okolicy...
Potrzebujesz pomocy przy wyborze kredytu hipotecznego? Nasi wykwalifikowani doradcy finansowi z ponad 15 letnim doświadczeniem bezpłatnie pomogą w przejściu przez cały proces kredytowy i w wyborze najlepszej oferty.
Współpracujemy również z firmami zajmującymi się kompleksowym wykończeniem wnętrz.
W mojej ofercie znajdziecie Państwo również inne metraże mieszkań na tym osiedlu.
Zapraszam do kontaktu!
Niniejsze ogłoszenie nie stanowi oferty w rozumieniu Kodeksu Cywilnego, lecz ma charakter informacyjny.
Przedstawione wizualizacje i grafiki mają charakter wyłącznie poglądowy i stanowią wyłącznie materiał pomocniczy, ułatwiający zorientowanie się w ogólnym wyglądzie oferowanej nieruchomości.
Niniejsze ogłoszenie wraz z jego elementami jest własnością Północ Nieruchomości Sp z o.o. lub podmiotu współpracującego. Wszelkie prawa zastrzeżone. Kopiowanie, rozpowszechnianie oraz korzystanie z niniejszych materiałów w jakikolwiek inny sposób wykraczający poza dozwolony użytek określony przepisami ustawy z 4 lutego 1994 r. o prawie autorskim i prawach pokrewnych (Dz. U. 1994, nr 24 poz. 83 z późn. zm.) bez pisemnej zgody Północ Nieruchomości Sp z o.o. lub podmiotów współpracujących jest zabronione i może stanowić podstawę odpowiedzialności cywilnej oraz karnej.
Niniejsze materiały stanowią tajemnicę przedsiębiorstwa PÓŁNOC NIERUCHOMOŚCI Sp. z o.o. w rozumieniu ustawy z dnia 16 kwietnia 1993 r. o zwalczaniu nieuczciwej konkurencji (Dz. U. z 2003 r., Nr 153, poz. 1503 z późn. zm.).