Kontakt
Nr oferty: 120910/3877/OMS

3 pokoje, Włochy, 3 kw. 2026, stan deweloperski

Włochy, ul. Wschodu Słońca zobacz na mapie

991 000 PLN

Szczegóły oferty

Cena:
991 000,00 zł
Powierzchnia:
63,20 m2
Cena za m2:
15 680,38 zł
Rok budowy:
2026
Liczba pięter:
6
Piętro:
4
Garaż/Miejsca parkingowe:
tak
Rynek:
Pierwotny
Rodzaj budynku:
Budynek apartamentowy
Liczba pokoi:
3
Typ kuchni:
Aneks
Winda:
tak
Id oferty:
120910/3877/OMS

Opis

Umów się na spotkanie i sprawdź nasze promocje!!


Zapraszam do zapoznania się z ofertą sprzedaży mieszkania 3 pokojowego o powierzchni 63,20 m2 w nowo powstającym kompleksie mieszkaniowym w dzielnicy Włochy, położonej w Warszawie.
Cena tego mieszkania wynosi 991 000 zł, a planowane oddanie do użytku przewidziane jest na trzeci kwartał 2026 roku.

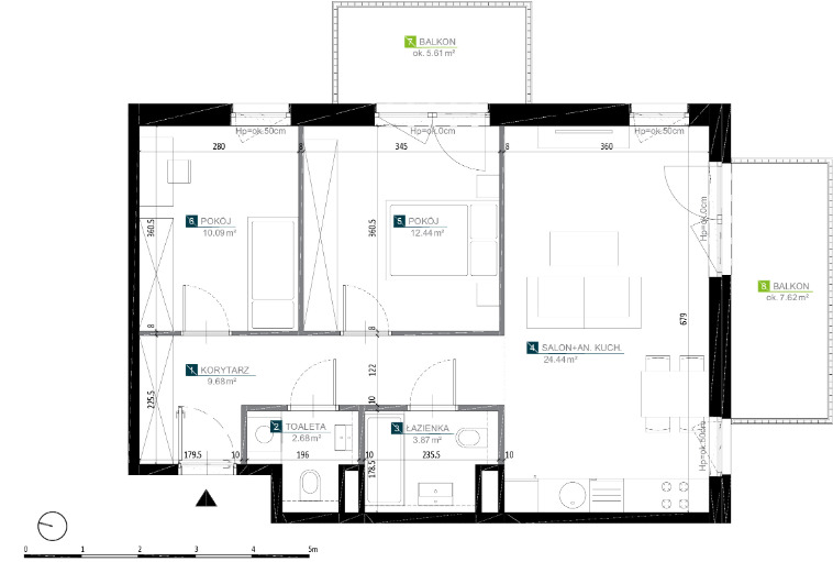
Powierzchnia mieszkania:
- KORYTARZ 9.68 m²
-  TOALETA 2.68 m²
-  ŁAZIENKA 3.87 m²
-  SALON+ANEKS KUCHENNY 24.44 m²
-  POKÓJ 12.44 m²
-  POKÓJ 10.09 m²
-  BALKON ok. 5.61 m²
-  BALKON ok. 7.62 m²

Miejsce postojowe na parkingu podziemnym od 41 000 zł - nie obowiązkowe.

W mojej ofercie znajdziecie Państwo również inne metraże mieszkań na tym osiedlu.
Kupujący nie płaci prowizji!!

Ta inwestycja składa się z 85 różnorodnych lokali mieszkalnych, z których każdy oferuje wyjątkowe możliwości. Jedną z głównych zalet projektu jest jego doskonała lokalizacja. Znajdzie się on tuż przy głównej arterii Warszawy – Alejach Jerozolimskich, co zapewnia szybki dostęp do stacji kolejowej oraz dogodne połączenia komunikacyjne z centrum miasta, które można osiągnąć już po 15 minutach podróży pociągiem.
Dodatkowo, mieszkańcy będą mieli wyjątkowo bliski dostęp do centrum handlowego Blue City, które można osiągnąć zaledwie w 5 minut samochodem. Lokalna infrastruktura komunikacyjna obejmuje przystanek autobusowy oddalony o zaledwie 3 minuty od inwestycji oraz stację kolejową Aleje Jerozolimskie, którą można osiągnąć spacerem w ciągu 9 minut.
Lokalizacja tego kompleksu mieszkaniowego umożliwia również szybki wyjazd z miasta oraz łatwy dostęp do lotniska Chopina. W ciągu zaledwie 10 minut samochodem można dotrzeć do dworca kolejowego Warszawa Zachodnia.

Dzielnica Włochy to idealne miejsce dla osób ceniących zarówno bliskość centrum miasta, jak i sąsiedztwo terenów zielonych. W zasięgu 11 minut jazdy rowerem znajduje się Park Szczęśliwiecki, a w 6 minut dotrzeć można do Parku ze Stawami Cietrzewia. Dodatkowo, w okolicy dostępnych jest wiele innych parków i skwerków, co pozwala na korzystanie z rekreacji na świeżym powietrzu.
W ofercie znajdują się różnorodne lokale mieszkalne, w tym mieszkania z ogródkami, balkonami, tarasami oraz antresolami. Dostępne są również mieszkania o różnych układach, obejmujące 2-, 3-, 4- i 5-pokojowe rozwiązania, o powierzchniach mieszkalnych od 28 do 122 mkw. Dodatkowo, oferujemy także lokale dwupoziomowe, które zapewniają dodatkową przestrzeń i komfort mieszkania.
Mieszkańcy będą mieli również dostęp do różnorodnych sklepów i usług, które zostaną zlokalizowane w obrębie kompleksu mieszkaniowego, co dodatkowo zwiększy komfort codziennego życia.


Potrzebujesz pomocy przy wyborze kredytu hipotecznego? Nasi wykwalifikowani doradcy finansowi z ponad 15 letnim doświadczeniem bezpłatnie pomogą w przejściu przez cały proces kredytowy i w wyborze najlepszej oferty.
Współpracujemy również z firmami zajmującymi się kompleksowym wykończeniem wnętrz.

W mojej ofercie znajdziecie Państwo również inne metraże mieszkań na tym osiedlu.


Zapraszam do kontaktu!

Niniejsze ogłoszenie nie stanowi oferty w rozumieniu Kodeksu Cywilnego, lecz ma charakter informacyjny.

Przedstawione wizualizacje i grafiki mają charakter wyłącznie poglądowy i stanowią wyłącznie materiał pomocniczy, ułatwiający zorientowanie się w ogólnym wyglądzie oferowanej nieruchomości.

Niniejsze ogłoszenie wraz z jego elementami jest własnością Północ Nieruchomości Sp z o.o. lub podmiotu współpracującego. Wszelkie prawa zastrzeżone. Kopiowanie, rozpowszechnianie oraz korzystanie z niniejszych materiałów w jakikolwiek inny sposób wykraczający poza dozwolony użytek określony przepisami ustawy z 4 lutego 1994 r. o prawie autorskim i prawach pokrewnych (Dz. U. 1994, nr 24 poz. 83 z późn. zm.) bez pisemnej zgody Północ Nieruchomości Sp z o.o. lub podmiotów współpracujących jest zabronione i może stanowić podstawę odpowiedzialności cywilnej oraz karnej.

Niniejsze materiały stanowią tajemnicę przedsiębiorstwa PÓŁNOC NIERUCHOMOŚCI Sp. z o.o. w rozumieniu ustawy z dnia 16 kwietnia 1993 r. o zwalczaniu nieuczciwej konkurencji (Dz. U. z 2003 r., Nr 153, poz. 1503 z późn. zm.).

Mapa

Zapytaj o tę ofertę

Lub zadzwoń